Titel Logo
Hauensteiner Bote
Ausgabe 9/2025
Öffentliche Bekanntmachungen und amtliche Mitteilungen
Zurück zur vorigen Seite
Zurück zur ersten Seite der aktuellen Ausgabe

Bekanntmachung

Bauleitplanung der Ortsgemeinde Lug

In Kraft treten des Bebauungsplanes „Neubaugebiet Erweiterung Laubendöll“

Gemäß § 10 Abs. 3 Baugesetzbuch (BauGB) und § 24 Abs. 3 der Gemeindeordnung für Rheinland-Pfalz (GemO), jeweils in der derzeit geltenden Fassung, wird folgendes bekannt gemacht:

Der Gemeinderat der Ortsgemeinde Lug hat am 16.12.2024 den Bebauungsplan „Neubaugebiet Erweiterung Laubendöll“ gemäß § 10 Abs. 1 BauGB i.V.m. § 88 Abs. 6 LBauO als Satzung beschlossen. Der Bebauungsplan wurde im Regelverfahren aufgestellt.

Diese Bekanntmachung tritt an die Stelle der sonst für Satzungen vorgeschriebenen Veröffentlichung.

Gegenstand des Bebauungsplanes

Das Plangebiet hat eine Größe von 0,7 ha und liegt in einer Waldfläche oberhalb der Felsenstraße und westlich der Waldstraße am nördlichen Rand des Siedlungskörpers der Ortsgemeinde Lug, die Teil der Verbandsgemeinde Hauenstein ist und am östlichen Rand des Landkreises Südwestpfalz liegt.

Im Norden wird das Plangebiet durch den südlichen Rand des bestehenden Wirtschaftsweges begrenzt, im Osten durch die Waldstraße, im Süden durch die bestehende Bebauung der Felsenstraße und im Westen durch den östlichen Rand des bestehenden Wirtschaftsweges.

Anlass für die Aufstellung des Bebauungsplanes ist die Absicht der Ortsgemeinde Lug, den kurz- und mittelfristigen Bedarf an Wohnbaugrundstücken zu decken, da die bisherigen Baulandreserven nahezu erschöpft oder die noch vorhandenen Baulücken nicht im kommunalen Eigentum sind. Die Gemeinde verzeichnet seit Jahren eine hohe Nachfrage nach Wohnbaugrundstücken.

Durch die Aufstellung dieses Bebauungsplanes sollen die baurechtlichen Voraussetzungen realisiert werden, Wohnbauland zu schaffen - im Sinne der Eigenentwicklung der Gemeinde sowie als Maßnahme gegen die allgemein negative demographische Entwicklung im ländlichen Raum.

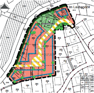
Der räumliche Geltungsbereich des Bebauungsplanes ergibt sich aus dem folgenden Kartenausschnitt:

Übersichtsplan ohne Maßstab

Die vorstehende Planskizze erhebt keinen Anspruch auf Rechtsverbindlichkeit, sie dient dem besseren Verständnis der Bekanntmachung.

Mit dieser Bekanntmachung tritt der Bebauungsplan „Neubaugebiet Erweiterung Laubendöll“ in Kraft.

Die Satzung wurde ausgefertigt am 17.02.2025.

Hauenstein, 24.02.2025
Hermann Rippberger, Ortsbürgermeister

Der Bebauungsplan mit seinen textlichen Festsetzungen, der Begründung inkl. des Umweltberichtes, der zusammenfassenden Erklärung gemäß § 10a BauGB sowie den sonstigen erstellten Gutachten kann während der allgemeinen Dienststunden bei der Verbandsgemeindeverwaltung Hauenstein, Schulstraße 4, Fachbereich Bauen, 76846 Hauenstein, von jedermann eingesehen werden. Über den Inhalt wird auf Verlangen Auskunft erteilt.

Hinweise:

Auf die Vorschriften des § 44 Abs. 3 Satz 1 und 2 sowie Abs. 4 BauGB über die fristgemäße Geltendmachung etwaiger Entschädigungsansprüche durch Antrag an den Entschädigungspflichtigen im Falle der in den §§ 39 bis 42 BauGB bezeichneten Vermögensnachteile wird hingewiesen. Der Entschädigungsanspruch erlischt, wenn der Antrag nicht innerhalb von drei Jahren nach Ablauf des Kalenderjahres, in dem die in § 44 Abs. 3 Satz 1 BauGB bezeichneten Vermögensnachteile eingetreten sind, gestellt wird.

Es wird darauf hingewiesen, dass gem. § 215 Abs. 1 BauGB in der derzeit geltenden Fassung i. V. m. § 233 BauGB

  1. eine nach § 214 Abs. 1 Satz 1 Nr. 1 bis 3 BauGB beachtliche Verletzung der dort bezeichneten Verfahrens- und Formvorschriften,
  2. eine unter Berücksichtigung des § 214 Abs. 2 BauGB beachtliche Verletzung der Vorschriften über das Verhältnis des Bebauungsplanes und des Flächennutzungsplanes und
  3. nach § 214 Abs. 3 Satz 2 BauGB beachtliche Mängel des Abwägungsvorganges unbeachtlich werden, wenn sie nicht innerhalb eines Jahres seit Bekanntmachung der Satzung schriftlich gegenüber der Gemeinde geltend gemacht worden sind. Der Sachverhalt, der die Verletzung oder den Mangel begründen soll, ist darzulegen.

Dies gilt entsprechend, wenn Fehler nach § 214 Abs. 2a BauGB beachtlich sind.

Weiterhin wird auf § 24 Abs. 6 GemO RLP hingewiesen, wonach Satzungen, die unter Verletzung von Verfahrens- oder Formvorschriften dieses Gesetzes oder auf Grund dieses Gesetzes zustande gekommen sind, ein Jahr nach der Bekanntmachung als von Anfang an gültig zustande gekommen gelten. Dies gilt nicht, wenn

  1. die Bestimmungen über die Öffentlichkeit der Sitzung, die Genehmigung, die Ausfertigung oder die Bekanntmachung der Satzung verletzt worden sind, oder
  2. vor Ablauf der Jahresfrist die Aufsichtsbehörde den Beschluss beanstandet oder jemand die Verletzung der Verfahrens- oder Formvorschriften gegenüber der Gemeindeverwaltung unter Bezeichnung des Sachverhalts, der die Verletzung begründen soll, schriftlich geltend gemacht hat.

Hat jemand eine Verletzung nach § 24 Abs. 6 Satz 2 Nr. 2 GemO geltend gemacht, so kann auch nach Ablauf der Jahresfrist jedermann diese Verletzung geltend machen.

Hauenstein, 24.02.2025
Patrick Weißler, Bürgermeister