Titel Logo
Grafschafter Zeitung
Ausgabe 7/2023
Öffentliche Bekanntmachungen
Zurück zur vorigen Seite
Zurück zur ersten Seite der aktuellen Ausgabe
-

Öffentliche Bekanntmachung

Abbildung 1: Auszug aus der topographischen Karte, o.M. Abbildung 2: Geltungsbereich, o.M

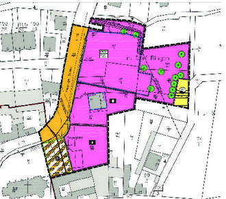
Abbildung 3: 21. Änderung und Ergänzung des Bebauungsplans Nr. 10.03 „Ortsteil Ringen Nr. 3“, Planzeichnung, o.M.

Bauleitplanung der Gemeinde Grafschaft

Der Gemeinderat der Gemeinde Grafschaft hat in seiner Sitzung am 13.10.2022 die 21. Änderung und Ergänzung des Bebauungsplans Nr. 10.03 „Ortsteil Ringen Nr. 3“ in der Gemarkung Ringen, gemäß § 10 Baugesetzbuch (BauGB) als Satzung beschlossen. Der Geltungsbereich des Bebauungsplanes ergibt sich aus der Planurkunde.

Die Satzung hat folgenden Wortlaut:

Satzung

Zur 21. Änderung und Ergänzung des Bebauungsplans Nr. 10.03 „Ortsteil

Ringen Nr. 3“

in der Gemarkung Ringen

Aufgrund der gesetzlichen Ermächtigungen

1.

Baugesetzbuch in der Fassung der Bekanntmachung vom 03. November 2017 (BGBl. I S. 3634), in der zuletzt gültigen Fassung

2.

Gemeindeverfassungsrecht: § 24 der Gemeindeordnung für Rheinland-Pfalz (GemO) vom 31.01.1994 (GVBl S. 153), letzte berücksichtigte Änderung: zuletzt geändert durch Artikel 37 des Gesetzes vom 19.12.2018 (GVBl. S. 448), in der zuletzt gültigen Fassung

3.

§ 9 BauGB in Verbindung mit § 88 Abs. 6 der Landesbauordnung (LBauO) vom 24. November 1998 (GVBl. 1998, 365), letzte berücksichtigte Änderung: zuletzt geändert durch Artikel 1 des Gesetzes vom 18.06.2019 (GVBl. S. 112), in der zuletzt gültigen Fassung

4.

Verordnung über die bauliche Nutzung der Grundstücke (Baunutzungsverordnung - BauNVO) i. d. F. der Bekanntmachung vom 21. November 2017 (BGBl. I S. 3786) in der zuletzt gültigen Fassung

5.

Verordnung über die Ausarbeitung der Bauleitpläne sowie über die Darstellung des Planinhaltes (PlanzV) vom 18. Dezember 1990 (BGBI: 1991 I S. 58), die zuletzt durch Artikel 3 des Gesetzes vom 04. Mai 2017 (BGBI. I S. 1057) geändert worden ist, in der zuletzt gültigen Fassung

6.

Gesetz über Naturschutz und Landschaftspflege (Bundesnaturschutzgesetz – BNatSchG) i. d. F. der Bekanntmachung vom 29. Juli 2009 (BGBl. I S. 2542), das zuletzt durch Artikel 8 des Gesetzes vom 13. Mai 2019 (BGBl. I S. 706) geändert worden ist, in der zuletzt gültigen Fassung

7.

Landesnaturschutzgesetz Rheinland-Pfalz (LNatSchG), in Kraft getreten am 16. Oktober 2015, letzte berücksichtigte Änderung: geändert durch Artikel 3 des Gesetzes vom 21.12.2016 (GVBl. S. 583), in der zuletzt gültigen Fassung

8.

Gesetz zum Schutz vor schädlichen Umwelteinwirkungen durch Luftverunreinigungen, Geräusche, Erschütterungen und ähnliche Vorgänge (Bundes-Immissionsschutzgesetz-BImSchG) i. d. F. der Bekanntmachung vom 17. Mai 2013 (BGBl. I S. 1274), das zuletzt durch Artikel 1 des Gesetzes vom 8. April 2019 (BGBl. I S. 432) geändert worden ist, in der zuletzt gültigen Fassung

9.

Denkmalschutzgesetz Rheinland-Pfalz (DSchG) vom 23. März 1978, letzte Berücksichtigte Änderung: Inhaltsübersicht geändert, § 25 b eingefügt durch Artikel 3 des Gesetzes vom 03. Dezember 2014 (GVBl. S. 245), in der zuletzt gültigen Fassung

10.

Gesetz über die Umweltverträglichkeitsprüfung -UVPG- in der Fassung der Bekanntmachung vom 24. Februar 2010 (BGBl. I S. 94), das zuletzt durch Artikel 22 des Gesetzes vom 13. Mai 2019 (BGBl. I S. 706) geändert worden ist, in der zuletzt gültigen Fassung

11.

Landeswaldgesetz (LWaldG) vom 30. November 2000 (GVBl. S. 504), letzte berücksichtigte Änderung: §§ 11 und 27 geändert durch Artikel 1 des Gesetzes vom 07. Juni 2018 (GVBl. S. 516), in der zuletzt gültigen Fassung

12.

Landesstraßengesetz (LStrG) i. d. F. vom 01. Oktober 1977 (GVBl. S. 273), letzte berücksichtigte Änderung: § 3 geändert durch Gesetz vom 08. Mai 2018 (GVBI. S. 92) beschließt der Rat der Gemeinde Grafschaft in seiner Sitzung am 13.10.2022 die 21. Änderung und Ergänzung des Bebauungsplans Nr. 10.03 „Ortsteil Ringen Nr. 3“ in der Gemarkung Ringen als Satzung.

§ 1

Bestandteile der Satzung

Die 21. Änderung und Ergänzung des Bebauungsplans Nr. 10.03 „Ortsteil Ringen Nr. 3“ in der Gemarkung Ringen, besteht aus einer durch Farbe und Schrift erläuterten Zeichnung im Maßstab 1: 500. Die Planurkunde samt textlichen Festsetzungen ist Bestandteil der Satzung. Dem Bebauungsplan ist eine Begründung beigefügt.

§ 2

Grenzen des räumlichen Geltungsbereiches

Der Geltungsbereich der 21. Änderung und Ergänzung des Bebauungsplans Nr. 10.03 „Ortsteil Ringen Nr. 3“ in der Gemarkung Ringen ergibt sich aus der Planurkunde.

§ 3

Inkrafttreten / Außerkrafttreten

Mit der in § 10 Abs. 3 BauGB vorgeschriebenen ortsüblichen Bekanntmachung tritt die 21. Änderung und Ergänzung des Bebauungsplans Nr. 10.03 „Ortsteil Ringen Nr. 3“ in der Gemarkung Ringen in Kraft.

II.

Hinweise

Die Bebauungsplanänderung kann mit sämtlichen Bestandteilen gemäß § 10 BauGB ab sofort von jedermann bei der Gemeindeverwaltung Grafschaft, Gemeindeentwicklung/Wirtschaftsförderung, Außenstelle Innovationspark, Joseph-von-Frauenhofer-Straße 1, 1.OG, 53501 Grafschaft-Ringen, während der üblichen Dienststunden eingesehen werden. Als Ansprechpartner stehen Ihnen Herr Klaus Becker (Tel. 02641/ 8007-90, E-Mail: klaus.becker@gemeinde-grafschaft.de) oder Frau Esther Dieler-Becker (Tel. 02641/ 8007-92, E-Mail: esther.dieler-becker@gemeinde-grafschaft.de) gerne zur Verfügung.

III.

Auf die Bestimmungen des § 44 BauGB wird hiermit verwiesen. Nach Absatz 3 kann ein Entschädigungsberechtigter/eine Entschädigungsberechtigte eine Entschädigung verlangen, wenn die in den §§ 39-42 BauGB bezeichneten Vermögensnachteile eingetreten sind. Er/Sie kann die Fälligkeit des Anspruches dadurch herbeiführen, dass er die Leistung der Entschädigung schriftlich bei dem/ der Entschädigungspflichtigen beantragt. Nach Absatz 4 erlischt ein Entschädigungsanspruch, wenn nicht innerhalb von drei Jahren nach Ablauf des Kalenderjahres, in dem der Vermögensnachteil eingetreten ist, die Fälligkeit des Anspruchs herbeigeführt wird.

IV.

Auf die Bestimmungen des § 215 BauGB wird verwiesen. Hiernach werden unbeachtlich

1.

eine nach § 214 Abs. 1 S. 1 Nr. 1 bis 3 BauGB beachtliche Verletzung der dort bezeichneten Verfahrens- und Formvorschriften,

2.

eine unter Berücksichtigung des § 214 Abs. 2 BauGB beachtliche Verletzung der Vorschriften über das Verhältnis des Bebauungsplans und des Flächennutzungsplans,

3.

nach § 214 Abs. 3 S. 2 BauGB beachtliche Mängel des Abwägungsvorgangs, wenn sie nicht innerhalb von einem Jahr seit dieser öffentlichen Bekanntmachung schriftlich gegenüber der Gemeinde Grafschaft unter Darlegung des die Verletzung begründeten Sachverhalts geltend gemacht worden sind. Satz 1 gilt entsprechend, wenn Fehler nach § 214 Abs. 2a BauGB beachtlich sind.

V.

Es wird darauf hingewiesen, dass nach § 24 Abs. 6 der GemO eine Satzung, die unter Verletzung von Verfahrens- oder Formvorschriften der GemO oder aufgrund der GemO zustande gekommen ist, ein Jahr nach der Bekanntmachung als von Anfang an gültig zustande gekommen gilt. Dies gilt nicht, wenn

1.

die Bestimmungen über die Öffentlichkeit der Sitzung, die Genehmigung, die Ausfertigung oder die Bekanntmachung der Satzung verletzt worden sind, oder

2.

vor Ablauf der in Satz 1 genannten Frist die Aufsichtsbehörde den Beschluss beanstandet oder jemand die Verletzung der Verfahrens- oder Formvorschriften gegenüber der Gemeinde Grafschaft unter Bezeichnung des Sachverhaltes, der die Verletzung begründen soll, schriftlich geltend gemacht hat.

Hat jemand eine Verletzung nach Satz 2 Nr. 2 geltend gemacht, so kann auch nach Ablauf der in Satz 1 genannten Frist jedermann diese Verletzung geltend machen.

VI.

Der Lauf der Fristen beginnt mit dem Tag dieser öffentlichen Bekanntmachung.

Gemeindeverwaltung Grafschaft
Grafschaft-Ringen, den 10.02.2023
Achim Juchem, Bürgermeister.