Titel Logo
Unsere Bergstätten Mitteilungsblatt mit amtlichem Bekanntmachungsteil
Ausgabe 51/2024
Aktuelle Vorlauftexte
Zurück zur vorigen Seite
Zurück zur ersten Seite der aktuellen Ausgabe

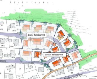
Baugebiet „Wengen – Bichelacker“; Bauplatzverkauf Bewerbungsfrist für Bauplätze bis zum 15.01.2025

Der Markt Weitnau prüft derzeit, ob genügend verbindliche Bewerbungen für einen Bauplatz vorhanden sind, um den weiteren Ausbau des Baugebietes (Zweiter Teilabschnitt) realisieren zu können. Der Marktgemeinderat Weitnau entscheidet nach Ende der Bewerbungsfrist, ob mit dem Verkauf der Baugrundstücke begonnen werden kann und die Erschließung finanzwirtschaftlich ermöglicht werden kann. Die Grundstücke sind ca. zwischen 578 qm und 765 qm groß.

Der Verkaufspreis wurde vom Marktgemeinderat Weitnau mit 240,00 €/qm Grundstückspreis (einschl. Erschließung) festgelegt.

Hinzu kommen noch die notwendigen Abwasserschächte mit 3.500,00 €/je Schacht und eine Vermessungspauschale in Höhe von 1.500,00 €. Der Kaufpreis enthält keine Herstellungsbeiträge zur Wasserversorgung und Abwasserbeseitigung.

Die verbindliche Bauplatzbewerbung ist bitte bis 15.01.2025 beim Markt Weitnau einzureichen. Die Bewerbungsunterlagen können Sie ab sofort beim Markt Weitnau anfordern.

Die Bauplätze werden mittels vom Gemeinderat festgelegtem Punktesystem vorwiegend an Einheimische vergeben.

Für Rückfragen stehen Herr Michael Lange und der Erste Bürgermeister Florian Schmid unter der Telefonnummer 08375 9202-0 gerne zur Verfügung.