Titel Logo
Betzigauer Hoigarte Amtsblatt der Gemeinde Betzigau
Ausgabe 21/2024
Aktuelle Vorlauftexte
Zurück zur vorigen Seite
Zurück zur ersten Seite der aktuellen Ausgabe
-

Aktuelles



Die Arbeiten zur Beseitigung der Hochwasserschäden an den gemeindlichen Straßen und Brücken sowie am Leiterberger Bach beginnen am Montag, den 21.10.2024!

Entgegen der ursprünglichen Ankündigung in der letzten Ausgabe unseres Mitteilungsblattes, in der das Ergebnis des Vergabegespräches bekannt gegeben wurde, teilte jetzt die beauftragte Fa. Allgäu Tiefbau mit, dass sie in der kommenden Woche zunächst mit den Arbeiten an der Brücke im Bereich der „Waldmanns Steig“ beginnen wird, damit die Asphaltarbeiten in den

Herbstferien, d.h. in der Zeit vom 28.10.2024 - 01.11.2024,

in der die Straße zwischen Betzigau und Hochgreut für den Individualverkehr komplett gesperrt werden muss,

ausgeführt werden können.

Eine separate Umleitungsbeschilderung haben wir nicht vorgesehen. Wir werden stattdessen wieder in der „Leiterberger Straße“ am CAP-Markt, in Höhe der Einmündung zum „Lexgraben“ und in Hochgreut am sog. „Griesmanns-Kreuz“ halbseitig eine Sperrtafel mit entsprechender Beschriftung aufstellen, um alle Verkehrsteilnehmerinnen und Verkehrsteilnehmer rechtzeitig auf die Sperrung der Straße

im Bereich der „Waldmanns Steig“

für die Zeit vom 28.10.2024 - 01.11.2024

aufmerksam zu machen.

Im Anschluss daran wird die Fa. Allgäu Tiefbau mit dem Bachufer-Verbau in Höhe der Anwesen Wiedemann und Degen beginnen.

Bei allen Grundstückseigentümerinnen und Grundstückseigentümer, die nicht direkt von dem Regenereignis betroffen sind und uns bzw. die Baufirma trotzdem auf ihr Grundstück lassen, damit die notwendigen Arbeiten, im zum Teil unwegsamen Gelände, entlang des „Leiterberger Baches“ ausgeführt werden können, bedanke ich mich recht herzlich.

Ohne ihre Unterstützung könnten wir die Reparaturarbeiten nicht ausführen.

Die Baum-Fällaktion am Lexgraben war eine Folge des Starkregenereignisses vom 12.07.2024!

Es ist zwar naheliegend, aber trotzdem ein Irrtum, wenn man glaubt, dass die Bäume am Lexgraben entlang der Bebauung „An der Steig“ deshalb beseitigt worden wären, weil sich die Gemeinde mit dem Gedanken trägt, den nicht mehr benutzten Bolzplatz mit einem Mehrfamilienhaus bebauen zu lassen.

Nein, der tatsächliche Hintergrund ist der, dass durch dieses Regenereignis im oberen Verlauf des Lexgrabens sogar einige Bäume entwurzelt wurden und einzelne Baumteile herabgestürzt sind und sogar ein Gartenhaus beschädigt haben.

Im Zuge der folgenden Sicherheitsüberprüfung mit einem ausgewiesenen Forstspezialisten hat ergeben, dass die dort stehenden Eschen auch vom Eschentriebsterben stark betroffen waren und wurden deshalb mit Genehmigung der „Unteren Naturschutzbehörde des Landratsamtes Oberallgäu“ und zum Schutz der Anwohnerinnen und Anwohner beseitigt.

Was dem einen eine Freude bereitet, kann dem anderen Leid zu fügen und so war es auch an dieser Stelle.

Was dem einen nicht schnell genug gehen konnte, bereitete der anderen sehr viel Unbehagen, weil sie nicht verstehen konnte, dass Maßnahmen dieser Art keinen Naturfrevel darstellen, sondern unbedingt notwendig sind, um die notwendige Sicherheit für die Umgebungsbebauung dauerhaft zu gewährleisten.

Trotz unterschiedlicher Sichtweisen geht die Sicherheit vor und von daher gab es keine Handlungsalternative dazu und bitten deshalb um Verständnis für diese Vorgehensweise.

Errichtung eines Mehrfamilienhauses am Lexgraben

auf dem ehemaligen Bolzplatz!

Nach den Vorstellungen des Gemeinderates soll auf dem ehemaligen Bolzplatz am Lexgraben ein Mehrfamilienhaus mit 4 Wohnungen mit einer Größe von ca. 100 m² entstehen.

Die bisher geführten Gespräche mit interessierten Bauwerberinnen und Bauwerbern haben noch nicht dazu geführt, dass sich 4 Persönlichkeiten zusammengefunden haben, um gemeinsam ihren Traum von den eigenen 4 Wänden unter einem Dach zu verwirklichen.

Deshalb suchen wir noch 2 Bewerberinnen und Bewerber, die zusammen mit den beiden anderen Interessenten, sich im Rahmen einer privaten Bauherrengemeinschaft vorstellen könnten dieses Mehrfamilienhaus in eigener Regie zu planen und auch gemeinsam zu bauen.

Falls wir ihr Interesse geweckt haben sollten, wären wir Ihnen sehr dankbar, wenn Sie sich bei Herrn Marco Alberth unter der Tel.-Nr. 0831/ 5750214 oder per Mail unter marco.alberth@betzigau.de bis zum 04.11.2024 melden würden.

Für ihr Interesse bedanken wir uns und freuen uns auf ihre Bewerbung.

Bericht aus dem Gemeinderat:

1. Bericht über das Projekt „Wohnen mitten im Dorf“.

Mit Blick auf den bereits durchgeführten Architekten-Wettbewerb und den umfangreichen Vorarbeiten, hat sich der Gemeinderat nochmals mit der Planerin und den Fachplanern zusammengesetzt und eine ganze Liste sinnvoller Einsparungsmöglichkeiten in einem nicht unerheblichen Umfang von ca. 700.000 € erarbeitet.

Herausgekommen ist ein Wohnprojekt an der ehemaligen Hofstelle „Frommknecht“, das sich wunderbar in die Umgebung einfügt, barrierefrei konzipiert ist und zentral in der Mitte unseres Dorfes liegt, um fußläufig die Aufgaben des täglichen Lebens erledigen zu können.

Der Zuschnitt der einzelnen Wohnungen orientiert sich an den künftigen Wohnbedürfnissen von Menschen aller Altersgruppen mit den unterschiedlichen Lebensformen.

Hier sollen vor allem bezahlbare Wohnungen mit einem modernen Qualitätsstandard entstehen, die in besonderer Weise Familien mit Kindern, aber auch älteren Menschen künftig eine Wohnperspektive bieten wollen.

Die vorläufig geschätzten Kosten belaufen sich auf 7.157.605 €. Das Projekt wird vom Freistaat Bayern aus dem Bayr. Wohnbauförderprogramm mit ca. 3,1 Mio. € gefördert.

Der Restbetrag wird über einen zinsgünstigen Förderkredit und einen Eigenbeteiligungsbetrag der Gemeinde von ca. 700.000 €. Damit werden immobile Werte geschaffen, die über viele Jahre hinweg den Wohnungsmarkt in Betzigau entlasten werden.

Nun kann das Planungsbüro Hahn und Jensch die Entwurfs- und Genehmigungsplanung erarbeiten, um den Bauantrag, der für die Zuschussantragstellung bei der Regierung von Schwaben Voraussetzung ist, beim LRA OA einreichen zu können.

Ich freue mich sehr über diese Entscheidung und bedanke mich bei allen Gemeinderätinnen und Gemeinderäten für den gezeigten Mut und das großartige und vor allem in die Zukunft gerichtete Engagement.

2. Baugebiet „Bachtelschreiner“.

- 8. Änderung des Flächennutzungsplanes im Zusammenhang mit der Aufstellung des Bebauungsplanes „Bachtelschreiner“

- Beratung des Entwurfs und Fassung eines Billigungsbeschlusses zur Auslegung gem. § 3 Abs. 2 BauGB und § 4 Abs. 2 BauGB.

Nachdem der § 13 b des Baugesetzbuches (beschleunigtes Bebauungsplanaufstellungsverfahren für Flächen bis 10.000 m²) vom Europäischen Gerichtshof für ungültig erklärt worden ist, mussten wir leider das Bebauungsplan-Aufstellungsverfahren für das Baugebiet „Bachtelschreiner“, mit dem wir schon begonnen hatten, nochmals neu aufgreifen.

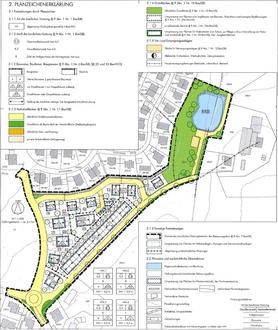
In der letzten Gemeinderatssitzung hat der Gemeinderat die 8. Änderung des Flächennutzungsplanes, wie auf den beiden folgenden Bildern dargestellt, zunächst beraten und einen Billigungsbeschluss zur Auslegung gem. § 3 Abs. 2 BauGB und § 4 Abs. 2 BauGB gefasst.

3. Aufstellung des Bebauungsplanes „Bachtelschreiner“:

Im Rahmen der Aufstellung des Bebauungsplanes „Bachtelschreiner“ wog der Gemeinderat die bereits eingegangenen Stellungnahmen der Träger öffentlicher Belange und Dritter ab und fasste einen Billigungsbeschluss zum unten abgedruckten Plan-Entwurf und zur erneuten Auslegung gem. § 3 Abs. 2 BauGB und § 4 Abs. 2 BauGB

Nun besteht nochmals die Gelegenheit sich im Verfahren zu diesem Plan-Entwurf zu äußern und der Gemeinderat wird sich abermals mit den eingereichten Stellungnahmen abwägend auseinandersetzen, um das Bebauungsplan-Aufstellungsverfahren abschließen zu können.

4. Unterbreitung von Vorschlägen zur Neuberufung in den Naturschutzbeirat beim Landratsamt Oberallgäu für die Periode 2024 - 2029.

Auf Bitten des Landratsamtes Oberallgäu und mit Zustimmung der betroffenen Personen hat der Gemeinderat zur Neuberufung in den Naturschutzbeirat beim LRA OA für die Periode 2024 - 2029

- Herrn Gotthard Seitz

- Herrn Michael Weigel

Den bisherigen Mitgliedern im Naturschutzbeirat aus Betzigau, die sich nicht mehr zur Verfügung stellten, danke ich ganz herzlich für ihre Mitarbeit in diesem Gremium und das gezeigte Engagement.

5. Bereitstellung eines Ausbildungsplatzes für das Berufsbild „Verwaltungsfachangestellte/r für die Kommunalverwaltung“.

Mit Blick auf den künftigen Personalbedarf im Rathaus der Gemeinde Betzigau, hat der Gemeinderat beschlossen im kommenden Jahr einen Ausbildungsplatz für den Beruf der Verwaltungsangestellten bzw. des Verwaltungsangestellten bereitzustellen.

Zu gegebener Zeit werden wir um die Einreichung von Bewerbungen in unserem Mitteilungsblatt „Betzigauer Hoigarte“ bitten und freuen uns sehr über das Interesse junger Menschen an diesem interessanten und abwechslungsreichen Ausbildungsberuf.