Titel Logo
Amts- und Mitteilungsblatt des Marktes Altenstadt
Ausgabe 16/2023
Titelseite
Zurück zur vorigen Seite
Zurück zur ersten Seite der aktuellen Ausgabe
-

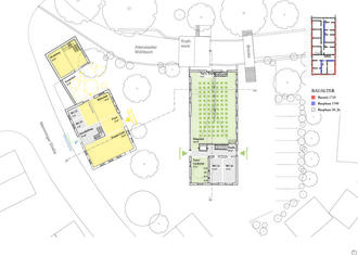
Die Alte Bleiche bekommt ein neues Gesicht!

Im Gemeinderat wurde der prämierte Entwurf von Beer Bembé Dellinger Architekten präsentiert.

In den zurückliegenden Monaten haben mehrere Architekturbüros im Rahmen eines Vergabeverfahrens Entwürfe für die Neue Bleiche erarbeitet. Vorgabe war eine vielseitige Nutzung der Bleiche durch die Bürgerschaft von Altenstadt und die Schaffung eines neuen Jugendtreffs im Haus an der Memminger Straße. Dabei sollte auf komplexe Gebäudetechnik verzichtet sowie ein Maximum an historischer Bausubstanz erhalten und wieder erlebbar gemacht werden.

Den überzeugendsten Ansatz im Vergabeverfahren präsentierte „Beer Bembé Dellinger Architekten“ aus Augsburg:

Der älteste Teil des Gebäudes, der südliche „Kopf“, wird ohne wesentliche Eingriffe erhalten und der Zugang bleibt unverändert. Ein großes „Schaufenster“ öffnet den Bürgersaal zum Vorplatz, sorgt für gute Belichtung und gibt dem Raum Weite. Zur Sanierung müssen die Fundamente im nördlichen Teil freigelegt werden, was die Chance bietet, den Saal deutlich abzusenken und eine angenehme Raumhöhe zu schaffen. Ein Teil der Fachwerkstruktur und der Außenwände im Obergeschoß soll freigelegt und sichtbar gemacht werden. Dadurch entsteht ein Luftraum über dem Saal und eine Blickbeziehung zum Obergeschoß. Ansonsten wird die kleinteilige Raumstruktur, ehemals jüdische Wohnungen, aus der Mitte des 18. Jahrhunderts erhalten und bietet Raum für bürgerschaftliche Nutzungen, wie ein historisches Archiv, Räume für Ausstellungen und Vereine.

Auch das „Erlangerhaus“ an der Memminger Straße soll im ursprünglichen Zustand ein Blickfang im Ortsbild werden, wofür im Zuge der Sanierung einige Umbauten der letzten Jahrzehnte zurückgenommen werden. Künftig bietet es Platz für den Jugendtreff, Räume für Vereine und die Bürger:innen.

Auch die weiteren Gewerke wurden im Vergabeverfahren ausgeschrieben und es stehen nun geeignete Fachplaner zur Verfügung.

Sobald der Entwurf mit dem Landesamt für Denkmalpflege abgestimmt ist und mit der Städtebauförderung die Fragen der Bezuschussung geklärt sind kann die Planung beginnen.

Den Entwurf können Sie in Kürze auch auf der roten Infowand vor der Neuen Bleiche studieren.