Titel Logo
Chieminger Nachrichten
Ausgabe 15/2025
Amtliche Bekanntmachungen
Zurück zur vorigen Seite
Zurück zur ersten Seite der aktuellen Ausgabe

Amtliche Bekanntmachungen - Ohne besondere Platzierung

Bekanntmachung über die Absicht der Gemeinde Chieming den Bebauungsplan „Buchäckerstraße" zu ändern und zu erweitern (§ 2 Abs. 1 Satz 2 BauGB) und die Bürger bei der Änderung und Erweiterung des Bebauungsplanes zu beteiligen (§ 3 Abs. 1 BauGB).

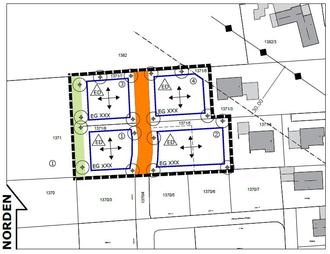
Der Gemeinderat hat in seiner Sitzung am 21.01.2025 beschlossen für den Bereich der Grundstücke Flurnummern 1371/5, /6, /7 und /8 jeweils der Gemarkung Chieming in Verlängerung der Buchäckerstraße in Egerer einen Bebauungsplan zur Ausweisung eines Wohnbaugebietes aufzustellen. Die Größe des Plangebietes beträgt etwa 0,426 ha.

Lageplan:

Der Planentwurf wurde ausgearbeitet von der Planungsgruppe Strasser GmbH aus Trausntein. Der Entwurf des Bebauungsplans mit Begründung und Umweltbericht werden im Internet unter https://www.chieming.de/ueber-chieming/bauen-und-planen/bauleitplanung/

vom 19.07. bis einschließlich 18.08.2025

veröffentlicht.

Es wird auf folgendes hingewiesen:

Stellungnahmen können während der Dauer der Veröffentlichungsfrist abgegeben werden

Stellungnahmen sollen elektronisch (online) über das DiPlanPortal unter https://portal.diplanung.de/ übermittelt werden. Die Abgabe von Stellungnahmen ist auch per Email an gemeinde@chieming.de möglich, können bei Bedarf aber auch auf anderem Weg abgegeben werden

Nicht fristgerecht abgegebene Stellungnahmen können bei der Beschlussfassung über den Bebauungsplan unberücksichtigt bleiben, wenn die Gemeinde den Inhalt nicht kannte und nicht hätte kennen müssen und deren Inhalt für die Rechtmäßigkeit nicht von Bedeutung ist.

Neben der Veröffentlichung im Internet werden die im Internet veröffentlichten Unterlagen während der Veröffentlichungsfrist auch in Papierform im Rathaus der Gemeinde Chieming, Hauptstraße 20, Zimmer 0.9, Erdgeschoss (barrierefreier Zugang), während der üblichen Zeiten des Publikumsverkehrs ausgelegt.

Datenschutz:

Die Verarbeitung personenbezogener Daten erfolgt auf der Grundlage der Art. 6 Abs. 1 Buchstabe e (DSGVO) i.V. mit § 3 BauGB und dem BayDSG. Sofern Sie Ihre Stellungnahme ohne Absenderangaben abgeben, erhalten Sie keine Mitteilung über das Ergebnis der Prüfung. Die Informationen zur Verarbeitung personenbezogener Daten nach der Datenschutz-Grundverordnung (DSGVO) sind auf der gemeindlichen Homepage unter https://www.chieming.de/ueber-chieming/bauen-und-planen/bauleitplanung/ einsehbar.

Chieming, 10.07.2025
Stefan Reichelt
1. Bürgermeister