Titel Logo
Chieminger Nachrichten
Ausgabe 4/2023
Amtliche Bekanntmachungen
Zurück zur vorigen Seite
Zurück zur ersten Seite der aktuellen Ausgabe

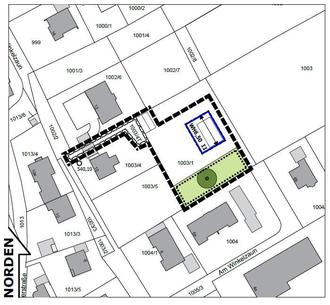
Aufstellung des Bebauungsplanes „Winkelzaun“ in Chieming

Bekanntmachung gemäß § 2 Abs. 1 Baugesetzbuch (BauGB) über die Absicht der Gemeinde Chieming den Bebauungsplan „Gewerbegebiet Egerer I“ zu ändern und Bekanntmachung über die öffentliche Auslegung des Bebauungsplanentwurfes mit Begründung gemäß § 3 Abs. 2 BauGB.

Der Gemeinderat hat in seiner Sitzung am 18.10.2022 die Aufstellung des Bebauungsplanes „Winkelzaun“ für den Bereich der Grundstücke Flurnummern 1003/1 und 1003/4 der Gemarkung Chieming beschlossen. Es ist die Errichtung eines Einfamilienhauses am nordöstlichen Siedlungsrand vorgesehen. Der Geltungsbereich des Bebauungsplanes ergibt sich aus nachfolgendem Lageplan:

Der Bebauungsplan wird gemäß § 13 b Baugesetzbuch im beschleunigten Verfahren ohne Durchführung einer Umweltprüfung nach § 2 Abs. 4 Baugesetzbuch geändert.

Der Planentwurf wurde ausgearbeitet von der Planungsgruppe Strasser GmbH, Traunstein. Der Änderungsentwurf mit Begründung liegt in der Zeit

vom 27.02.2023 bis einschließlich 28.03.2023

im Rathaus der Gemeinde Chieming, Hauptstraße 20, Zimmer 0.9, öffentlich aus.

Der Planentwurf mit Begründung ist auch im Internet unter www.chieming.de einzusehen. Während der Auslegungsfrist können Anregungen (schriftlich oder zur Niederschrift) vorgebracht werden.

Es wird darauf hingewiesen, dass nicht fristgerecht abgegebene Stellungnahmen bei der Beschlussfassung über den Bauleitplan unberücksichtigt bleiben können.

Datenschutz: Die Verarbeitung personenbezogener Daten erfolgt auf der Grundlage der Art. 6 Abs. 1 Buchstabe e (DSGVO) i.V. mit § 3 BauGB und dem BayDSG. Sofern Sie Ihre Stellungnahme ohne Absenderangaben abgeben, erhalten Sie keine Mitteilung über das Ergebnis der Prüfung. Die Informationen zur Verarbeitung personenbezogener Daten nach der Datenschutz-Grundverordnung (DSGVO) sind auf der gemeindlichen Homepage unter

https://www.chieming.de/ueber-chieming/bauen-und-planen/bauleitplanung/ einsehbar.