Titel Logo
Duracher Wochenblatt
Ausgabe 34/2023
Amtliche Bekanntmachungen - Am Anfang
Zurück zur vorigen Seite
Zurück zur ersten Seite der aktuellen Ausgabe

Bekanntmachung über die Veröffentlichung des Bebauungsplanes „Weidach – 2. Änderung mit Erweiterung und Teilaufhebung“, Gemeinde Durach

Der Gemeinderat des Gemeinde Durach hat beschlossen, den Bebauungsplan „Weidach – 2. Änderung mit Erweiterung und Teilaufhebung“ im Sinne des § 30 BauGB aufzustellen. Die ursprüngliche Bezeichnung des Bebauungsplanes lautete „Weidach – 1. Änderung“ welche im laufenden Verfahren geändert wurde und nun „Weidach – 2. Änderung mit Erweiterung und Teilaufhebung“ lautet. Die Aufstellung des Bebauungsplanes erfolgt im beschleunigten Verfahren nach § 13a BauGB mit einer zweimaligen Beteiligung der Öffentlichkeit. Eine Umweltprüfung wird nicht durchgeführt. Ein Umweltbericht ist nicht erforderlich.

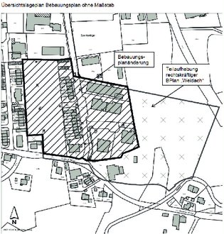
Der räumliche Geltungsbereich ist in beiliegendem Übersichtslageplan dargestellt und umfasst eine Fläche von ca. 3,3 ha (Bebauungsplanänderung) zzgl. einer Fläche von 2,85 ha für die Teilaufhebung des rechtskräftigen Bebauungsplanes „Weidach“. Das Plangebiet liegt im Ortsteil Weidach an der Werner-von-Siemens-Straße, zwischen der Duracher Straße im Süden, der Siedlung Weidach im Westen, der Umgehungsstraße im Osten und dem Gewerbegebiet Durach-West im Norden.

Das Grundstück Flur-Nr. 381/10 der Gemarkung Durach zwischen Duracher Straße, der Wohnsiedlung „Weidach – Siedlung“ und dem Gewerbegebiet westlich der Werner-von-Siemens-Straße gelegen, stellt eine innerörtliche Baulücke dar. Die Gemeinde Durach beabsichtigt diese Flächen entsprechend eines beschlossenen städtebaulichen Konzeptes zu bebauen. Der östliche Bereich des Bebauungsplanes ist zum Großteil bereits bebaut und planungsrechtlich im rechtskräftigen Bebauungsplan „Weidach“ (1972) gesichert, jedoch ist dieser Teilbereich nicht vollumfänglich bebauungsplankonform umgesetzt worden. Der rechtskräftige Bebauungsplan „Weidach“ wird durch vorliegende Planung im Westteil geändert und ersetzt sowie im noch unbebauten Bereich aufgehoben.

Anlass für die Aufstellung ist, die innerörtliche Baulücke einer Wohnbebauung zu zuführen. Die Änderung des Bebauungsplans kann im Sinne einer Maßnahme der Innenentwicklung betrachtet werden.

Der Bau-, Werk-, Umwelt- und Planungsausschuss der Gemeinde Durach hat am 22. Juni 2023 den Entwurf des Bebauungsplanes „Weidach – 2. Änderung mit Erweiterung und Teilaufhebung“ gebilligt.

Der Entwurf des Bebauungsplanes „Weidach – 2. Änderung mit Erweiterung und Teilaufhebung“ in der Fassung vom 22. Juni 2023, bestehend aus Teil A (Planzeichnung) mit Teil B (Textliche Festsetzungen) und Teil C (Begründung) wird gemäß § 3 Abs. 2 BauGB

von Montag, 4. September 2023 bis einschließlich Freitag, 6. Oktober 2023 im Internet unter www.durach-allgaeu.de veröffentlicht.

Zusätzlich liegen die zu veröffentlichen Unterlagen während des Veröffentlichungszeitraums während der allgemeinen Öffnungszeiten am Montag – Donnerstag 8.00 Uhr – 12.00 Uhr, Freitag 8.00 Uhr – 12.30 Uhr und Donnerstag 14.00 Uhr – 18:00 Uhr im Rathaus der Gemeinde Durach, Bahnhofstraße 1, 87471 Durach, öffentlich aus.

Die Zahl der durch das Planungsvorhaben betroffenen Belange sowie der Umfang der einzusehenden Unterlagen bewegen sich im Rahmen eines durchschnittlichen Planungsvorhabens. Eine Verlängerung der Veröffentlichungsfrist nach § 3 Abs. 2 S. 1 BauGB ist nicht erforderlich, jedoch wird eine etwas längere Frist bis zum 6. Oktober 2023 eingeräumt.

Stellungnahmen können während der Dauer der Veröffentlichungsfrist abgegeben werden.

Bevorzugt sind die Stellungnahmen elektronisch per E-Mail an das Rathaus/die Gemeindeverwaltung (E-Mail-Adresse einfügen) zu übermitteln. Als Betreff geben Sie bitte an: (Bezeichnung der Bauleitplanung).

Bei Bedarf können Stellungnahmen auch schriftlich oder während der Dienststunden zur Niederschrift abgegeben werden. Nicht fristgerecht abgegebene Stellungnahmen können bei der Beschlussfassung über den Bebauungs­plan bzw. Teilaufhebung des Bebauungsplans unberücksichtigt bleiben, wenn die Gemeinde den Inhalt nicht kannte und nicht hätte kennen müssen und deren Inhalt für die Rechtmäßigkeit des Bebauungsplans bzw. Teilaufhebung des Bebauungsplans nicht von Bedeutung ist.

Datenschutz:

Die Verarbeitung personenbezogener Daten erfolgt auf der Grundlage der Art. 6 Abs. 1 Buchstabe e (DSGVO) i. V. mit § 3 BauGB und dem BayDSG. Sofern Sie Ihre Stellungnahme ohne Absenderangaben abgeben, erhalten Sie keine Mitteilung über das Ergebnis der Prüfung. Weitere Informationen entnehmen Sie bitte dem Formblatt „Datenschutzrechtliche Informationspflichten im Bauleitplanverfahren“, das ebenfalls öffentlich ausliegt.

Gemeinde Durach, den 25.08.2023
Gerhard Hock, Erster Bürgermeister