Titel Logo
Mitteilungsblatt der VG Gemünden a Main
Ausgabe 23/2025
Amtliche Bekanntmachungen
Zurück zur vorigen Seite
Zurück zur ersten Seite der aktuellen Ausgabe

Gemeinde Gräfendorf - Bekanntmachung

Gemeinde:

Gräfendorf

Kreis:

Main-Spessart

3. Änderung und Erweiterung Bebauungsplan

mit integriertem Grünordnungsplan „Lagfeld“

Frühzeitige Beteiligung der Öffentlichkeit

gemäß § 3 Abs. 1 BauGB

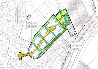
Der Gemeinderat Gräfendorf hat am 21.07.2022 die 3. Änderung und Erweiterung des Bebauungsplanes „Lagfeld“ beschlossen. Der Vorentwurf wurde am 16.10.2025 vom Gemeinderat gebilligt. Gegenstand der Planung ist die Ausweisung eines allgemeinen Wohnbaugebiets, das an die südlich und östlich angrenzenden bestehende Wohngebiete anschließt.

Der Geltungsbereich des Bebauungsplanes umfasst vollständig die Grundstücke mit den Flurnummern 538/4, 555/6 und 558 bzw. teilweise die Grundstücke mit den Flurnummern 538, 552, 555, 556, 558/7 und 558/1 (Straßengrundstück).

Von der Aufstellung betroffen sind die aus der Karte ersichtlichen Grundstücke:

Gemäß § 3 Abs. 1 BauGB sind bei der Aufstellung oder Änderung von Bauleitplänen die Öffentlichkeit / Bürger frühzeitig zu beteiligen.

Die Beteiligung der Öffentlichkeit / Bürger erfolgt auf folgende Weise:

Die Planunterlagen der 3. Änderung und Erweiterung des Bebauungsplans mit integriertem Grünordnungsplan „Lagfeld“ mit Begründung, Umweltbericht, Begründung zur Grünordnung, Artenschutzrechtlichem Gutachten, Geotechnischem Bericht und Stellungnahme des BLfD können in der Zeit

vom 17.11.2025 bis einschließlich 19.12.2025

unter folgendem Link abgerufen werden:

https://www.vgem-gemuenden.de/seite/gd/spessart/0227:679/-/Laufende_Bauleitplanverfahren.html

Außerdem liegen die Planunterlagen zur 3. Änderung und Erweiterung des Bebauungsplans „Lagfeld“ der Gemeinde Gräfendorf in dieser Zeit in der Verwaltungsgemeinschaft Gemünden am Main, Frankfurter Str. 4a, 97737 Gemünden am Main, Bauamt, 1. Stock, Zimmer Nr. 4, während den allgemeinen Dienststunden

Montag bis Freitag von 8:00 Uhr bis 12:00 Uhr

oder nach Terminvereinbarung, zur allgemeinen Einsichtnahme für jedermann öffentlich aus.

Die Öffentlichkeit / Bürger haben die Möglichkeit, sich während der Auslegungsdauer zu den Planungsabsichten der Gemeinde Gräfendorf zu äußern. Es wird darauf hingewiesen, dass nicht fristgerecht abgegebene Stellungnahmen bei der Beschlussfassung über den Bauleitplan unberücksichtigt bleiben können.

Datenschutz:

Die Verarbeitung personenbezogener Daten erfolgt auf der Grundlage der Art. 6 Abs. 1 Buchstabe e (DSGVO) i. V. mit § 3 BauGB und dem BayDSG. Sofern Sie Ihre Stellungnahme ohne Absenderangaben abgeben, erhalten Sie keine Mitteilung über das Ergebnis der Prüfung. Weitere Informationen entnehmen Sie bitte dem Formblatt „Datenschutzrechtliche Informationspflichten im Bauleitplanverfahren“ das ebenfalls öffentlich ausliegt.

Gemeinde Gräfendorf, 14.11.2025

Gemeinde Gräfendorf
gez.
Johannes Wagenpfahl
1. Bürgermeister