Titel Logo
Mitteilungsblatt der VG Gemünden a Main
Ausgabe 4/2023
Amtliche Bekanntmachungen
Zurück zur vorigen Seite
Zurück zur ersten Seite der aktuellen Ausgabe

Gemeinde Gössenheim

(ohne Maßstab)

Gemeinde:

Gössenheim

Kreis:

Main - Spessart

Bekanntmachung über die erneute Beteiligung der Öffentlichkeit

- erneute öffentliche Auslegung (3. Offenlage) gem. § 4a Abs. 3 Satz 1 BauGB -

hier: Aufstellung des vorhabenbezogenen Bebauungsplanes „Am Schotterwerk – Sondergebiet für den Betrieb von Anlagen und Betriebsgebäuden zur Herstellung, Aufbereitung und Zwischenlagerung von Boden, Gesteinen, Baustoffen und Recycling-Material“

Der Gemeinderat Gössenheim hat am 17.10.2019 die Aufstellung des vorhabenbezogenen Bebauungsplans „Am Schotterwerk – Sondergebiet für den Betrieb von Anlagen und Betriebsgebäuden zur Herstellung, Aufbereitung und Zwischenlagerung von Boden, Gesteinen, Baustoffen und Recycling-Material“ beschlossen. Ziel und Zweck des aufzustellenden Bebauungsplanes ist nach wie vor eine Neuordnung und rechtliche Absicherung bereits bestehender Tätigkeiten zu erreichen – zudem soll die derzeitige Gefährdungslage vermieden werden und die bestehende Baustoff-Aufbereitung unter der Hochspannungsleitung auf die Grundstücke Fl.-Nrn. 6240, 6241, 6244, 6247/1 und 6252, Gemarkung Gössenheim umgelagert werden.

Der Vorentwurf wurde der Öffentlichkeit frühzeitig gemäß § 3 Abs. 1 BauGB zur Einsichtnahme gegeben und den Behörden bzw. Trägern öffentlicher Belange gemäß § 4 Abs. 1 BauGB in der Zeit vom 16.03.2020 bis einschließlich 24.04.2020 mit der Bitte um Stellungnahme vorgelegt. Die eingegangenen Stellungnahmen wurden in der Sitzung des Gemeinderates vom 11.02.2021 behandelt.

Der vom Architekturbüro Kraus, Marktplatz 10, 97737 Gemünden a. Main, ausgearbeitete Entwurf zur Aufstellung des vorhabenbezogenen Bebauungsplanes „Am Schotterwerk – Sondergebiet für den Betrieb von Anlagen und Betriebsgebäuden zur Herstellung, Aufbereitung und Zwischenlagerung von Boden, Gesteinen, Baustoffen und Recycling-Material“ einschließlich der Begründung, dem Vorhaben- und Erschließungsplan samt Erläuterungsbericht, dem Umweltbericht sowie der speziellen Artenschutzprüfung mit Stand vom September 2019, zuletzt geändert am 11.02.2021 wurde sodann am 11.02.2021 vom Gemeinderat Gössenheim gebilligt.

Aufgrund der Stellungnahmen, die im Zuge der 2. Auslegung und Beteiligung der Träger öffentlicher Belange gemäß § 3 Abs. 2 BauGB in der Zeit vom 22.03.2021 bis einschließlich 29.04.2021 eingegangen sind, ergaben sich gegenüber dem o.g. Entwurf der 2. Auslegung Änderung und Ergänzungen, die nochmals zu einer Anpassung führten. Wesentliche Änderungspunkte sind der Wegfall der damalig geplanten Lagerhalle sowie die südliche Erweiterung des Geltungsbereiches. Die Erweiterung des Geltungsbereiches wird notwendig, da hier u.a. der Betrieb eines Brechers und der immissionsschutzrechtlich genehmigungsbedürftigen Recyclinganlage erfolgen soll. Dies bedeutet jedoch, dass sich auch die Flächen des Bauleitplanverfahrens auf diese Flächen erstrecken müssen, um deren bauplanungsrechtliche Legalität zu gewährleisten. Infolgedessen musste der Geltungsbereich erweitert werden. Dies hat jedoch keinen Einfluss auf das laufende Bauleitplanverfahren. Zwar wurden aufgrund der vorgebrachten Stellungnahmen die Inhalte des Bebauungsplans entsprechend wesentlich detaillierter erarbeitet, gefasst und erweitert, da es sich aber immer noch um dieselbe Örtlichkeit und dieselbe Art der baulichen Nutzung (SO) handelt, besteht kein Grund zur Annahme, dass es sich hier qualitativ um ein neues Bauleitplanverfahren handelt.

Der Gemeinderat hat deshalb in seiner Sitzung am 12.01.2023 den geänderten Entwurf des Bebauungsplanes „Am Schotterwerk – Sondergebiet für den Betrieb von Anlagen und Betriebsgebäuden zur Herstellung, Aufbereitung und Zwischenlagerung von Boden, Gesteinen, Baustoffen und Recycling-Material“ anerkannt und eine erneute öffentliche Auslegung des Entwurf des genannten Bebauungsplanes, bestehend aus der Planzeichnung mit Textteil, der Begründung, dem Vorhaben- und Erschließungsplan samt Erläuterungsbericht, dem Umweltbericht sowie der speziellen Artenschutzprüfung mit Stand vom September 2019, zuletzt geändert am 24.11.2022 gem. § 4a Abs. 3 BauGB beschlossen.

Gemäß § 3 Abs. 2 BauGB i.V.m. § 4a Abs. 3 BauGB wird hiermit öffentlich bekannt gemacht, dass der nochmals geänderte Entwurf des Bebauungsplanes mit der Begründung, dem Vorhaben- und Erschließungsplan samt Erläuterungsbericht, der Umweltbericht, der speziellen Artenschutzprüfung mit Stand vom September 2019, zuletzt geändert am 24.11.2022 sowie der umweltrelevanten Informationen in der Zeit

vom 06.02.2023 bis einschließlich 10.03.2023

in der Verwaltungsgemeinschaft Gemünden am Main, Frankfurter Straße 4a, 97737 Gemünden am Main, 1. Stock, während den allgemeinen Dienststunden, Montag bis Freitag von 8:00 Uhr bis 12:00 Uhr, jeden 1. Donnerstag im Monat von 13:00 Uhr bis 17:00 Uhr, sowie nach Vereinbarung zur allgemeinen Einsichtnahme für jedermann öffentlich aus. Ebenso können die Unterlagen zu den Bürgermeistersprechstunden eingesehen werden. Die Sprechstunden des 1. Bürgermeisters Klaus Schäfer finden nach vorheriger Terminvereinbarung unter Tel. 09351 9724-12, Mobil 0160 2146145, Klaus.Schaefer@vgem-gemuenden.bayern.de im Sitzungssaal der Zehntscheune in Gössenheim statt. Zudem können die Planunterlagen zur Aufstellung des vorhabenbezogenen Bebauungsplanes „Am Schotterwerk – Sondergebiet für den Betrieb von Anlagen und Betriebsgebäuden zur Herstellung, Aufbereitung und Zwischenlagerung von Boden, Gesteinen, Baustoffen und Recycling-Material“ der Gemeinde Gössenheim unter folgendem Link abgerufen werden:

www.goessenheim.de -> Bauen -> Wohnen -> Laufende Bauleitplanverfahren

(https://www.vgem-gemuenden.de/seite/gh/spessart/0197:724/-/Laufende_Bauleitplanverfahren.html)

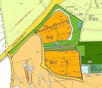
Der Umgriff des aufzustellenden Bebauungsplanes ist aus nachfolgender Plandarstellung zu entnehmen.

Die eingegangenen Stellungnahmen der Behörden in Bezug auf umweltbezogene Informationen sowie den dazu gefassten Gemeinderatsbeschluss vom 11.02.2021 sowie vom 12.01.2023 inkl. Anhörungsberichte liegen ebenso öffentlich aus. Auf folgende wesentliche Arten umweltbezogener Informationen wird hingewiesen:

Städtebau/Bauleitplanung

-

Stellungnahme der Regierung von Unterfranken vom 31.03.2020

(Hinweise auf Aussagen des Landesentwicklungsprogramms und dem Regionalplan der Region Würzburg, Aussage über das Vorranggebiet CA9 „südlich Gössenheim“, Hinweis auf den alternativen Korridor (Stromtrasse) von SüdLink)

-

Stellungnahme des Regionalen Planungsverbandes vom 01.04.2020

(Hinweise auf Aussagen des Landesentwicklungsprogramms und dem Regionalplan der Region Würzburg, Aussage über das Vorranggebiet CA9 „südlich Gössenheim“, Hinweis auf den alternativen Korridor (Stromtrasse) von SüdLink)

-

Stellungnahme des Landratsamtes Main – Spessart / Bauplanungsrecht vom 13.03.2020, 05.05.2021: (Konkretisierung der Höhenangaben in m. ü. NN, Ergänzung/Konkretisierung „Art der baulichen Nutzung“, südliche Erweiterung des Geltungsbereiches bzgl. – nicht privilegierten - Brecher)

-

Stellungnahme Bayerischer Bauernverband vom 23.04.2020

(Hinweise auf die bestehenden Erschließungswege für angrenzende land- und forstwirtschaftliche Grundstücke)

-

Stellungnahme der Stadt Karlstadt vom 02.06.2020

(Konkretisierung der Höhenangaben in m. ü. NN, Anregung weiterer Höhenpunkte auf dem Gelände, Ergänzung/Konkretisierung „Art der baulichen Nutzung“)

Natur- und Artenschutz

-

Stellungnahme des Landratsamtes Main – Spessart / Naturschutz vom 13.03.2020, 05.05.2021: (Hinweis auf die Aktualisierung/Überarbeitung des Umweltberichtes, Aussage auf die Eingriffsregelung sowie die damit verbundenen Ausgleichsflächen, Eingriffs-Ausgleich-Bilanzierung, Hinweis auf die Aktualisierung/Überarbeitung der speziellen artenschutzrechtlichen Prüfung sowie der Erfassungsmethodik)

-

Stellungnahme des Amtes für Ernährung, Landwirtschaft und Forsten vom 05.05.2020, 13.04.2021: (Hinweis auf die Ersatzaufforstung)

-

Stellungnahme des Bund Naturschutzes Main-Spessart vom 22.04.2020

(Hinweis auf die artspezifische Kartierung sowie auf die Aktualisierung/Ergänzung des Umweltberichtes samt spezieller Artenschutzprüfung, Aussage über Eingriff-Ausglich-Bilanzierung)

Wasserrecht

-

Stellungnahme des Landratsamtes Main-Spessart / Wasserrecht vom 13.03.2020, 05.05.2021: (Hinweis auf die bestehende wasserrechtliche Erlaubnis (Oberflächenwasser) und einer evtl. Erweiterung/Ergänzung dieser Erlaubnis)

-

Stellungnahme des Wasserwirtschaftsamtes Aschaffenburg vom 22.04.2020

(Hinweis auf das öffentliche Trink- und Abwassersystem der Gemeinde Gössenheim, Anforderungen des allgemeinen Grundwasserschutzes, Hinweis auf die Niederschlagswasserversickerung)

Boden

-

Stellungnahme des Wasserwirtschaftsamtes Aschaffenburg vom 22.04.2020

(Anmerkungen zum flächensparenden Umgang mit Boden, Aussage zum eigenständigen Genehmigungsverfahren nach BImSchG)

Während des Zeitraums der Beteiligung der Öffentlichkeit können Anregungen und Hinweise in der Verwaltungsgemeinschaft Gemünden am Main vorgebracht werden. Es wird darauf hingewiesen, dass nicht fristgerecht abgegebene Stellungnahmen bei der Beschlussfassung über den Bauleitplan unberücksichtigt bleiben können. Stellungnahmen können gemäß § 4a Abs. 3 BauGB nur zu den geänderten Planbereichen und Festsetzungen abgegeben werden.

Gemeinde Gössenheim
gez.
Klaus Schäfer
1. Bürgermeister