Titel Logo
Mitteilungsblatt der Stadt Gemünden am Main
Ausgabe 12/2023
Amtsblatt der Stadt Gemünden a. Main
Zurück zur vorigen Seite
Zurück zur ersten Seite der aktuellen Ausgabe

Bekanntmachung

Über die Aufhebung des Bebauungsplans „Friedenstraße-Baumgartenweg-St.Bruno Straße“, für die Beteiligungen nach § 3 Abs. 2, § 4 Abs. 2 i.V.m. § 4a Abs. 2 Baugesetzbuch (BauGB);

Der Stadtrat der Stadt Gemünden a.Main hat in seiner öffentlichen Sitzung am 20.03.2023, die Aufhebung des Bebauungsplans „Friedenstraße-Baumgartenweg-St.Bruno Straße“ beschlossen. Als Verfahren soll das beschleunigte Verfahren nach § 13a Abs. 4 BauGB durchgeführt werden.

Gleichzeitig wurde die Verwaltung beauftragt, die Beteiligung der Öffentlichkeit und der Träger öffentlicher Belange gemäß § 3 Abs. 2, § 4 Abs. 2 i.V.m. § 4a Abs. 2 BauGB, durchzuführen.

Anlass der Aufhebung war es, dass die Grundstücke im Geltungsbereich dieses Bebauungsplans, bis auf wenige Grundstücke bereits bebaut sind und eine Nachverdichtung in diesem Bereich, aufgrund der bestehenden Festsetzungen, nur bedingt möglich ist.

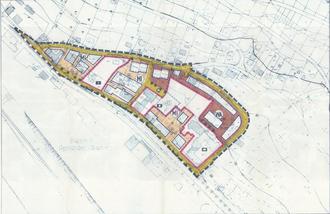
Der Geltungsbereich der Aufhebung ist im nachfolgenden Lageplan dargestellt:

Auch aufgrund der aktuellen Situation hinsichtlich der COVID-19-Pandemie und dementsprechender Schutzmaßnahmen, wird die Satzung und Begründung zur Aufhebung des Bebauungsplans gem. § 2 Abs. 1 und § 3 Abs. 1 Plansicherstellungsgesetz (PlanSiG) in Verbindung mit § 3 Abs. 2 BauGB durch die Veröffentlichung im Internet auf der Homepage der Stadt Gemünden a.Main zu jedermanns Einsichtnahme öffentlich ausgelegt;

https://www.stadt-gemuenden.de/seite/de/main-spessart/03790:3791/-/Bauleitplanung.html

Die Planunterlagen zur Aufhebung des Bebauungsplans können in der Zeit vom 31.03.2023 bis einschließlich 05.05.2023 auch im Rathaus der Stadt Gemünden a.Main (Nebengebäude, 1. Stock, Zimmer 110) innerhalb der allgemeinen Dienstzeiten von Montag bis Freitag von 08:00 Uhr bis 12:00 Uhr und Donnerstag von 14:00 Uhr bis 15:30 Uhr, eingesehen werden.

Die Planunterlagen werden bei Bedarf selbstverständlich erläutert. In der angegebenen Frist besteht die Gelegenheit, Stellungnahmen zum Entwurf schriftlich oder zur Niederschrift abzugeben.

Datenschutz: Die Verarbeitung personenbezogener Daten erfolgt auf der Grundlage der Art. 6 Abs. 1 Buchst. E (DSGVO) i.V. mit § 3 BauGB und dem BayDSG. Sofern Sie ihre Stellungnahme ohne Absenderangaben abgeben, erhalten Sie keine Mitteilung über das Ergebnis der Prüfung. Weitere Informationen entnehmen Sie bitte dem Formblatt „Datenschutzrechtliche Informationspflichten im Bauleitplanverfahren" das ebenfalls öffentlich ausliegt.

Gemäß § 4a Abs. 6 BauGB können Stellungnahmen, die im Verfahren der Öffentlichkeitsbeteiligung nicht rechtzeitig abgegeben worden sind, bei der Beschlussfassung über den Bauleitplan unberücksichtigt bleiben.

Gleichzeitig mit der öffentlichen Auslegung findet die Beteiligung der Behörden und sonstigen Träger öffentlicher Belange gemäß § 4 Abs. 2 BauGB statt.

Gemünden a.Main, 21.03.2023
STADT GEMÜNDEN
gez. Lippert
Erster Bürgermeister