Titel Logo
Grabenstätter Gemeindeanzeiger
Ausgabe 14/2023
Amtliche Bekanntmachungen
Zurück zur vorigen Seite
Zurück zur ersten Seite der aktuellen Ausgabe

BAURECHT:

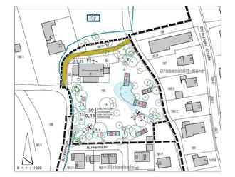
Plan ohne Maßstab

Änderung des Bebauungsplans „Grabenstätt Nord“ – Sondergebiet Fremdenverkehr - im Bereich der Grundstücke FlNrn. 190 und 190/4 (Chieminger Straße 19), Gemarkung Grabenstätt

Bekanntmachung

Satzungsbeschluss

Der Bau- und Planungsausschuss hat in der Sitzung am 25.05.2023 die oben genannte Bebauungsplanänderung in der Planfassung vom 25.05.2023 als Satzung beschlossen. Dieser Beschluss wird hiermit gemäß § 10 Abs. 3 Baugesetzbuch (BauGB) ortsüblich bekannt gemacht.

Mit dieser Bekanntmachung tritt die vorstehend bezeichnete Änderung des Bebauungsplans „Grabenstätt Nord“ – Sondergebiet Fremdenverkehr - in Kraft.

Die Bebauungsplanänderung liegt samt Begründung ab Veröffentlichung dieser Bekanntmachung im Rathaus der Gemeinde Grabenstätt im Schloss Grabenstätt, Schlossstraße 15 in 83355 Grabenstätt, Zimmer-Nr. 11 im II. Stock, während der allgemeinen Dienststunden öffentlich aus und kann dort eingesehen werden.

Gemäß § 215 Abs. 1 BauGB ist eine Verletzung folgender Vorschriften beim Zustandekommen der Bebauungsplanänderung unbeachtlich, wenn sie nicht schriftlich innerhalb von einem Jahr seit Bekanntmachung des geänderten Bebauungsplans gegenüber der Gemeinde geltend gemacht worden sind:

  1. Eine nach § 214 Abs. 1 Satz 1 Nr. 1 bis 3 BauGB beachtliche Verletzung der dort bezeichneten Verfahrens- und Formvorschriften,
  2. eine unter Berücksichtigung des § 214 Abs. 2 BauGB beachtliche Verletzung der Vorschriften über das Verhältnis des Bebauungsplans und des Flächennutzungsplans und
  3. nach § 214 Abs. 3 Satz 2 BauGB beachtliche Mängel des Abwägungsvorgangs.
  4. nach § 214 Abs. 2a BauGB im beschleunigten Verfahren beachtliche Fehler.

Der Sachverhalt, der die Verletzung oder die Mängel begründen soll, ist darzulegen.

Auf die Vorschriften des § 44 Abs. 3 Satz 1 und 2 und Abs. 4 BauGB über die fristgemäße Geltendmachung etwaiger Entschädigungsansprüche für Eingriffe in eine bisher zulässige Nutzung durch diesen Bebauungsplan und über das Erlöschen von Entschädigungsansprüchen wird hingewiesen. Danach erlöschen Entschädigungsansprüche für nach den §§ 39 bis 42 BauGB eingetretene Vermögensnachteile, wenn nicht innerhalb von drei Jahren nach Ablauf des Kalenderjahres, in dem die Vermögensnachteile eingetreten sind, die Fälligkeit des Anspruchs herbeigeführt wird.

Der Inhalt dieser öffentlichen Bekanntmachung zum Inkrafttreten der Bebauungsplanänderung „Grabenstätt Nord“ steht auf der Internetseite der Gemeinde Grabenstätt www.grabenstaett.de > Ortsinformationen – Ortsrecht – laufende Bauleitverfahren > Bebauungsplanänderung „Grabenstätt Nord“- Sondergebiet Fremdenverkehr - während der Bekanntmachungsfrist zum Download bereit.

Grabenstätt, den 04.07.2023
Gemeinde Grabenstätt
Gez.G. Wirnshofer
Erster Bürgermeister

Geltungsbereich der in Kraft getretenen Bebauungsplanänderung „Grabenstätt Nord“ – Sondergebiet Fremdenverkehr – für FlNrn. 190 und 190/4, Gemarkung Grabenstätt