Titel Logo
Grabenstätter Gemeindeanzeiger
Ausgabe 5/2023
Amtliche Bekanntmachungen
Zurück zur vorigen Seite
Zurück zur ersten Seite der aktuellen Ausgabe

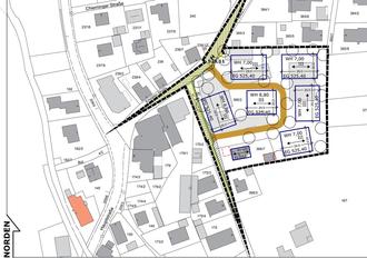
Baurecht Bebauungsplan „Grabenstätt Nord“: Änderung im Bereich der Grundstücke FlNrn. 366/2, 366/3 und 366/7 (Erlstätter Straße / Hochstraße, Grabenstätt),Gemarkung Grabenstätt

Plan ohne Maßstab

Baurecht

Bebauungsplan „Grabenstätt Nord“: Änderung im Bereich der Grundstücke FlNrn. 366/2, 366/3 und 366/7 (Erlstätter Straße / Hochstraße, Grabenstätt), Gemarkung Grabenstätt

Bekanntmachung

über den Aufstellungsbeschluss und die Durchführung der Öffentlichkeits- sowie der Behördenbeteiligung

Der Bau- und Planungsausschuss hat in der Sitzung am 08.12.2022 beschlossen, den Bebauungsplan „Grabenstätt Nord“ zu ändern. Die Änderung bezieht sich ausschließlich auf die Grundstücke FlNrn. 366/2, 366/3 und 366/7 (Erlstätter Straße / Hochstraße), Gemarkung Grabenstätt.

Der Geltungsbereich der Bebauungsplanänderung kann dem nachfolgend gedruckten Übersichtsplan entnommen werden.

Planungsziel der Änderung ist vorrangig: Das bisher gewerblich genutzte Gelände in der Nähe des Ortskerns von Grabenstätt soll im Zuge einer Konversion als Wohnungsbaustandort genutzt werden. Das Gelände soll mit größeren Einzelgebäuden (Mehrfamilienhäuser) bebaut werden.

Da die Voraussetzungen vorliegen, ist das Änderungsverfahren gem. § 13a BauGB (Bebauungsplan der Innenentwicklung) durchzuführen.

Der Aufstellungsbeschluss wird hiermit gemäß § 2 Abs. 1 Satz 2 Baugesetzbuch (BauGB) ortsüblich bekannt gemacht.

Die Planungsunterlagen (Planzeichnung mit Textlichen Festsetzungen und städtebauliche Begründung) wurden durch das die Planungsgruppe Strasser PLG, Traunstein, ausgearbeitet.

Der Entwurf in der Fassung vom 15.11.2022 wurde vom Bau- und Planungsausschuss gebilligt. Auf dieser Grundlage wird die Öffentlichkeits- und Behördenbeteiligung durchgeführt.

Dieser Entwurf der Bebauungsplanänderung liegt hierzu in der Zeit vom

10.03. bis einschließlich 11.04.2023

im Rathaus Grabenstätt, Schlossstraße 15, Zimmer Nr. 11, 2. Stock, während der allgemeinen Dienststunden öffentlich aus. Auf Wunsch wird die Planung erläutert. Gleichzeitig können Bedenken und Anregungen (schriftlich oder zur Niederschrift) vorgebracht werden. Nicht fristgerecht abgegebenen Stellungnahmen können bei der Beschlussfassung über den Bebauungsplan unberücksichtigt bleiben.

Die Öffentlichkeitsbeteiligung gemäß § 3 Abs. 2 BauGB wird hiermit ortsüblich bekannt gemacht.

Es wird darauf hingewiesen, dass der Bebauungsplan im beschleunigten Verfahren gem. § 13a BauGB und ohne Durchführung einer Umweltprüfung nach § 2 Abs. 4 BauGB geändert werden soll.

Von einer frühzeitigen Öffentlichkeitsbeteiligung nach § 3 Abs. 1 BauGB wird abgesehen.

Die Beteiligung der Behörden und sonstige Träger öffentlicher Belange nach § 4 Abs. 2 BauGB wird gleichzeitig mit der öffentlichen Auslegung durchgeführt.

Diese Bekanntmachung und die Planunterlagen können während der Öffentlichkeitsbeteiligung auch auf der Internetseite der Gemeinde Grabenstätt unter

https://www.grabenstaett.de/ortsinformationen/ortsrecht/laufende-bauleitverfahren

„Grabenstätt Nord“ FlNrn. 366/2, 366/3 und 366/7, Gemarkung Grabenstätt,

eingesehen werden.

Es wird darum gebeten, nach Möglichkeit vorrangig von der Veröffentlichung auf der Homepage der Gemeinde Grabenstätt Gebrauch zu machen, die Unterlagen auf dieser Homepage einzusehen und die Stellungnahmen per Post an die Gemeinde Grabenstätt, Schloßstraße 15, 83355 Grabenstätt oder per E-Mail an bauamt@grabenstaett.de zu senden oder direkt im Rathaus abzugeben. Im Übrigen wird für die Einsichtnahme in die Planunterlagen um vorherige telefonische oder elektronische Terminvereinbarung gebeten.

Datenschutz:

Die Verarbeitung personenbezogener Daten erfolgt auf der Grundlage der Art. 6 Abs. 1 Buchstabe e) der Datenschutzgrundverordnung (DSGVO) i.V. mit § 3 BauGB und dem Bayerischen Datenschutzgesetz (BayDSG). Sofern Sie Ihre Stellungnahme ohne Absenderangaben abgeben, erhalten Sie keine Mitteilung über das Ergebnis der Prüfung. Weitere Informationen entnehmen Sie bitte dem Formblatt „Datenschutzrechtliche Informationspflichten im Bauleitverfahren“ das ebenfalls öffentlich ausliegt.

Grabenstätt, den 01.03.2023
Gemeinde Grabenstätt
Gez. G. Wirnshofer
Erster Bürgermeister

Übersichtsplan zur Änderung des Bebauungsplans „Grabenstätt Nord“

FlNrn. 366/2, 366/3 und 366/7, Gemarkung Grabenstätt