Titel Logo
Amtsblatt Großheirath
Ausgabe 19/2023
Amtliche Bekanntmachungen
Zurück zur vorigen Seite
Zurück zur ersten Seite der aktuellen Ausgabe

Bekanntmachung Beteiligung § 3 Abs. 2

1. Änderung Bebauungsplan

16. Änderung Flächennutzungsplan

Bekanntmachung

Vollzug der Baugesetze:

Bauleitplanung der Gemeinde Großheirath;

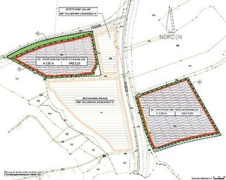
1. Änderung des vorhabenbezogenen Bebauungsplans mit Vorhaben- und Erschließungsplan für die „Agrovoltaikanlage am Gossenberg“ im vereinfachten Verfahren und 16. Änderung des Flächennutzungsplans Großheirath im Parallelverfahren;

Beteiligung der Öffentlichkeit nach § 3 Abs. 2 BauGB

Teil A: Bekanntgabe des Aufstellungsbeschlusses

Der Gemeinderat der Gemeinde Großheirath hat am 13.09.2023 in öffentlicher Sitzung die 1. Änderung des vorhabenbezogenen Bebauungsplans „Agrovoltaikanlage am Gossenberg“ und die 16. Änderung des Flächennutzungsplans im Parallelverfahren durch vereinfachtes Verfahren beschlossen.

Gleichzeitig wurden die Entwürfe für die jeweiligen Änderungsverfahren gebilligt und die Beteiligung der Öffentlichkeit nach § 3 Abs. 2 BauGB beschlossen

Die betroffenen Flurnummern lauten: 354 und 364, Gmkg. Gossenberg, und haben eine Größe von ca. 9,42 ha.

Ziel und Zweck der Planung

Ziel und Zweck der Änderung der Bauleitpläne ist die Erhöhung der Wirtschaftlichkeit und Leistungsfähigkeit durch die Zulassung einer größeren Anzahl von Modulen.

Teil B: Beteiligung der Öffentlichkeit nach § 3 Abs. 2 BauGB

Nach § 3 Abs. 2 BauGB ist eine Beteiligung der Öffentlichkeit durchzuführen. Im Rahmen dieser Beteiligung können von allen Bürgern die Planunterlagen im Rathaus der Gemeinde Großheirath eingesehen und entsprechende Hinweise, Bedenken und Anregungen vorgebracht werden.

Die Planunterlagen zur 1. Änderung des vorhabenbezogenen Bebauungsplans „Agrovoltaikanlage am Gossenberg“ und zur 16. Änderung des Flächennutzungsplans mit Begründung und Umweltbericht können im Zeitraum von

Montag, den 02.10.2023 – einschließlich Freitag, den 03.11.2023

während der regulären Geschäftszeiten im Rathaus der Gemeinde Großheirath (Schulstraße 34, 96269 Großheirath) eingesehen werden.

Während dieser Frist wird Auskunft über Planungsinhalt und Planungsziel erteilt (Darlegung). Gleichzeitig besteht die Gelegenheit zur Äußerung in schriftlicher bzw. zur Niederschrift in mündlicher Form und zur Erörterung (Anhörung).

Der Inhalt der ortsüblichen Bekanntmachung nach § 3 Abs. 2 BauGB und die auszulegenden Unterlagen werden zusätzlich in das Internet unter nachfolgender Internet-Adresse:

https://www.grossheirath.de/de/bauen-in-grossheirath/bauleitplanung

eingestellt.

Nicht fristgerecht abgegebene Stellungnahmen können bei der Beschlussfassung über die 1. Änderung des vorhabenbezogenen Bebauungsplans „Agrovoltaikanlage am Gossenberg“ und der 16. Änderung des Flächennutzungsplans unberücksichtigt bleiben, wenn die Gemeinde den Inhalt nicht kannte und hätte nicht kennen müssen und deren Inhalt für die Rechtmäßigkeit des Bebauungsplans bzw. die 16. Änderung des Flächennutzungsplans nicht von Bedeutung ist.

Die Verarbeitung personenbezogener Daten erfolgt auf der Grundlage der Art. 6 Abs. 1 Buchstabe e DSGVO i.V.m. § 3 BauGB und dem BayDSG. Sofern Sie Ihre Stellungnahme ohne Absenderangaben abgeben, erhalten Sie keine Mitteilung über das Ergebnis der Prüfung.

Wesentliche umweltbezogene Stellungnahmen liegen mit aus und können ebenfalls unter oben angegebener Internetadresse eingesehen werden:

Großheirath, den 22.09.2023
gez.
Udo Siegel
1. Bürgermeister