Titel Logo
Ortsgespräch - Amtsblatt der VG Partenstein und ihrer Körperschaften
Ausgabe 26/2023
Bekanntmachungen/Ortsrecht
Zurück zur vorigen Seite
Zurück zur ersten Seite der aktuellen Ausgabe

Gemeinde Neuhütten

Einbeziehungs- und Entwicklungssatzung „Mischgebiet Spatgrube“

Beteiligung der Öffentlichkeit gemäß § 3 Abs. 2 i. V. m. § 4 a Abs. 3 Baugesetzbuch (BauGB)

Der Gemeinderat Neuhütten hat am 16.09.2019 die Aufstellung der Einbeziehungs- und Entwicklungssatzung „Mischgebiet Spatgrube“ beschlossen und den vom Landschaftsarchitekten Markus Fleckenstein, Pfingstgrundstraße 14, 97816 Lohr a. Main ausgearbeiteten Entwurf einschließlich der Begründung, zuletzt geändert am 20.11.2023, in seiner Sitzung vom 11.12.2023 gebilligt. Ziel der Satzung ist die planungsrechtliche Fassung der Bestandssituation und die Ermöglichung maßvoller Erweiterungen an der bestehenden Bebauung. Der Geltungsbereich beinhaltet die Flurstücke 1516, 1516/1, 7261, 7264 sowie eine Teilfläche des Flurstücks 7260 der Gemarkung Neuhütten.

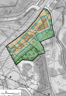
Der Umgriff des Geltungsbereiches ist aus nachfolgender Plandarstellung zu entnehmen:

Die Einbeziehungs- und Entwicklungssatzung wird auf Grundlage des § 34 Abs. 4 Satz 1 Nummern 2 und 3 BauGB aufgestellt. Die naturschutzrechtliche Eingriffsregelung gemäß § 1a Abs. 3 BauGB wird angewendet.

Die nochmalige Beteiligung der Öffentlichkeit erfolgt durch Auslegung gemäß § 3 Abs. 2 BauGB in Verbindung mit den Vorgaben des § 4a Abs. 3 Satz 2 BauGB, wonach Stellungnahmen nur zu den geänderten oder ergänzten Teilen abgegeben werden können. Die Beteiligung der von Satzungsinhalten berührten Behörden und sonstigen Träger öffentlicher Belange erfolgt gemäß § 4 Abs. 2 BauGB.

Der Entwurf der Einbeziehungs- und Entwicklungssatzung mit der Begründung sowie der umweltrelevanten Informationen liegt gemäß § 3 Abs. 2 BauGB i. V. m. § 4 a Abs. 3 BauGB in der Zeit

vom 08.01.2024 bis einschließlich 31.01.2024

in der Verwaltungsgemeinschaft Partenstein, Hauptstraße 24, 97846 Partenstein im Bauamt (Zimmer: OG 21) während der allgemeinen Dienststunden, Montag bis Freitag von 08:30 Uhr bis 12:30 Uhr, zusätzlich Donnerstag von 14:00 Uhr bis 18:00 Uhr, sowie nach Vereinbarung zur allgemeinen Einsichtnahme für jedermann öffentlich aus.

Ebenso können die Unterlagen zu den Bürgermeistersprechstunden (Dienstag, 17:00 Uhr bis 19:00 Uhr) im Rathaus Neuhütten eingesehen werden.

Zudem können die Planunterlagen im oben genannten Zeitraum unter folgendem Link abgerufen werden:

https://www.vg-partenstein.de/seite/ne/spessart/2861/-/Aufstellung_der_Einbeziehungs-und_Entwicklungssatzung_Mischgebiet_Spatgrube.html

Die wesentlichen umweltbezogenen Informationen sind:

Natur- und Artenschutz:

-

Präsenz-/Absenzkartierung Reptilien vom 14.09.2021, aufgestellt durch den Landschaftsarchitekten Markus Fleckenstein aus Lohr a. Main

-

Stellungnahme des Landratsamtes Main-Spessart vom 05.04.2023, Anpassung der erforderlichen Ausgleichsflächen, Durchführung und Festsetzung der Ausgleichsmaßnahmen auf einem Teilstück des Flurstücks 7260, Gemarkung Neuhütten

-

Stellungnahme der Regierung von Unterfranken vom 03.04.2023 (Nachrichtliche Ergänzungen zum Grenzanpassungsverfahren des Landschaftsschutzgebietes Spessart)

Immissionsschutz:

-

Schallimmissionsprognose Verkehrslärm, Berichtsnummer Y0785.001.01.001 vom 09.01.2020; aufgestellt durch das Büro Wölfel Engineering GmbH & Co. KG aus Höchberg

-

Stellungnahme des Landratsamtes Main-Spessart vom 05.04.2023 (Anpassung und Präzisierung von textlichen Festsetzungen und Hinweisen bei den Regelungen zum Immissionsschutz)

Wasserrecht:

-

Stellungnahme des Wasserwirtschaftsamtes Aschaffenburg vom 04.04.2023 (Ergänzung von Vorgaben zum Schutz vor Schäden durch Starkregen und Überflutung)

Bodenschutz:

-

Stellungnahme des Bayerischen Landesamtes für Denkmalpflege vom 27.03.2023 (Aufnahme von Hinweisen zu grundsätzlichen, denkmalrechtlichen Anforderungen)

-

Stellungnahme des Landratsamtes Main-Spessart vom 05.04.2023 (Ergänzungen um Hinweise zum allgemeinen Bodenschutz und zu eventuell auftretenden Altlasten)

Während des Zeitraums der Beteiligung können Anregungen und Hinweise der Öffentlichkeit schriftlich oder zur Niederschrift in der Verwaltungsgemeinschaft Partenstein vorgebracht werden. Es wird gemäß § 4a Abs. 6 Satz 1 BauGB darauf hingewiesen, dass nicht fristgerecht abgegebene Stellungnahmen bei der Beschlussfassung über den Bauleitplan unberücksichtigt bleiben können.

Ergänzend wird darauf hingewiesen, dass eine Vereinigung im Sinne des § 4 Abs. 3 Satz 1 Nr. 2 UmwRG (Umwelt-Rechtsbehelfsgesetz) in einem Rechtsbehelfsverfahren nach § 7 Abs. 2 UmwRG gemäß § 7 Abs. 3 Satz 1 UmwRG mit allen Einwendungen ausgeschlossen ist, die sie im Rahmen der Auslegungsfrist nicht oder nicht rechtzeitig gemacht hat, aber hätte geltend machen können.

Gemeinde Neuhütten, 22.12.2023
gez.
Bernd Steigerwald
Erster Bürgermeister