Titel Logo
Ortsgespräch - Amtsblatt der VG Partenstein und ihrer Körperschaften
Ausgabe 5/2023
Bekanntmachungen/Ortsrecht
Zurück zur vorigen Seite
Zurück zur ersten Seite der aktuellen Ausgabe

Bekanntmachungen/Ortsrecht

Gemeinde:

Neuhütten

Kreis:

Main - Spessart

Bekanntmachung

Einbeziehungs- und Entwicklungssatzung „Mischgebiet Spatgrube“

Beteiligung der Öffentlichkeit gemäß § 3 Abs. 2 Baugesetzbuch (BauGB)

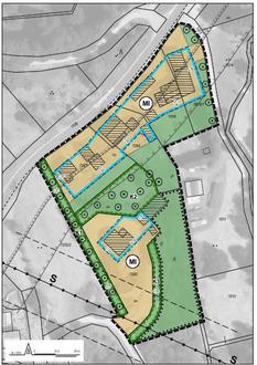
Der Gemeinderat Neuhütten hat am 16.09.2019 die Aufstellung der Einbeziehungs- und Entwicklungssatzung „Mischgebiet Spatgrube“ beschlossen und den vom Landschaftsarchitekten Markus Fleckenstein, Pfingstgrundstraße 14, 97816 Lohr a. Main ausgearbeiteten Entwurf in seiner Sitzung vom 23.01.2023 gebilligt. Ziel der Satzung ist die planungsrechtliche Fassung der Bestandssituation und die Ermöglichung maßvoller Erweiterungen an der bestehenden Bebauung. Der Geltungsbereich beinhaltet die Flurstücke 1516, 1516/1, 7260, 7261 und 7264 der Gemarkung Neuhütten.

Der Umgriff des Geltungsbereiches ist aus nachfolgender Plandarstellung zu entnehmen:

Die Einbeziehungs- und Entwicklungssatzung wird auf Grundlage des § 34 Abs. 4 Satz 1 Nummern 2 und 3 BauGB aufgestellt. Die naturschutzrechtliche Eingriffsregelung gemäß § 1a Abs. 3 BauGB wird angewendet, die Aufstellung der Satzung wird gemäß § 34 Abs. 6 i. V. m. § 13 Abs. 2 Nummern 2 und 3 BauGB im vereinfachten Verfahren durchgeführt.

Die Beteiligung der Öffentlichkeit erfolgt durch Auslegung gemäß § 3 Abs. 2 BauGB, die Beteiligung der von Satzungsinhalten berührten Behörden und sonstigen Träger öffentlicher Belange gemäß § 4 Abs. 2 BauGB.

Der Entwurf der Einbeziehungs- und Entwicklungssatzung mit der Begründung sowie der umweltrelevanten Informationen liegt gemäß § 3 Abs. 2 BauGB in der Zeit

vom 13.03.2023 bis einschließlich 14.04.2023

in der Verwaltungsgemeinschaft Partenstein, Hauptstraße 24, 97846 Partenstein im Bauamt (Zimmer: OG 21) während der allgemeinen Dienststunden, Montag bis Freitag von 08:30 Uhr bis 12:30 Uhr, zusätzlich Donnerstag von 14:00 Uhr bis 18:00 Uhr, sowie nach Vereinbarung zur allgemeinen Einsichtnahme für jedermann öffentlich aus.

Ebenso können die Unterlagen zu den Bürgermeistersprechstunden (Dienstag, 17:00 Uhr bis 19:00 Uhr) im Rathaus Neuhütten eingesehen werden.

Zudem können die Planunterlagen im oben genannten Zeitraum unter folgendem Link abgerufen werden:

https://www.vg-partenstein.de/seite/ne/spessart/2861/-/Aufstellung_der_Einbeziehungs-und_Entwicklungssatzung_Mischgebiet_Spatgrube.html

Die wesentlichen umweltbezogenen Informationen sind:

Natur- und Artenschutz:

- Präsenz-/Absenzkartierung Reptilien vom 14.09.2021, aufgestellt durch den Landschaftsarchitekten Markus Fleckenstein aus Lohr a. Main

Immissionsschutz:

- Schallimmissionsprognose Verkehrslärm, Berichtsnummer Y0785.001.01.001 vom 09.01.2020; aufgestellt durch das Büro Wölfel Engineering GmbH & Co. KG aus Höchberg

Während des Zeitraums der Beteiligung können Anregungen und Hinweise der Öffentlichkeit schriftlich oder zur Niederschrift in der Verwaltungsgemeinschaft Partenstein vorgebracht werden. Es wird gemäß § 4a Abs. 6 Satz 1 BauGB darauf hingewiesen, dass nicht fristgerecht abgegebene Stellungnahmen bei der Beschlussfassung über den Bauleitplan unberücksichtigt bleiben können.

Gemeinde Neuhütten, 03.03.2023
gez.
Bernd Steigerwald
Erster Bürgermeister