Titel Logo
Ortsgespräch - Amtsblatt der VG Partenstein und ihrer Körperschaften
Ausgabe 9/2024
Bekanntmachungen/Ortsrecht
Zurück zur vorigen Seite
Zurück zur ersten Seite der aktuellen Ausgabe

Gemeinde Neuhütten

Gemeinde:

Neuhütten

Kreis:

Main - Spessart

Bekanntmachung

Einbeziehungs- und Entwicklungssatzung „Mischgebiet Spatgrube“

Satzungsbeschluss gemäß § 10 Abs. 3 Baugesetzbuch (BauGB)

Der Gemeinderat Neuhütten hat mit Beschluss vom 15.04.2024 die Einbeziehungs- und Entwicklungssatzung „Mischgebiet Spatgrube“ in der Fassung vom 05.04.2024 gemäß § 10 Abs. 1 BauGB als Satzung beschlossen.

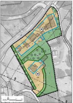
Der Umgriff des Geltungsbereiches ist aus nachfolgender Plandarstellung zu entnehmen:

Dies wird gemäß § 10 Abs. 3 Satz 1 BauGB ortsüblich bekannt gemacht.

Die Einbeziehungs- und Entwicklungssatzung mitsamt Begründung wird ab sofort in der Verwaltungsgemeinschaft Partenstein, Hauptstraße 24, 97846 Partenstein, während der allgemeinen Dienststunden zu jedermanns Einsicht bereitgehalten. Über den Inhalt wird auf Verlangen Auskunft gegeben.

Mit dieser Bekanntmachung tritt die Einbeziehungs- und Entwicklungssatzung gemäß § 10 Abs. 3 Satz 4 BauGB in Kraft.

Für den Fall, dass die in den §§ 39 bis 42 BauGB bezeichneten Vermögensnachteile eingetreten sind, können Entschädigungsberechtigte Entschädigung verlangen. Die Fälligkeit des Anspruchs kann dadurch herbeigeführt werden, dass die Leistung der Entschädigung schriftlich bei dem Entschädigungspflichtigen beantragt wird (§ 44 Abs. 3 BauGB).

Ein Entschädigungsanspruch erlischt, wenn nicht innerhalb von drei Jahren nach Ablauf des Kalenderjahres, in dem die oben erwähnten Vermögensnachteile eingetreten sind, die Fälligkeit des Anspruches herbeigeführt wird (§ 44 Abs. 4 BauGB).

Unbeachtlich werden

1.

nach § 214 Abs. 1 Satz 1 Nr. 1 bis 4 BauGB beachtliche Verletzung der dort bezeichneten Verfahrens- und Formvorschriften,

2.

eine unter Berücksichtigung des § 214 Abs. 2 BauGB beachtliche Verletzung der Vorschriften über das Verhältnis des Bebauungsplanes und des Flächennutzungsplanes und

3.

nach § 214 Abs. 3 Satz 2 BauGB beachtliche Mängel des Abwägevorgangs, wenn nicht innerhalb eines Jahres seit Bekanntmachung der Satzung schriftlich gegenüber der Gemeinde Neuhütten unter Darlegung des die Verletzung begründenden Sachverhaltes, diese geltend gemacht worden sind.

Neuhütten, den 22.04.2024
Gemeinde Neuhütten
gez.
Bernd Steigerwald
Erster Bürgermeister