Titel Logo
Mitteilungsblatt für den Markt Hohenwart
Ausgabe 32/2024
Amtliche Bekanntmachungen
Zurück zur vorigen Seite
Zurück zur ersten Seite der aktuellen Ausgabe

Amtliche Bekanntmachungen

Bevor Bürgermeister Jürgen Haindl in die Tagesordnung startete bat er um eine Schweigeminute für den am 05.07.2024 verstorbenen, langjährigen Pfarrer Reinhold Gumbiller.

1. Vortrag von MdL Herrn Karl Straub über seine Arbeit als Integrationsbeauftragter der Bayerischen Staatsregierung

Zu Beginn der letzten Sitzung vor der Sommerpause hielt Integrationsbeauftragter der Bayerischen Staatsregierung und Mitglied des Landtags Herr Karl Straub einen Vortrag zum Thema Migration und Integration. Hier informierte er die Versammlung z.B. über die aktuellen Zahlen von Asylanträgen oder die Entwicklung über die Jahre hinweg. Die Fragen des Marktgemeinderates wurden von Herrn Straub beantwortet.

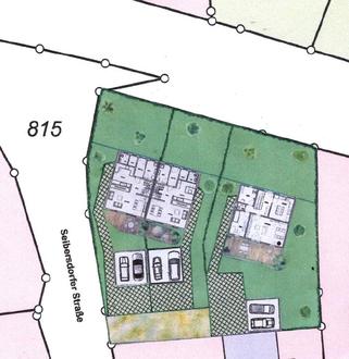
2. Antrag auf Änderung der Abrundungssatzung Nr. 1 - Thierham

Um eine Nachverdichtung zu ermöglichen, soll die Ortsabrundungssatzung in Thierham geändert werden. Das Grundstück Seibersdorfer Straße 1 soll überplant werden. Der Investor hat über ein Planungsbüro eine mögliche Bebauung mit 2 Baukörpern mit jeweils 7 Wohneinheiten skizzieren lassen (siehe unten).

Der Marktgemeinderat hat nun das Verfahren mit dem Änderungsbeschluss eingeleitet. Im Laufe des Verfahrens soll die Zufahrt nochmal überprüft werden.

3. Antrag auf isolierte Befreiung zur Nutzungsänderung einer Gartenhütte zur Kleintierhaltung in Thierham, Am Weiher

Die Antragstellerin beantragte beim Markt Hohenwart die isolierte Befreiung für die Umnutzung einer Gartenhütte zur Unterbringung von Hühnern (Kleintierhaltung). Der Bebauungsplans Nr. 34 – Thierham „Angerfeld“ schließt aktuell die Zulässigkeit von baulichen Anlagen zur Kleintierhaltung im allgemeinen Wohngebiet aus. Die direkt betroffenen Nachbarn haben dem Antrag nicht zugestimmt bzw. den Antrag nicht unterschrieben. Der Bauausschuss lehnte den Antrag daher ab. Die Antragstellerin bittet nun den Markt Hohenwart (Marktgemeinderat) in einem Schreiben das Verbot für die Unterbringung von Kleintieren zu überdenken und den Bebauungsplans Nr. 34 – Thierham „Angerfeld“ entsprechend zu ändern.

Nach hinreichender Diskussion vertagt der Marktgemeinderat den Tagesordnungspunkt auf die nächste Sitzung im September. Bis dahin soll von der Verwaltung geprüft werden, ob man speziell die Haltung eines Tieres, insbesondere eines Hahnes, baurechtlich ausschließen kann. Eine Einschränkung der Haltung ist nach Meinung der Verwaltung nur Immissions- und Tierschutzrechtlich möglich - zuständig wäre hierfür dann das Landratsamt. Hier wird von der Verwaltung Rücksprache mit dem Landratsamt gehalten. Die Nachbarn sollen gefragt werden, ob sie den Antrag unterschreiben würden, wenn die Antragstellerin die Hühner ohne Gockel halten würde.

4. Information zum Bürgerfest 2024

Bürgermeister Jürgen Haindl informierte den Marktgemeinderat über das Programm des Bürgerfestes am kommenden Wochenende und bedankte sich an dieser Stelle bei allen mitwirkenden Vereinen. Er teilte auch mit, dass das Helferfest in der Kürze der Zeit nicht organisierbar gewesen wäre und dieses deshalb auf Ende des Jahres geschoben wird.

5. Genehmigung von Spenden

Bei der Marktkasse gingen zwei Spenden ein, die vom Marktgemeinderat genehmigt werden musste.

Zum einen hat Frau Elisabeth Petz 50,00 € für die Gemeindeschafe gespendet und zum anderen wurde an der Eröffnungsfeier der Kinderkrippe eine Spendenbox für Ehrengäste aufgestellt. Hier kamen 145,00 € zusammen. Die Spenden wurden einstimmig vom Gemeinderat genehmigt.

6. Bekanntgaben und Anfragen

-

Bürgermeister Jürgen Haindl informierte die Marktgemeinderäte über die diesjährige Bürgerversammlung.

Diese wird am 18.09.2024 im VHS-Raum im historischen Rathaus stattfinden.

-

Marktgemeinderatsmitglied Wenzeslaus Hackl fragte nach, was es mit dem Artikel über das Ehrenamt im Mitteilungsblatt auf sich hatte. Bürgermeister Jürgen Haindl erklärte an dieser Stelle, dass der Anlass des Artikels eine Auseinandersetzung mit einer Schulweghelferin war. Der Artikel bezog sich keinesfalls auf das Hochwasser. Dies wurde von einigen Bürgern missverstanden.

-

Marktgemeinderat Thomas Rolnik fragte bei der Verwaltung an, wie es mit der Organisation für einen Ehrenabend aussieht. Die Vereine und Organisationen werden nun zeitnah angeschrieben bzgl. zu ehrender Mitglieder, damit ein Ehrenabend geplant werden kann.

Marktgemeinderat Michael Petz merkte zum Schluss noch an, dass im Mitteilungsblatt die Artikel mit Bildern wie z.B. vom Kindergarten, in Zukunft etwas größer gedruckt werden soll