Titel Logo
Mitteilungsblatt für den Markt Hohenwart
Ausgabe 41/2025
Amtliche Bekanntmachungen
Zurück zur vorigen Seite
Zurück zur ersten Seite der aktuellen Ausgabe

Amtliche Bekanntmachungen

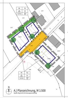
Bebauungsplan Nr. 64 - Freinhausen „Hohenwarter Straße“

Am Ortseingang von Freinhausen soll ein bestehendes Wohnhaus abgerissen und an gleicher Stelle ein Mehrfamilienhaus errichtet werden. Für das Vorhaben ist die Aufstellung eines Bebauungsplanes notwendig. Da auf der nördlichen Seite der Hohenwarter Straße zwei Grundstücke wegen dem Abbruch jeweils eines Wohnhauses seit längerem baurechtlich im Außenbereich (§ 35 BauGB) liegen und damit nicht mehr bebaut werden können, wurde überlegt auch diese Grundstücke bei einer Bauleitplanung mit einzubeziehen.

Der Bebauungsplanentwurf sieht ein allgemeines Wohngebiet (WA) mit einer GRZI von 0,4 vor. Es sind dabei nur Einzelhäuser zugelassen. Die Wandhöhe ist auf maximal 7,00 Meter und die Firsthöhe auf maximal 10,50 Meter festgelegt worden. Wegen der Zulassung von oberirdischen Stellplätzen wird die GRZII ausnahmsweise für zwei der drei Grundstücke auf 0,8 erhöht.

Der Marktgemeinderat fasste den Aufstellungsbeschluss für den Bebauungsplan. Das Bauleitplanverfahren kann jederzeit auf der Homepage des Marktes Hohenwart unter www.markt-hohenwart.de eingesehen werden.

Änderung Öffnungszeiten Wertstoffhof

Der Abfallwirtschaftsbetrieb Pfaffenhofen fordert sämtliche Landkreisgemeinden auf, Personalkosten in den Wertstoffhöfen einzusparen und die Öffnungszeiten zu kürzen.

Ab 01.11.2025 ändern sich somit die Öffnungszeiten des Wertstoffhofes. Am Mittwochvormittag ist von 09.00 Uhr bis 11.00 Uhr geöffnet. Die Öffnungszeit am Mittwochnachmittag wird dafür gestrichen.

Die neuen Öffnungszeiten des Wertstoffhofes sind somit:

Montag

17:00–19:00

Mittwoch

09:00–11:00Nachmittags/Abends geschlossen

Freitag

16:00–18:00

Samstag

10:00–14:00

Kommunalwahl 2026

Am 08.03.2026 finden die Kommunalwahlen statt. Grundlage für die Anzahl der Marktgemeinderäte ist der amtliche Einwohnerstand zum Stichtag 31.03.2025 mit 4.897 Einwohner. Damit bleibt es bei der aktuellen Anzahl von 16 Gemeinderäten für den Mark Hohenwart. Weiter wurde beschlossen, dass die Urnenwahllokale - auch in den Ortsteilen - wie bisher angeboten werden. Die Wahlhelferentschädi–gung wurde auf 100,00 Euro für die Kommunalwahl und 40,00 Euro für die Stichwahl festgelegt.

Außerdem wurden folgende Themen behandelt

  • Aufgrund von Anwohnerbeschwerden befürwortet der Marktgemeinderat die Beseitigung der Kopfsteinpflaster-Flächen in Freinhausen. Straßenbaulastträger und somit zuständig ist das staatliche Bauamt Ingolstadt. Weiterhin soll von der Verwaltung beim Straßenbauamt Ingolstadt angefragt werden, ob die Möglichkeit besteht, einen Zebrastreifen in diesem Bereich zu errichten.
  • Dominik Meier von Natur Perspektiven GmbH stellte dem Marktgemeinderat den Abschlussbericht des Projektes „von der Sandgrube zur Artenoase“ vor. Das Projekt wird mit sofortiger Wirkung von der Natur Perspektiven GmbH an die Untere Naturschutzbehörde übergeben
  • Rein formell hat der Marktgemeinderat die bestehende Stellplatzsatzung angepasst bzw. neu erlassen.
  • Die Verwaltung wird beauftragt, Angebote für ein Sturzflutkonzept einzuholen bzw. das Förderverfahren in die Wege zu leiten.
  • Derzeit zeigt der gemeindliche Haushalt keine negativen Ausreißer. Die Gewerbesteuerein–nahmen entwickeln sich gegenüber dem Haushaltsansatz positiv. Der Erlass einer Nachtragshaushaltssatzung ist derzeit noch nicht nötig.
  • Der Wohnmobilstellplatz an der Schulstraße wird derzeit als Lagerplatz für das Bauvorhaben Schulsportanlagen sowie für die Fertigstellung der Außenanlagen der Schule genutzt. Als Ausweichfläche wird daher vorübergehend die Fläche vor dem Eisplatz in Hohenwart ausgewiesen. Die Abwasserentsorgung wird dennoch auf dem eigentlichen Platz in der Schulstraße zur Verfügung gestellt.
  • Die Marktgemeinde hat eine Anfrage zur Errichtung eines Geh- und Radweges von Freinhausen nach Pörnbach gestellt. Nach Auskunft des Landratsamtes ist das Vorhaben als nicht realisierbar einzustufen (Erheblicher baulicher Aufwand, Einschränkungen durch Naturschutz, bestehende Alternative)
  • Die Planung zum neuen Klärwärtergebäude im Zuge der Sanierung der Kläranlage wurde - wie von Seiten des Marktgemeinderates gewünscht - angepasst. Somit konnten rund 60m² im Raumkonzept eingespart werden.