Titel Logo
MB der Verwaltungsgemeinschaft Hollfeld
Ausgabe 12/2024
Aufseß AB
Zurück zur vorigen Seite
Zurück zur ersten Seite der aktuellen Ausgabe

Aufseß Amtlich

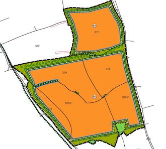
Der Gemeinderat der Gemeinde Aufseß hat mit Beschluss vom 18.07.2023 den Bebauungsplan mit Grünordnungsplan „Photovoltaikanlage Neuhaus“ zur Darstellung einer Sonderbaufläche mit Zweckbestimmung Photovoltaik gemäß § 10 Abs. 1 Baugesetzbuch (BauGB) als Satzung beschlossen.

Der Geltungsbereich kann aus dem nachfolgenden Lageplan entnommen werden:

Der Satzungsbeschluss wird hiermit gemäß § 10 Abs. 3 des Baugesetzbuchs (BauGB) ortsüblich bekannt gemacht. Mit dieser Bekanntmachung tritt der Bebauungsplan in Kraft. Jedermann kann den Bebauungsplan mit der Begründung sowie die zusammenfassende Erklärung über die Art und Weise, wie die Umweltbelange und die Ergebnisse der Öffentlichkeits- und Behördenbeteiligung in dem Bebauungsplan berücksichtigt wurden, und aus welchen Gründen der Plan nach Abwägung mit den geprüften, in Betracht kommenden anderweitigen Planungsmöglichkeiten gewählt wurde, im Rathaus der Verwaltungsgemeinschaft Hollfeld, Marienplatz 18, 96142 Hollfeld während der Dienststunden (Montag 8.00 bis 15.00 Uhr, Dienstag und Freitag jeweils von 8.00 bis 12.00 Uhr und Donnerstag von 8.00 bis 12.00 Uhr sowie 14.00 bis 18.00 Uhr) einsehen und über deren Inhalt Auskunft verlangen.

Außerdem sind die Unterlagen auf der Homepage der Gemeinde Aufseß unter

https://www.aufsess.de/bauleitplanungen-bestand/

einsehbar.

Der Bebauungsplan tritt mit dieser Bekanntmachung in Kraft.

Auf die Voraussetzungen für die Geltendmachung der Verletzung von Verfahrens- und Formvorschriften und von Mängeln der Abwägung sowie der Rechtsfolgen des § 215 Abs. 1 BauGB wird verwiesen.

Unbeachtlich werden demnach:

1.

eine nach § 214 Abs. 1 Satz 1 Nummer 1 bis 3 BauGB beachtliche Verletzung der dort bezeichneten Verfahrens- und Formvorschriften und

2.

eine unter Berücksichtigung des § 214 Abs. 2 BauGB beachtliche Verletzung der Vorschriften über das Verhältnis des Bebauungsplans und des Flächennutzungsplans und

3.

nach § 214 Abs. 3 Satz 2 BauGB beachtliche Mängel des Abwägungsvorgangs, wenn sie nicht innerhalb eines Jahres seit Bekanntmachung des Flächennutzungsplans schriftlich gegenüber der Stadt geltend gemacht worden sind; der Sachverhalt, der die Verletzung oder den Mangel begründen soll, ist darzulegen.

Außerdem wird auf die Vorschriften des § 44 Abs. 3 Satz 1 und 2 sowie Abs. 4 BauGB hingewiesen. Danach erlöschen Entschädigungsansprüche für nach den §§ 39 bis 42 BauGB eingetretene Vermögensnachteile, wenn nicht innerhalb von drei Jahren nach Ablauf des Kalenderjahres, in dem die Vermögensnachteile eingetreten sind, die Fälligkeit des Anspruches herbeigeführt wird.

Gemeinde Aufseß
gez.
Alexander Schrüfer
1. Bürgermeister