Titel Logo
MB der Verwaltungsgemeinschaft Hollfeld
Ausgabe 7/2023
Aufseß AB
Zurück zur vorigen Seite
Zurück zur ersten Seite der aktuellen Ausgabe

Amtliche Bekanntmachung

Abb. Geltungsbereich des Vorhabens (Ausschnitt FNP-Änderung ohne Maßstab)

Abb. Geltungsbereich des Vorhabens (Ausschnitt BP ohne Maßstab)

Abb. externe Ausgleichsfläche (ohne Maßstab)

Bekanntmachung der Öffentlichen Auslegung gemäß § 3 Abs. 2 BauGB für

-

4. Änderung der Neufassung des Flächennutzungsplans im Bereich „Photovoltaikanlage Neuhaus“

-

Bebauungsplan mit Grünordnungsplan „Photovoltaikanlage Neuhaus“

Der Gemeinderat der Gemeinde Aufseß hat am 14.12.2021 die Aufstellung des Bebauungsplanes „Photovoltaikanlage Neuhaus“ und die 4. Änderung des Flächennutzungsplanes in diesem Bereich beschlossen. Die Beschlüsse wurden gemäß § 2 Abs. 1 BauGB mitgeteilt.

Beide Verfahren werden gem. 8 Abs. 3 BauGB im Parallelverfahren durchgeführt.

Die Vorentwürfe des Bebauungsplanes mit Grünordnungsplan „Photovoltaikanlage Neuhaus“ sowie die 4. Änderung des Flächennutzungsplans wurden in der Fassung vom 06.12.021 in der Sitzung vom 14.12.2021 gebilligt. Die Unterlagen lagen vom 17.01.2022 bis 18.02.2022 gemäß § 3 Abs. 1 BauGB öffentlich aus. Parallel wurden die Behörden und sonstigen Träger öffentlicher gemäß § 4 Abs. 1 BauGB vom 17.01.2022 bis 18.02.2022 beteiligt.

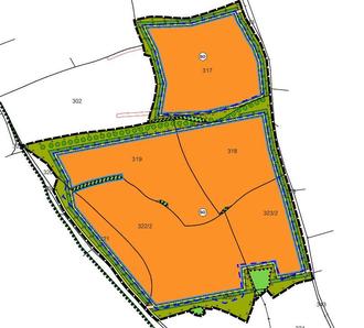
Der Geltungsbereich liegt südlich des OT Neuhaus und umfasst eine Gesamtflächengröße von 12,0 ha. Im Geltungsbereich liegen die Flurnummern 317, 318, 319, 321, 322/2 und 323/2 der Gemarkung Neuhaus (Landkreis Bayreuth).

Im o. g. Geltungsbereich soll ein Sondergebiet ausgewiesen werden. Die Lage und Abgrenzung ist aus dem nachfolgenden Kartenausschnitt ersichtlich (maßstabslos).

Der Geltungsbereich des Bebauungsplans mit Grünordnungsplan enthält interne Ausgleichsflächen.

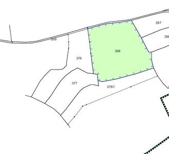
Ferner sind für den Artenschutz auch externe Ausgleichsflächen erforderlich, die westlich des o.g. Vorhabens liegen (Fl.Nr. 398 Gmk. Neuhaus).

Ziel der Planung ist die Ausweisung eines Sondergebietes für eine Freiflächen-Photovoltaikanlage innerhalb eines nach dem Erneuerbaren-Energien-Gesetzes „landwirtschaftlich benachteiligten Gebietes“, um dem Bedarf an erneuerbaren Energien zu entsprechen. Im bestehenden Flächennutzungsplan ist die Fläche als landwirtschaftliche Nutzfläche dargestellt.

Es erfolgt für die Entwürfe zur 4. Änderung des Flächennutzungsplans, sowie für den Bebauungsplan mit Grünordnungsplan „Photovoltaikanlage Neuhaus“ jeweils in den Fassungen vom 14.03.2023 bestehend aus Planblatt und Begründung und weiteren Anlagen, die vom Gemeinderat in seiner Sitzung vom 14.03.2023 gebilligt und zur Auslegung bestimmt wurden, die öffentliche Auslegung § 3 Abs. 2 BauGB i. V.m. §3 Planungsicherstellungsgesetz (Plan-SiG):

von Dienstag, 11.04.2023 bis einschließlich Freitag 12.05.2023

Die Unterlagen können auch auf der Internetseite der Gemeinde unter https://www.aufsess.de/laufende-bauleitplanverfahren/ ab dem 27.03.2023 eingesehen werden.

Zusätzlich liegen die Unterlagen in der Verwaltungsgemeinschaft Hollfeld, Marienplatz 18, 96142 Hollfeld während der allgemeinen Dienststunden

Montag

- Dienstag:

08.00 - 15.00 Uhr

Mittwoch:

08.00 - 12.00 Uhr

Donnerstag:

08.00 - 12.00 Uhr und 14.00 - 18:00 Uhr

Freitag:

08.00 - 12.00 Uhr

öffentlich aus.

Während der Auslegungsfrist können Stellungnahmen (schriftlich oder zur Niederschrift) vorgebracht werden. Es wird darauf hingewiesen, dass nicht fristgerecht abgegebene Stellungnahmen bei der Beschlussfassung über den Bebauungsplan mit Grünordnungsplan „Photovoltaikanlage Neuhaus“ sowie über die 4. Änderung des Flächennutzungsplans in diesem Bereich unberücksichtigt bleiben können, sofern die Gemeinde Aufsess deren lnhalt nicht kannte und nicht hätte kennen müssen und deren lnhalt für die Rechtmäßigkeit der Flächennutzungsplanänderung und die Aufstellung Bebauungsplans nicht von Bedeutung ist (§ 4a Abs. 6 BauGB).

Zeitgleich werden nach § 4 Abs. 2 BauGB die Behörden und sonstigen Träger öffentlicher Belange, deren Aufgabenbereich durch die Planung berührt werden kann, über die öffentliche Auslegung unterrichtet und zur Äußerung bzw. Abgabe einer Stellungnahme aufgefordert.

Folgende umweltrelevanten Informationen sind verfügbar:

Berichte und Gutachten

-

Umweltbericht zur 4. Änderung des Flächennutzungsplans im Bereich „Photovoltaikanlage Neuhaus“ in der Fassung vom 14.03.2023, Kapitel B der Begründung (Schutzgüter Mensch, Tiere und Pflanzen, Boden, Wasser, Klima und Luft, Landschaft/ Landschaftsbild, Kultur- und Sachgüter, Fläche sowie weitere umweltbezogenen Belange)

-

Umweltbericht zum Bebauungsplan mit Grünordnungsplan „Photovoltaikanlage Neuhaus“ in der Fassung vom 14.03.2023, Kapitel B der Begründung (Schutzgüter Mensch, Tiere und Pflanzen, Boden, Wasser, Klima und Luft, Landschaft/ Landschaftsbild, Kultur- und Sachgüter, Fläche sowie weitere umweltbezogenen Belange)

-

Unterlagen zur speziellen artenschutzrechtlichen Prüfung (saP) für PV Anlage Aufsess Neuhaus, Landkreis Bayreuth, Büro für ökologische Studien, Schlumprecht Bayreuth

Umweltbelange aus Stellungnahmen gemäß § 3 Abs. 1 und § 4 Abs. 1 BauGB

-

Schutzgut Mensch:

Keine Blendwirkung

-

Schutzgut Boden:

Boden für Landwirtschaft, günstige Produktionsbedingungen, Erhalt Bodenfunktionen

-

Schutzgut Wasser:

Umgang mit Niederschlagswasser

-

Schutzgut Pflanzen, Tiere:

Besonderes Artenschutzrecht Ausgleichsflächen und Kompensation

-

Schutzgut Landschaft:

Maßnahmen zur Eingrünung der Anlagenflächen, Lage im landschaftlichen Vorbehaltsgebiet

-

Schutzgut Fläche:

Flächenverbrauch

-

Sonstige bzw. allgemeine umweltbezogenen Belange:

Standorteignung, Alternativenprüfung; Nutzung und Förderung erneuerbarer Energien, Flächenverbrauch/Verlust von landwirtschaftlicher Fläche für landwirtschaftliche Betriebe, Rückbauverpflichtung, Nutzung landwirtschaftliche Wege, Zufahrten

Datenschutz:

Die Verarbeitung personenbezogener Daten erfolgt auf der Grundlage der Art. 6 Abs. 1 Buchst. e DSGVO i.V. mit § 3 BauGB und dem BayDSG. Sofern Sie Ihre Stellungnahme ohne Absenderangaben abgeben, erhalten Sie keine Mitteilung über das Ergebnis der Prüfung. Weitere Informationen entnehmen Sie bitte dem Formblatt „Datenschutzrechtliche Informations-pflicht im Bauleitplanverfahren“ das ebenfalls öffentlich ausliegt.

Nur Flächennutzungsplan:

Hinweis bzgl. des Verbandsklagerechts von Umweltverbänden:

Eine Vereinigung im Sinne des § 4 Abs. 3 S.1 Nr. 2 UmwRG (Umwelt-Rechtsbehelfsgesetzes) ist in einem Rechtsbehelfsverfahren nach § 7 Abs. 2 UmwRG gemäß § 7 Abs. 3 S. 1 UmwRG mit allen Einwendungen ausgeschlossen, die sie im Rahmen der Auslegungsfrist nicht oder nicht rechtzeitig geltend gemacht hat, aber hätte geltend machen können (§ 3 Abs. 3 BauGB).

Aufsess, 30.03.2023
Alexander Schrüfer
Erster Bürgermeister