Titel Logo
Iphöfer Nachrichten
Ausgabe 1/2024
Amtliche Bekanntmachungen
Zurück zur vorigen Seite
Zurück zur ersten Seite der aktuellen Ausgabe

Verordnung der Regierung von Oberfranken - Bergamt Nordbayern -

über das Betreten und Befahren von Grundstücken am Adelsberg, ehemalige Gipsgrube "Am Adelsberg", Gemarkung Hellmitzheim, Stadt Iphofen, Landkreis Kitzingen

Auf Grund des Art. 26 Abs. 1 Satz 1 i.V.m. Art. 55 Abs. 1 des Gesetzes über das Landesstrafrecht und das Verordnungsrecht auf dem Gebiet der öffentlichen Sicherheit und Ordnung (Landesstraf- und Verordnungsgesetz- LStVG) i.d.F. der Bekanntmachung vom 13. Dezember 1982 (BayRS 2011-2-I), zuletzt geändert durch § 5 des Gesetzes vom 23. Dezember 2022 (GVBI. S. 718), und § 2 Abs. 3 Satz 1 der Verordnung über Organisation und Zuständigkeiten der Bergbehörden (Bergbehörden-Verordnung - BergbehördV) vom 9. November 2013 (GVBI. S. 651, BayRS 750-1-W), zuletzt geändert durch § 1 Abs. 320 der Verordnung vom 26. März 2019 (GVBI. S. 98), erlässt die Regierung von Oberfranken – Bergamt Nordbayern - folgende Verordnung:

§ 1 Verbote

(1) Zur Verhütung von Gefahren für Leben und Gesundheit von Menschen, die von der ehemaligen untertägigen Gipsabbaugrube am Adelsberg ausgehen, ist das Betreten und Befahren der in § 2 näher bezeichneten Grundstücke bzw. Grundstücksabschnitte für die Öffentlichkeit verboten.

(2) Das Gebiet wird durch entsprechende Hinweisschilder gekennzeichnet, die auf das Verbot des Betretens und Befahrens hinweisen.

§ 2 Verbotsbereich

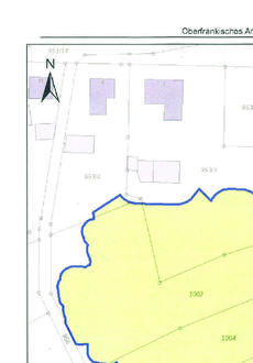
(1) Der Verbotsbereich umfasst die Grundstücke bzw. Grundstücksabschnitte mit den Flurnummern 953, 953/1, 953/3, 953/4, 991, 1002, 1003, 1004, 1005, 1005/2, 1007, 1008, 1012, jeweils Gemarkung Hellmitzheim.

(2) Hinsichtlich der Grenzen des Verbotsbereichs wird auf den Übersichtslageplan, Maßstab 1 : 1.000, des betreffenden Gebiets in der Anlage zu dieser Verordnung Bezug genommen. Der Übersichtslageplan ist Bestandteil dieser Verordnung. In diesem sind die Grenzen des Verbotsbereichs blau gekennzeichnet. Maßgeblich ist die Außenkante der Begrenzungslinie.

§ 3 Ausnahmen

(1) Das Betretungs- und Befahrungsverbot nach§ 1 gilt nicht für

a.

das Betreten und Befahren zum Zweck der Bewirtschaftung von Streuobstbestand oder zur Pflege der Grundstücke durch den Grundstückseigentümer oder sonstige Berechtigte,

b.

das Betreten und Befahren zur Durchführung von Forschungs- oder Untersuchungsarbeiten, die im Auftrag oder mit Zustimmung des Bergamtes Nordbayern erfolgen oder

c.

das Betreten und Befahren zum Zwecke von Maßnahmen zum Schutz der Bevölkerung oder zur Abwehr von Gefahren für Leben und Gesundheit von Menschen.

(2) Die Regierung von Oberfranken - Bergamt Nordbayern - kann auf Antrag neben § 3 Abs. 1 weitere Ausnahmen von dem Verbot des § 1 Abs. 1 zulassen. Der Antrag ist spätestens 10 Tage vor dem beabsichtigten Betreten oder Befahren bei der Regierung von Oberfranken - Bergamt Nordbayern -, Postfach 11 01 65, 95420 Bayreuth - in Textform, per Telefax an 0921/604-41258 oder per E-Mail an bergamt@reg-ofr.bayern.de einzureichen und zu begründen. Die Erlaubnis kann unter Bedingungen und Auflagen erteilt werden.

§ 4 Zuwiderhandlungen

Gemäß Art. 26 Abs. 3 Nr. 1 LStVG i.V.m. § 17 Abs. 1 des Gesetzes über

Ordnungswidrigkeiten (OWiG) in der Fassung der Bekanntmachung vom 19. Februar 1987 (BGBI. I S. 602), das zuletzt durch Artikel 5 des Gesetzes vom 14. März 2023 (BGBI. 2023 I Nr. 73) geändert worden ist, kann mit einer Geldbuße von 5 EUR bis 1000 EUR pro Verstoß belegt werden, wer entgegen dem Verbot in § 1 vorsätzlich oder fahrlässig ein im Verbotsbereich nach § 2 liegendes Grundstück betritt oder befährt.

§ 5 Inkrafttreten

Diese Verordnung tritt am Tage nach ihrer Bekanntmachung in Kraft.

Bayreuth, den 12.12.2023
Regierung von Oberfranken - Bergamt Nordbayern -

Thomas Engel

Regierungsvizepräsident