Titel Logo
Iphöfer Nachrichten
Ausgabe 1/2025
Amtliche Bekanntmachungen
Zurück zur vorigen Seite
Zurück zur ersten Seite der aktuellen Ausgabe

Wirtschaft, Landesentwicklung und Verkehr

Nr. ROF - SG26 - 3851.2 - 1 - 11

Verordnung der Regierung von Oberfranken - Bergamt Nordbayern - über das Betreten und Befahren von Grundstücken am Adelsberg, ehemalige Gipsgrube "Am Adelsberg",

Gemarkung Hellmitzheim, Stadt Iphofen, Landkreis Kitzingen

Aufgrund des Art. 26 Abs. 1 Satz 1 i.V.m. Art. 55 Abs. 1 des Gesetzes über das Landesstrafrecht und das Verordnungsrecht auf dem Gebiet der öffentli­ chen Sicherheit und Ordnung (Landesstraf- und Ver­ ordnungsgesetz - LStVG) i.d.F. der Bekanntmachung vom 13. Dezember 1982 (BayRS 2011-2-1), zuletzt ge­ ändert durch § 5 des Gesetzes vom 23. Dezember 2022 (GVBI. S. 718), und § 2 Abs. 3 Satz 1 der Verord­ nung über Organisation und Zuständigkeiten der Bergbehörden (Bergbehörden-Verordnung - Bergbe­ hördV) vom 9. November 2013 (GVBI. S. 651, BayRS 750-1-W), zuletzt geändert durch § 1 Abs. 320 der Verordnung vom 26. März 2019 (GVBI. S. 98), erlässt die Regierung von Oberfranken - Bergamt Nordbay­ ern - folgende Verordnung:

§ 1 Verbote

(1) Zur Verhütung von Gefahren für Leben und Ge­ sundheit von Menschen, die von der ehemaligen un­ tertägigen Gipsabbaugrube am Adelsberg ausgehen, ist das Betreten und Befahren der in § 2 näher be­ zeichneten Grundstücke bzw. Grundstücksabschnitte für die Öffentlichkeit verboten.

(2) Das Gebiet wird durch entsprechende Hinweis­ schilder gekennzeichnet, die auf das Verbot des Be­ tretens und Befahrens hinweisen.

§ 2 Verbotsbereich

(1) Der Verbotsbereich umfasst die Grundstücke bzw. Grundstücksabschnitte mit den Flurnummern 953, 953/1, 953/3, 953/4, 991, 1002, 1003, 1004, 1005, 1005/2, 1007, 1008, 1012, jeweils Gemarkung Hell­ mitzheim.

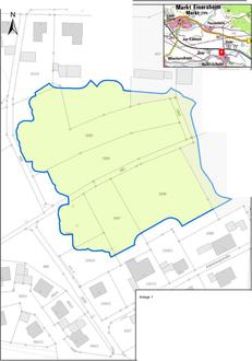
(2) Hinsichtlich der Grenzen des Verbotsbereichs wird auf den Übersichtslageplan, Maßstab 1 : 1.000, des betreffenden Gebiets in der Anlage zu dieser Verord­ nung Bezug genommen. Der Übersichtslageplan ist Bestandteil dieser Verordnung. In diesem sind die Grenzen des Verbotsbereichs blau gekennzeichnet. Maßgeblich ist die Außenkante der Begrenzungslinie.

§ 3 Ausnahmen

(1) Das Betretungs- und Befahrungsverbot nach § 1 gilt nicht für

a.

das Betreten und Befahren zum Zweck der Be­ wirtschaftung von Streuobstbestand oder zur Pflege der Grundstücke durch den Grundstücksei­ gentümer oder sonstige Berechtigte,

b.

das Betreten und Befahren zur Durchführung von Forschungs- oder Untersuchungsarbeiten, die im Auftrag oder mit Zustimmung des Bergamtes Nordbayern erfolgen oder

c.

das Betreten und Befahren zum Zwecke von Maß­ nahmen zum Schutz der Bevölkerung oder zur Ab­ wehr von Gefahren für Leben und Gesundheit von Menschen.

(2) Die Regierung von Oberfranken - Bergamt Nord­ bayern - kann auf Antrag neben § 3 Abs. 1 weitere Ausnahmen von dem Verbot des § 1 Abs. 1 zulassen. Der Antrag ist spätestens zehn Tage vor dem beab­ sichtigten Betreten oder Befahren bei der Regierung von Oberfranken - Bergamt Nordbayern-, Post­ fach 11 01 65, 95420 Bayreuth, - in Textform, per Te­ lefax an 0921/604-41258 oder per E-Mail an berq­ amt@req-ofr.bayern.de einzureichen und zu begrün­ den. Die Erlaubnis kann unter Bedingungen und Auf­ lagen erteilt werden.

§ 4 Zuwiderhandlungen

Gemäß Art. 26 Abs. 3 Nr. 1 LStVG i.V.m. § 17 Abs. 1 des Gesetzes über Ordnungswidrigkeiten (OWiG) in der Fassung der Bekanntmachung vom 19. Februar 1987 (BGBI. 1 S. 602), das zuletzt durch Artikel 5 des

Gesetzes vom 14. März 2023 (BGBI. 2023 1 Nr. 73) geändert worden ist, kann mit einer Geldbuße von 5,00 € bis 1.000,00 € pro Verstoß belegt werden, wer entgegen dem Verbot in § 1 vorsätzlich oder fahrläs­ sig ein im Verbotsbereich nach § 2 liegendes Grund­ stück betritt oder befährt.

§ 5 Inkrafttreten

Diese Verordnung tritt am Tage nach ihrer Bekannt­ machung in Kraft.

Bayreuth, 12. Dezember 2023
Regierung von Oberfranken
- Bergamt Nordbayern -
Thomas Engel
Regierungsvizepräsident