Titel Logo
Itzgrund-Bote
Ausgabe 22/2024
Amtliche Bekanntmachungen
Zurück zur vorigen Seite
Zurück zur ersten Seite der aktuellen Ausgabe

Bekanntmachung der Gemeinde Itzgrund

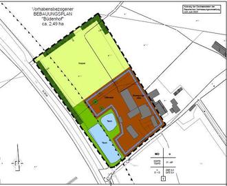
Öffentliche Auslegung des Entwurfes der 6. Flächennutzungsplanänderung Bereich Sondergebiet „Wohnen und Arbeiten mit Tieren“ in Büdenhof und des Entwurfs zum vorhabensbezogenen Bebauungsplan Sondergebiet „Wohnen und Arbeiten mit Tieren“ nach § 3 Abs. 2 Baugesetzbuch (BauGB)

Beteiligung der Öffentlichkeit

vom 04.11.2024 bis einschließlich 06.12.2024

Am 16.10.2024 hat der Gemeinderat Itzgrund beschlossen, den Entwurf der 6. Änderung des Flächennutzungsplans Itzgrund im Bereich des vorhabensbezogenen Bebauungsplans Sondergebiet „Wohnen und Arbeiten mit Tieren“ in Büdenhof und den Entwurf des vorhabensbezogenen Bebauungsplans Sondergebiet „Wohnen und Arbeiten mit Tieren“ zusammen mit seiner Begründung einschließlich Umweltbericht öffentlich auszulegen (§ 3 Abs. 2 BauGB).

Die Abgrenzung des räumlichen Geltungsbereichs sowie die räumliche Lage sind aus dem abgedruckten Lageplan sowie aus dem am Auslegungsort offen liegenden Plänen in der Fassung vom 16.10.2024 zu ersehen.

Der Entwurf der 6. Änderung des Flächennutzungsplans und der Entwurf des vorhabensbezogenen Bebauungsplans Sondergebiet „Wohnen und Arbeiten mit Tieren“ liegen mit den Begründungen einschließlich Umweltbericht in der Zeit vom:

04.11.2024 bis einschließlich 06.12.2024

bei der Gemeinde Itzgrund, Rathausstraße 4, 96274 Itzgrund, Erdgeschoss, Bürgerbüro, während der allgemeinen Öffnungszeiten (Montag 8.00 Uhr bis 15.00 Uhr, Dienstag, Mittwoch, Freitag 8.00 Uhr bis 12.00 Uhr, Donnerstag 8.00 Uhr bis 12.00 Uhr und 14.00 bis 18.00 Uhr) öffentlich aus.

Der Inhalt dieser Bekanntmachung und die nach § 3 Abs. 2 S.1 BauGB auszulegenden Unterlagen sind auch im Internet unter

http://www.itzgrund.de/aktuelles/aktuelle-bauleitplanung.html

eingestellt.

Während dieser Frist können Stellungnahmen schriftlich oder zur Niederschrift abgegeben werden. Nicht ristgerecht abgegebene Stellungnahmen können gem. § 4a Abs. 6 BauGB bei der Beschlussfassung unberücksichtigt bleiben. Nicht fristgerecht abgegebene Stellungnahmen können bei der Beschlussfassung über die 6. Änderung des Flächennutzungsplans / über den vorhabensbezogenen Bebauungsplan Sondergebiet „Wohnen und Arbeiten mit Tieren“ unberücksichtigt bleiben, wenn die Gemeinde Itzgrund den Inhalt nicht kannte und nicht hätte kennen müssen und deren Inhalt für die Rechtmäßigkeit der Flächennutzungsplanänderung / des vorhabensbezogenen Bebauungsplans Sondergebiet „Wohnen und Arbeiten mit Tieren“ nicht von Bedeutung ist.

Folgende umweltrelevanten Informationen sind verfügbar:

Schreiben des Landratsamtes Coburg, Fachbereich Wasserrecht vom 10.11.2023

-

Wasserversorgung und Abwasserbeseitigung

Stellungnahme des Landratsamtes Coburg, Fachbereich Immissionsschutz vom 10.11.2023

-

Hinweise zu Immissionen

Stellungnahme des Landratsamtes Coburg, Untere Bodenschutzbehörde vom 10.11.20223

-

Hinweise zum Bodenschutz

Anlage zum Billigungs- und Auslegungsbeschluss des Gemeinderates vom 16.10.2024, einschließlich beschlussmäßiger Prüfung und Würdigung (frühzeitige Beteiligung gemäß §§ 3 Abs. 1 und 4 Abs. 1 BauGB)

-

Abschnitt Würdigung und Abwägung zu den Anregungen des Landratsamtes Coburg, Untere Bodenschutzbehörde vom 10.11.2023

Die diesen Informationen zugrunde liegenden Unterlagen liegen ebenfalls aus.

Datenschutz:

Die Verarbeitung personenbezogener Daten erfolgt auf der Grundlage der Art. 6 Abs. 1 Buchstabe e (DSGVO) i.V. mit § 3 BauGB und dem BayDSG. Sofern Sie Ihre Stellungnahme ohne Absenderangaben abgeben, erhalten Sie keine Mitteilung über das Ergebnis der Prüfung. Weitere Informationen entnehmen Sie bitte dem Formblatt „Datenschutzrechtliche Informationspflichten im Bauleitverfahren“ das ebenfalls öffentlich ausliegt.

Hinweis zur 6. Änderung des Flächennutzungsplans bzgl. des Verbansklagerechts von Umweltverbänden:

Eine Vereinigung im Sinne des § 4 Abs. 3 S. 1 Nr. 2 Umwelt-Rechtsbehelfsgesetzes (UmwRG) ist in einem Rechtsbehelfsverfahren nach §7 abs. 2 UmwRG gemäß §7 Abs. 3 S. 1 UmwRG mit allen Einwendungen ausgeschlossen, die sie im Rahmen der Auslegungsfrist nicht oder nicht rechtzeitig geltend gemacht hat, aber hätte geltend machen können (§ 3 Abs. 3 BauGB)

Itzgrund, den 25. Oktober 2024
Nina Liebermann
1. Bürgermeisterin

6. Änderung des Flächennutzungsplans der Gemeinde Itzgrund