Titel Logo
Amtliches Mitteilungsblatt der Gemeinde Küps
Ausgabe 8/2023
Amtliche Bekanntmachungen
Zurück zur vorigen Seite
Zurück zur ersten Seite der aktuellen Ausgabe

Bekanntmachung über die Absicht der Einziehung von öffentlichen Straßen

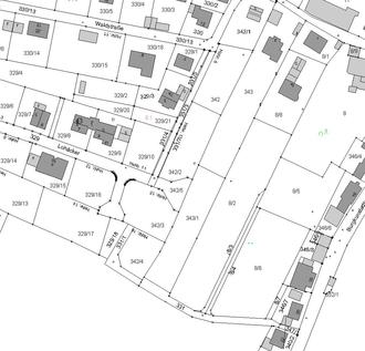
1. Straßenbezeichnung:

Bezeichnung der Straße: Feld- und Waldweg ÖFW 15 „Flur-Nr. 331 - Ortsteil Burkersdorf

Flur-Nummer: Gemarkung Burkersdorf, 331/1, 331/2, 331/3

Alter Anfangspunkt: Waldstraße, Flur-Nr. 330/13

Neuer Anfangspunktpunkt: Flur-Nr. 331 / westliche Grenze zu Flur-Nr. 342/4

Endpunkt: keine Änderung

Verkürzung: 0,160 km

Im Bereich des Markt Küps, Landkreis Kronach

2. Bekanntmachung:

Es wird beabsichtigt die unter 1. bezeichneten Teillänge des bestehenden öffentlichen Feld- und Waldwegs einzuziehen.

3. Träger der Straßenbaulast (Sonderbaulast):

Der Markt Küps sowie die im jeweiligen im Grundbuch eigetragenen Eigentümer der Grundstücke Flur-Nr. 332, 343/1, 8/2, 8/3, 8/4, 8/5, 8/6, 8/7, 342, 342/2, 342/3, 342/4 der Gemarkung Burkersdorf

4. Sonstiges:

Gründe die Absicht der Einziehung: Beschluss des Marktgemeinderates TOP Ö5 vom 21.03.2023.

Die Bekanntmachung nach Nr. 2 kann während der üblichen Besuchszeiten im Rathaus der Marktgemeinde Küps, Am Rathaus 1, 96328 Küps, Zimmer-Nr. 103 in der Zeit vom 21.04.2023 bis 05.05.2023 eingesehen werden.

MARKTKÜPS, den 03.04.2023
gez. B. Rebhan
Erster Bürgermeister