Titel Logo
Bürger Nachrichten Obing Pittenhart Kienberg
Ausgabe 3/2024
Amtliche Bekanntmachungen - Am Anfang
Zurück zur vorigen Seite
Zurück zur ersten Seite der aktuellen Ausgabe

AB Gemeinde Pittenhart

Bekanntmachung der öffentlichen Auslegung des Entwurfs gemäß § 3 Abs. 1 BauGB

Der Gemeinderat hat in der Sitzung vom 17.01.2024 den Entwurf des Bebauungsplans „Wimmäcker“ gebilligt.

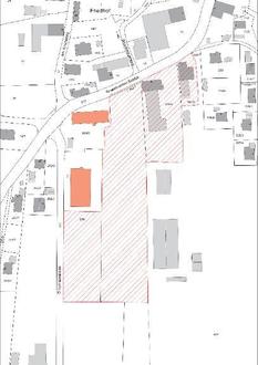
Der Entwurf des Bebauungsplans beinhaltet die Grundstücke Flur Nr. 241/2, Flur Nr. 242/2 und Flur Nr.230/1 vollständig, einen Teil des Grundstücks Flur Nr. 230 und einen Teil des Grundstücks Flur Nr. 231, jeweils Gemarkung Pittenhart und hat die im nachfolgenden Lageplan dargestellte Umgrenzung.

Mit der Planung ist die Planungsgruppe Strasser GmbH aus Traunstein beauftragt.

Der Entwurf der Planänderung vom 17.01.2024 mit Begründung ist in der Zeit vom

29. Januar 2024 bis zum 29. Februar 2024

auf der Homepage der Gemeinde unter www.pittenhart.de/bauleitplanung/ und im zentralen Internetportal des Landes Bayern eingestellt.

Zusätzlich können die Unterlagen im Rathaus in Obing, Bauamt, Kienberger Str. 5, 83119 Obing zu folgenden Öffnungszeiten eingesehen werden:

Dienstag bis Freitag 08.00 Uhr bis 12.00 Uhr

Dienstag 13.00 Uhr bis 18.00 Uhr

Mittwoch 13.00 Uhr bis 16.00 Uhr

Stellungnahmen können während dieser Frist abgegeben werden und sind elektronisch als Mail an bauleitplanung@vg-obing.de zu senden. Sollte dies nicht möglich sein, kann die Stellungnahme auch schriftlich erfolgen.

Nicht während der Auslegungsfrist abgegebene Stellungnahmen können bei der Beschlussfassung über den Änderungsplan unberücksichtigt bleiben.

Datenschutz:

Die Verarbeitung personenbezogener Daten erfolgt auf der Grundlage der Art. 6 Abs. 1 Buchst. e (DSGVO) i.V. mit § 3 BauGB und dem BayDSG. Sofern Sie Ihre Stellungnahme ohne Absenderangaben abgeben, erhalten Sie keine Mitteilung über das Ergebnis der Prüfung. Weitere Informationen entnehmen Sie bitte dem Formblatt „Datenschutzrechtliche Informationspflichten im Bauleitplanverfahren“ das ebenfalls öffentlich ausliegt.

Gemeinde Pittenhart
Obing, 18.01.2024
Reithmeier
1. Bürgermeister