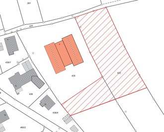
Der Gemeinderat hat in der Sitzung vom 01.07.2025 den Entwurf der 41. Flächennutzungsplanänderung „Kita Oberfeldweg“ vom 12.05.2025 gebilligt. Der Entwurf beinhaltet die Grundstücke Fl.Nr. 435/Teil und 433/Teil der Gemarkung Obing und ist, wie im nachfolgenden Lageplan dargestellt, umgrenzt.
Der vom Gemeinderat gebilligte Entwurf der 41. Flächennutzungsplanänderung mit Begründung, mit Umweltbericht vom 12.05.2025 und die nach Einschätzung der Gemeinde wesentlichen, bereits vorliegenden umweltbezogenen Stellungnahmen sind in der Zeit vom
28. Juli 2025 bis zum 28. August 2025
auf der Homepage der Gemeinde unter www.obing.de/bauleitplanung/ und im zentralen Internetportal des Landes Bayern eingestellt.
Zusätzlich können die Unterlagen im Rathaus in Obing, Bauamt, Kienberger Str. 5, 83119 Obing zu folgenden Öffnungszeiten eingesehen werden:
| Dienstag bis Freitag | 08.00 Uhr bis 12.00 Uhr |
| Dienstag | 13.00 Uhr bis 18.00 Uhr |
| Mittwoch | 13.00 Uhr bis 16.00 Uhr |
Stellungnahmen können während dieser Frist abgegeben werden und sind elektronisch als Mail an bauleitplanung@vg-obing.de zu senden. Sollte dies nicht möglich sein, kann die Stellungnahme auch schriftlich erfolgen.
Nicht fristgerecht abgegebene Stellungnahmen können bei der Beschlussfassung über den Bebauungsplan unberücksichtigt bleiben, wenn die Gemeinde den Inhalt nicht kannte und nicht hätte kennen müssen und deren Inhalt für die Rechtmäßigkeit des Bebauungsplans nicht von Bedeutung ist.
Folgende umweltrelevanten Informationen sind verfügbar:
| Schutzgut | Art der vorhandenen Information |
| Mensch | Prognose und Beurteilung der auf das Misch- und Sondergebiet einwirkenden Verkehrsgeräuschimmissionen der B304 sowie Geräuschimmissionen aus Sportanlagen (Steger & Partner Lärmschutz GmbH, Stand 07.09.2015). |
| Tiere und Pflanzen | Ortsbegehung und Erfassung der Biotop- und Nutzungstypen (Dragomir Stadtplanung, Stand 14.05.2024). Relevanzprüfung zur speziellen artenschutz-rechtlichen Prüfung (Dragomir Stadtplanung, Stand 05.03.2025). |
| Fläche / Boden | Baugrundgutachten (Bernd Gebauer Ingenieur GmbH, Stand 29.06.2016). |
| Wasser | Baugrundgutachten (Bernd Gebauer Ingenieur GmbH, Stand 29.06.2016). Informationen der nächstgelegenen Grundwassermessstelle („S. östlich Obing 868“). |
| Landschaftsbild, Erholung | Ortsbegehung (Dragomir Stadtplanung, Stand 14.05.2024). |
| Luft und Klima | Klimaausblick für den Landkreis Traunstein von Gerics (Stand Juni 2021) |
| Kultur- und Sachgüter | Denkmalliste des Bayerischen Landesamtes für Denkmalpflege (Stand April 2025) |
| Siedlungsstruktur, Anbindegebot, Flächensparen | Ausweisung neuer Siedlungsflächen Einhaltung des Anbindegebots Inanspruchnahme von Grund und Boden Flächensparende Siedlungs- und Erschließungsformen |
| Allgemeine Umweltverträglichkeit | Umweltprüfung insbesondere nach §§1 Abs. 6 Nr. 7, 1a, 2 Abs. 4 und 2a BauGB (Dragomir Stadtplanung, Stand 12.05.2025). Eingriffsermittlung (Dragomir Stadtplanung, Stand 12.05.2025) in Anlehnung an den Leitfaden „Bauen im Einklang mit Natur und Landschaft“ (LfU, Stand 2021). |
Die diesen Informationen zu Grunde liegenden Unterlagen liegen ebenfalls aus oder sind im Internet abrufbar.
Datenschutz:
Die Verarbeitung personenbezogener Daten erfolgt auf der Grundlage der Art. 6 Abs. 1 Buchst. e (DSGVO) i.V. mit § 3 BauGB und dem BayDSG. Sofern Sie Ihre Stellungnahme ohne Absenderangaben abgeben, erhalten Sie keine Mitteilung über das Ergebnis der Prüfung. Weitere Informationen entnehmen Sie bitte dem Formblatt „Datenschutzrechtliche Informationspflichten im Bauleitplanverfahren“ das ebenfalls öffentlich ausliegt.