Titel Logo
Bürger Nachrichten Obing Pittenhart Kienberg
Ausgabe 31/2023
Amtliche Bekanntmachungen - Am Anfang
Zurück zur vorigen Seite
Zurück zur ersten Seite der aktuellen Ausgabe

AB Gemeinde Obing

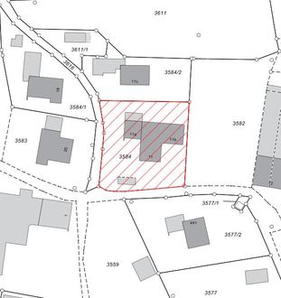
Der Gemeinderat hat in der öffentlichen Sitzung am 25.07.2023 beschlossen, gemäß § 2 Abs. 1 BauGB i.V.m. § 1 Abs. 8 BauGB den Bebauungsplan „Großbergham“ im vereinfachten Verfahren nach § 13 BauGB zu ändern, den Entwurf der Planänderung gebilligt und dessen öffentliche Auslegung nach § 3 Abs. 2 BauGB beschlossen.

Für den Planbereich ist der Planentwurf vom 25.07.2023 maßgebend.

Er ergibt sich aus dem folgenden Kartenausschnitt:

Mit der Änderung des Bebauungsplanes sollen auf dem Grundstück Flur-Nr. 3584 Gemarkung Obing (Großbergham 11, 11a, 11b) die planungsrechtlichen Voraussetzungen zur Aufstockung des südlichen Gebäudeteils und für die Errichtung einer Garage geschaffen werden.

Eine frühzeitige Öffentlichkeitsbeteiligung nach § 3 Abs. 1 findet nicht statt, da sich die Änderung auf das Plangebiet und die Nachbargebiete nur unwesentlich auswirkt (vgl. § 3 Abs. 1 S. 3 Nr. 1 BauGB).

Der Bebauungsplan wird ohne Durchführung einer Umweltprüfung nach § 2 Abs. 4 BauGB geändert.

Der Entwurf der Planänderung des Bebauungsplanes vom 25.07.2023 und die Begründung vom 25.07.2023 liegen in der Zeit vom

14. August 2023 bis 14. September 2023

im Rathaus in Obing, Bauamt, Kienberger Str. 5, 83119 Obing zu den Öffnungszeiten öffentlich aus.

Öffnungszeiten:

Dienstag bis Freitag 08.00 Uhr bis 12.00 Uhr

Dienstag 13.00 Uhr bis 18.00 Uhr

Mittwoch 13.00 Uhr bis 16.00 Uhr

Während der Auslegungsfrist können Stellungnahme schriftlich oder zur Niederschrift abgegeben werden. Da das Ergebnis der Behandlung von Stellungnahmen schriftlich mitgeteilt wird, ist die Angabe der Anschrift des Verfassers zweckmäßig.

Nicht während der Auslegungsfrist abgegebene Stellungnahmen können bei der Beschlussfassung über den Bebauungsplan unberücksichtigt bleiben.

Der Inhalt der ortsüblichen Bekanntmachung und die auszulegenden Unterlagen sind zusätzlich im Internet unter www.obing.de/bauleitplanung/ und im zentralen Internetportal Bayern eingestellt.

Gemeinde Obing
Obing, 26.07.2023
Huber
1. Bürgermeister