Der Gemeinderat hat in der Sitzung vom 08.08.2024 den Entwurf des Bebauungsplans „Oberbrunn-Nord; Erweiterung“ vom 24.07.2024 gebilligt.
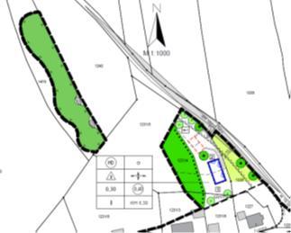
Der Entwurf des Bebauungsplans beinhaltet die Grundstücke Flur-Nr. 1228, 1231/4, 1231/7 und 1476 der Gemarkung Pittenhart und ist, wie im nachfolgenden Lageplan dargestellt, umgrenzt.
Der vom Gemeinderat gebilligte Entwurf des Bebauungsplanes vom 24.07.2024, die Begründung und die nach Einschätzung der Gemeinde wesentlichen, bereits vorliegenden umweltbezogenen Stellungnahmen sind in der Zeit vom
09. September 2024 bis zum 09. Oktober 2024
auf der Homepage der Gemeinde unter www.pittenhart.de/bauleitplanung/ und im zentralen Internetportal des Landes Bayern eingestellt.
Zusätzlich können die Unterlagen im Rathaus in Obing, Bauamt, Kienberger Str. 5, 83119 Obing zu folgenden Öffnungszeiten eingesehen werden:
| Dienstag bis Freitag | 08.00 Uhr bis 12.00 Uhr |
| Dienstag | 13.00 Uhr bis 18.00 Uhr |
| Mittwoch | 13.00 Uhr bis 16.00 Uhr |
Stellungnahmen können während dieser Frist abgegeben werden und sind elektronisch als Mail an bauleitplanung@vg-obing.de zu senden. Sollte dies nicht möglich sein, kann die Stellungnahme auch schriftlich erfolgen.
Nicht fristgerecht abgegebene Stellungnahmen können bei der Beschlussfassung über den Bebauungsplan unberücksichtigt bleiben, wenn die Gemeinde den Inhalt nicht kannte und nicht hätte kennen müssen und deren Inhalt für die Rechtmäßigkeit des Bebauungsplans nicht von Bedeutung ist.
Folgende umweltrelevanten Informationen sind verfügbar:
| Schutzgut | Art der vorhandenen Information |
| Mensch | Verkehrslärm Prognose und Beurteilung einwirkender Verkehrsgeräuschimmissionen, baulicher Schallschutz |
| Tiere und Pflanzen | Umweltbericht und Ermittlung des artenschutzrechtlichen Konfliktpotentials geringe bis mittlere Auswirkungen zu erwarten Artenschutz Keine Vorkommen streng geschützter Arten zu erwarten Untersuchung betroffener Arten (Zauneidechse, Vögel, Fledermäuse) |
| Fläche / Boden | Umweltbericht keine erheblichen Auswirkungen zu erwarten |
| Wasser | Festlegung des Entwässerungssystems Entwässerung der Grundstücke im Trennsystem (Schmutz- / Niederschlagswasser) Niederschlagswasser Versickerungsfähigkeit des Untergrundes Konzept zur Niederschlagswasserbeseitigung Versicherung bzw. Rückhaltung von Niederschlagswasser Grundwasser Umweltbericht kein Oberflächenwasser vorhanden, Grundwasserstand ca. 30 m unter Oberfläche Gelände, Bebauung ist vor ablaufendem Oberflächenwasser zu schützen, keine Beeinträchtigung des Schutzgutes Wasser zu erwarten Wasserversorgung / Abwasserentsorgung Sicherstellung der Wasserversorgung Neubau eines Schmutzwasserkanals |
| Landschaftsbild, Erholung | Umweltbericht keine Beeinträchtigungen der Landschaft zu erwarten |
| Luft und Klima | Umweltbericht sind keine erheblichen Auswirkungen zu erwarten |
| Kultur- und Sachgüter | Umweltbericht Auf das in der Nähe befindliche Bodendenkmal sind keine Auswirkungen zu erwarten |
| Siedlungsstruktur, Anbindegebot, Flächensparen | Ausweisung neuer Siedlungsfläche Anbindegebot gegeben Inanspruchnahme von Grund und Boden Flächensparende Siedlungs- und Erschließungsformen |
| Allgemeine Umweltverträglichkeit | Umweltverträglichkeit Vorprüfung nach dem Gesetz über die Umweltverträglichkeitsprüfung (UVPG) |
Die diesen Informationen zu Grunde liegenden Unterlagen liegen ebenfalls aus.
Datenschutz:
Die Verarbeitung personenbezogener Daten erfolgt auf der Grundlage der Art. 6 Abs. 1 Buchst. e (DSGVO) i.V. mit § 3 BauGB und dem BayDSG. Sofern Sie Ihre Stellungnahme ohne Absenderangaben abgeben, erhalten Sie keine Mitteilung über das Ergebnis der Prüfung. Weitere Informationen entnehmen Sie bitte dem Formblatt „Datenschutzrechtliche Informationspflichten im Bauleitplanverfahren“ das ebenfalls öffentlich ausliegt.