„Freiflächenphotovoltaikanlage Kirchreitberg“
Der Gemeinderat hat in seiner Sitzung vom 13.09.2022 den Bebauungsplanentwurf vom 13.09.2022 und die Begründung mit Umweltbericht vom 13.09.2022 gebilligt und beschlossen, diesen Entwurf und die Begründung mit den beschlossenen Ergänzungen nach § 3 Abs. 1 BauGB öffentlich auszulegen.
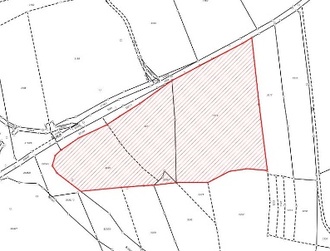
Die Bebauungsplanfläche ist wie folgt umgrenzt:
Im Norden: Ausschließlich der Grundstücke Flur-Nr. 3225/4, 3221/1 und 3058
(Gemeindeverbindungsstraße Kirchreitbergstraße)
Im Osten: Ausschließlich des Grundstücks Flur-Nr. 3217
Im Süden: Ausschließlich dem südlichen Teil des Grundstücks Flur-Nr. 3225 (Grundstücksdreieck) und ausschließlich der Grundstücke Flur-Nr. 3229, 3230, 3231 und 3232
Im Westen: Ausschließlich der Grundstücke Flur-Nr. 3225/3 (Straßengrundstück B 304 neu)
Der Bebauungsplan beinhaltet die Grundstücke Flur-Nr. 3219, 3221, 3225/nördlicher Teil und 3230/1 der Gemarkung Obing. Siehe nachfolgenden Kartenausschnitt:
Der vom Gemeinderat gebilligte und zur Auslegung bestimmte Entwurf des Bebauungsplanes vom 13.09.2022, sowie die Begründung mit Umweltbericht vom 13.09.2022 und die nach Einschätzung der Gemeinde wesentlichen, bereits vorliegenden umweltbezogenen Stellungnahmen liegen in der Zeit vom
31. Oktober 2022 bis 30. November 2022
im Rathaus in Obing, Bauamt, Kienberger Str. 5, 83119 Obing zu den Öffnungszeiten öffentlich aus.
| Öffnungszeiten: | |
| Dienstag bis Freitag | 08.00 Uhr bis 12.00 Uhr |
| Dienstag | 13.00 Uhr bis 18.00 Uhr |
| Mittwoch | 13.00 Uhr bis 16.00 Uhr |
Es sind folgende Arten umweltbezogener Informationen verfügbar:
| Schutzgut | Art der vorhandenen Information |
| Mensch | Begründung mit Umweltbericht |
| Tiere und Pflanzen | Begründung mit Umweltbericht, Bestandserfassung Feldvögel |
| Boden | Begründung mit Umweltbericht |
| Luft und Klima | Begründung mit Umweltbericht |
| Landschaft und Landschaftsbild | Begründung mit Umweltbericht |
| Kultur- und Sachgüter | Begründung mit Umweltbericht |
| Grundwasser und Oberflächengewässer | Begründung mit Umweltbericht |
| Landschafts- und sonstige Pläne | Landschaftsplan Gemeinde Obing |
| Wechselwirkungen | Laut Umweltbericht sind keine Wechselwirkungen erkennbar |
Während der Auslegungsfrist können im Rathaus Stellungnahmen schriftlich oder zur Niederschrift abgegeben werden. Da das Ergebnis der Behandlung der Stellungnahmen mitgeteilt wird, ist die Angabe der Anschrift des Verfassers zweckmäßig.
Nicht während der Auslegungsfrist abgegebene Stellungnahmen können bei der Beschlussfassung über den Bebauungsplan unberücksichtigt bleiben.
Der Inhalt der ortsübliche Bekanntmachung und die auszulegenden Unterlagen sind zusätzlich im Internet unter www.obing.de/bauleitplanung/ und im zentralen Internetportal des Landes Bayern eingestellt.