Titel Logo
Niederwerrner Rundschau
Ausgabe 11/2024
Amtliche Bekanntmachungen
Zurück zur vorigen Seite
Zurück zur ersten Seite der aktuellen Ausgabe

Amtliche Bekanntmachungen

Für die 4. Änderung und Erweiterung des Bebauungsplans „Am Lagerhaus“ Gemeinde Niederwerrn, Ortsteil Oberwerrn

In der Sitzung vom 27.03.2024 hat der Gemeinderat Niederwerrn die Entwurfsunterlagen der 4. Änderung und Erweiterung des Bebauungsplans „Am Lagerhaus“ gebilligt.

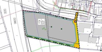
In den Geltungsbereich werden die Flurstücke 1711, 1712, 1712/1, 1716 und 1717/1 und Teilflächen der Flurstücke 1715, 1408 und 1411 der Gemarkung Oberwerrn sowie die Grundstücke Fl.Nr. 309/1 und 396 und Teilflächen der Grundstücke Fl.Nr. 377 und 435 der Gemarkung Niederwerrn einbezogen. Das Gewerbegebiet liegt südwestlich des bestehenden Siedlungsgebiets zwischen der BAB 71, der SW 10 und dem bestehenden Gewerbegebiet. Die Lage ergibt sich aus der Karte.

Mit Beschluss des Gemeinderats Niederwerrn wurde die frühzeitige Auslegung der 4. Änderung und Erweiterung des Bebauungsplans „Am Lagerhaus“ (§ 3 Abs. 1 BauGB) sowie die Beteiligung der Behörden und sonstigen Träger öffentlicher Belange (§ 4 Abs. 1 BauGB) folgender Unterlagen angeordnet:

-

Bebauungsplan mit integrierter Grünordnung

-

Begründung zum Bebauungsplan

-

Begründung zur Grünordnung

-

Umweltbericht

Der Entwurf der 4. Änderung und Erweiterung des Bebauungsplans „Am Lagerhaus“ sowie die zugehörigen Unterlagen liegen in der Zeit vom 27.05.2024 bis 28.06.2024 in der Gemeinde Niederwerrn, Schweinfurter Straße 54, 97464 Niederwerrn, während der allgemeinen Dienststunden und nach Vereinbarung zur Einsichtnahme öffentlich aus.

Der Inhalt der ortsüblichen Bekanntmachung sowie die o.g. Planunterlagen sind während der genannten Frist auch auf der Internetseite der Gemeinde Niederwerrn abrufbar:

https://www.niederwerrn.de/gemeinde/allgemeines/bauleitplanung/index.html

Während der Auslegungsfrist können Stellungnahmen vorgebracht werden; nicht innerhalb der Auslegung abgegebene Stellungnahmen können bei der Beschlussfassung über den Bebauungsplan unberücksichtigt bleiben.

Hinweis zum Datenschutz:

Die Verarbeitung personenbezogener Daten erfolgt auf der Grundlage der Art.6 Abs.1 Buchstabe e (DSGVO) i.V. mit §3 BauGB und dem BayDSG. Sofern Sie Ihre Stellungnahme ohne Absenderangaben abgeben, erhalten Sie keine Mitteilung über das Ergebnis der Prüfung. Weitere Informationen entnehmen Sie bitte dem Formblatt „Datenschutzrechtliche Informationspflichten im Bauleitplanverfahren“, das ebenfalls öffentlich ausliegt.

Niederwerrn, den 24.05.2024
Bettina Bärmann
1. Bürgermeisterin