Titel Logo
Niederwerrner Rundschau
Ausgabe 25/2024
Amtliche Bekanntmachungen
Zurück zur vorigen Seite
Zurück zur ersten Seite der aktuellen Ausgabe

Gemeinde Niederwerrn

Gemeinde Niederwerrn

Neufassung und Erweiterung

Bebauungsplan Gewerbegebiet

„Am Motorpool“

Frühzeitige Beteiligung der Öffentlichkeit gemäß § 3 Abs. 1 BauGB

In der Sitzung vom 12.11.2024 hat der Bau- und Umweltausschuss der Gemeinde Niederwerrn den Vorentwurf in der Fassung vom 12.11.2024 gebilligt und die Durchführung der frühzeitigen Beteiligung der Öffentlichkeit gem. § 3 Abs. 1 BauGB sowie der frühzeitigen Beteiligung der Behörden und sonstigen Träger öffentlicher Belange gem. § 4 Abs. 1 BauGB, beschlossen.

Allgemeine Ziele und Zwecke der Planung

Der Anlass zur Erweiterung des Bebauungsplans „Am Motorpool“ (rechtskräftige Fassung vom 23.05.2024) ist, dass die Gemeinde nördlich des bestehenden Gewerbegebiets weitere Flächen erwerben konnte. Da derzeit keine weiteren Gewerbeflächen für kleine und mittlere Betriebe im Gemeindegebiet zur Verfügung stehen und auch im Gewerbegebiet „Am Motorpool“ alle Flächen vollständig vergeben sind, soll das Planungsgebiet um die neu erworbenen Flächen erweitert werden

Der Anlass zur Neufassung des rechtskräftigen Bebauungsplans ergibt sich daraus, dass die Erschließungsarbeiten des Gewerbegebietes weit fortgeschritten sind und sich die Flächen im Geltungsbereich verändert haben. Insbesondere wurden größere Grünflächen geschaffen als ursprünglich im Bebauungsplan vorgesehen

Zudem ist eine Erweiterung der Erschließungsstraße zu den Erweiterungsflächen im Norden notwendig, wodurch ein Änderungsbedarf des rechtsgültigen Bebauungsplans entsteht.

Aus den genannten Gründen wurde der Entschluss gefasst, den rechtskräftigen Bebauungsplan „Am Motorpool“ neu zu fassen, um die geänderten Flächen darzustellen und um die neuen Flächen zu erweitern. Damit werden alle Flächen in einem Dokument zusammengefasst und planungsrechtlich gesichert.

Die vorliegende Bebauungsplanaufstellung entspricht den Darstellungen des rechtswirksamen Flächennutzungsplans der Gemeinde Niederwerrn. Dementsprechend wird der Bebauungsplan aus dem rechtsgültigen Flächennutzungsplan entwickelt und bedarf keiner Änderung.

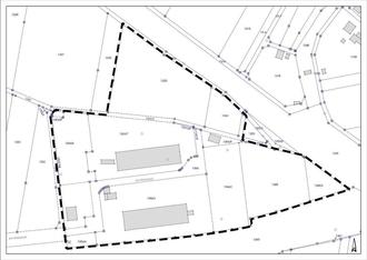
Geltungsbereich

Das Gewerbegebiet „Am Motorpool“ umfasst eine Fläche von 26.847 m² und soll um 7.994 m² erweitert werden. Damit ergibt es eine Gesamtfläche von 34.841 m².

Geltungsbereich des Bebauungsplanes erfasst folgende Grundstücke Fl.-Nrn. 1354, 1354/2, 1354/3, 1354/4, 1354/5, 1354/6, 1354/7, 1354/8, 1354/9, 1354/10, 1359, 1359/3, 1341/3 (Teilfläche), 1341/4, 1341/5 und 1324, und 1325.

Maßgeblich ist im Einzelnen der nachfolgende Kartenausschnitt (maßstablos):

Frühzeitige Beteiligung der Öffentlichkeit gem. § 3 Abs. 1 BauGB

Der Vorentwurf des Bebauungsplans einschließlich der Begründung mit Umweltbericht in der Fassung vom 12.11.2024 sind in der Zeit

vom 06.12.2024 bis einschließlich 17.01.2025 (Veröffentlichungsfrist)

im Internet auf der Homepage der Gemeinde Niederwerrn veröffentlich. Die Unterlagen des Bebauungsplans können hier eingesehen und heruntergeladen werden:

https://www.niederwerrn.de/gemeinde/allgemeines/bauleitplanung/index.html

Zusätzlich liegen die o.g. Unterlagen innerhalb der Veröffentlichungsfrist leicht zugänglich bei der Gemeinde Niederwerrn, Schweinfurter Straße 54, 97464 Niederwerrn, während der allgemeinen Dienststunden zu allgemeiner Einsichtnahme öffentlich aus.

Die Stellungnahmen sollen elektronisch an die E-Mail-Adresse bauamt@niederwerrn.de während der Dauer der Veröffentlichungsfrist übermittelt werden. Weiterhin besteht die Möglichkeit die Stellungnahmen schriftlich bei der Gemeinde Niederwerrn, mündlich zur Niederschrift oder telefonisch unter 09721/4999-69 zur Niederschrift abzugeben.

Gemäß § 4a Abs. 5 BauGB können nicht fristgerecht abgegebene Stellungnahmen bei der Beschlussfassung über den Bebauungsplan unberücksichtigt bleiben, wenn die Gemeinde den Inhalt nicht kannte und nicht hätte kennen müssen und deren Inhalt für die Rechtmäßigkeit des Bebauungsplans nicht von Bedeutung ist.

Umweltbezogene Information:

Im Rahmen des Verfahrens wird eine Umweltprüfung gem. § 2 Abs. 4 BauGB durchgeführt und im Rahmen der Begründung gem. § 2a Nr. 2 BauGB dargelegt.

Folgende Arten umweltbezogener Informationen sind verfügbar.

1.

Umweltbericht (Teil B der Begründung)

-

Beschreibung und Bewertung der erheblichen Umweltauswirkungen gegliedert nachfolgender Schutzgüter: Boden, Wasser, Klima und Luft, Tiere und Pflanzen, Menschen, Landschafts- und Ortsbild, Kultur und sonstigen Sachgüter

-

Beschreibung des Vorhabens und der umweltrelevanter Wirkfaktoren einschl. der Wechselwirkung zwischen Schutzgütern

-

Naturschutzfachliche Eingriffsermittlung bezogen auf die Schutzgüter

-

Beschreibung der der Maßnahmen zur Vermeidung, Minimierung der nachteiligen Umweltauswirkungen

-

Ermittlung des Kompensationsbedarfs

-

Beschreibung der Maßnahmen zum Ausgleich

-

Prüfung anderweitiger Planungsmöglichkeiten

2.

Schalltechnische Stellungnahme „Gewerbe- und Verkehrslärm“, Stand 21.02.2023

Der Beschluss zur öffentlichen Auslegung nach § 3 Abs. 1 BauGB wird hiermit ortsüblich bekannt gemacht.

Datenschutz:

Die Verarbeitung personenbezogener Daten erfolgt auf der Grundlage der Art. 6 Abs. 1 Buchstabe e (DSGVO) i. V. mit § 3 BauGB und dem BayDSG. Sofern Sie Ihre Stellungnahme ohne Absenderangaben abgeben, erhalten Sie keine Mitteilung über das Ergebnis der Prüfung. Weitere Informationen entnehmen Sie bitte dem Formblatt „Datenschutzrechtliche Informationspflichten im Bauleitplanverfahren“ das ebenfalls auf der Homepage unter der o.g. Internet-Adresse veröffentlicht ist.