Titel Logo
Amtliches Mitteilungsblatt der Gemeinde Rödelsee
Ausgabe 10/2024
Amtliche Bekanntmachungen
Zurück zur vorigen Seite
Zurück zur ersten Seite der aktuellen Ausgabe

Amtliche Bekanntmachungen

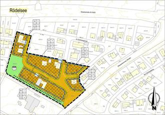
Lageplan ohne Maßstab

Bebauungsplan „Mischgebiet Im Schlossgrund“

-

Billigung des Vorentwurfes zum Bebauungsplan „Mischgebiet Im Schlossgrund“ in der Fassung vom 24.09.2024 mit Begründung, Grünordnungsplan, spezieller artenschutzrechtlichen Prüfung, Umweltbericht und geotechnischem Bericht

-

Beteiligung der Öffentlichkeit gemäß § 3 Abs. 1 BauGB

Der Gemeinderat hat in der Sitzung vom 06.08.2024 den Aufstellungsbeschluss für den Bebauungsplan „Mischgebiet im Schlossgrund“ gemäß § 2 Abs. 1 BauGB gefasst. Dieser wurde im amtlichen Mitteilungsblatt Ausgabe 8/24 bekannt gemacht. Der Vorentwurf zum Bebauungsplan „Mischgebiet Im Schlossgrund“ in der Fassung vom 24.09.2024 wurde in der Sitzung vom 01.10.2024 durch den Gemeinderat gebilligt.

Verfahrensart:

Die Aufstellung des Bebauungsplans „Mischgebiet Im Schlossgrund“ wird im Regelverfahren durchgeführt.

Um den Vorgaben gem. § 8 Abs. 2 BauGB Rechnung zu tragen, erfolgt parallel die 6. Änderung des Flächennutzungsplans der Gemeinde Rödelsee.

Allgemeine Ziele und Zwecke der Planung:

Bei der Gemeinde Rödelsee gingen kontinuierlich Anfragen nach Bauland ein, weshalb sie im Jahr 2017 die Aufstellung des Bebauungsplans „Schlossgrund“ mit der Ausweisung als Dorfgebiet gemäß § 5 BauNVO sowie die in diesem Zuge erforderliche 4. Änderung des Flächennutzungsplans der Gemeinde Rödelsee beschloss.

Die 4. Änderung des Flächennutzungsplans wurde genehmigt und der Bebauungsplan „Schlossgrund“ als Satzung beschlossen. Der Bebauungsplan "Schlossgrund" hat jedoch einer Normenkontrollklage nicht standgehalten. Aus diesem Grund sind die Rahmenbedingungen anzupassen und die Planungsabsicht zu konkretisieren.

In Folge dessen wird nun die 6. Änderung des Flächennutzungsplans der Gemeinde Rödelsee sowie die Neuaufstellung der Bebauungspläne „Mischgebiet Im Schlossgrund“ und „Wohngebiet Im Schlossgrund“ erforderlich.

Die Flächen innerhalb des Geltungsbereichs „Mischgebiet Im Schlossgrund“ sind bereits vollständig erschlossen. 8 von 11 Grundstücken sind bereits bebaut. Mit der vorliegenden Bauleitplanung soll nunmehr die rechtliche Grundlage zur Gewährleistung einer städtebaulich verträglichen Integration geschaffen werden.

Geltungsbereich:

Der Plan umfasst eine Fläche von ca. 1,42 ha und ist als Mischgebiet (MI) nach § 6 BauNVO festgesetzt.

Der Geltungsbereich umfasst folgende Flurnummern der Gemarkung Rödelsee:

Flurstücke 800/1, 800/2, 800/3, 800/4, 800/5, 800/21, 800/22, 800/29, 800/30, 800/31, 800/32, 800/35, 800/37, 800/42, 800/43, 800/44, 800/45, 800/46 und eine Teilfläche der Flurnummer 800.

Zusätzlich werden auf einer Teilfläche der Flurnummer 192 der Gemarkung Fröhstockheim externe Ausgleichsmaßnahmen geschaffen.

Der Geltungsbereich grenzt im Norden an bestehende Bebauung an, die innerhalb des im parallel geführten Bebauungsplan „Wohngebiet Im Schlossgrund“ liegt.

Im Osten grenzt die Wiesenbronner Straße an. Im Anschluss folgt bestehende Bebauung der Gemeinde Rödelsee.

Im Süden grenzt ein bestehender Entwässerungsgraben sowie ein Weinbaubetrieb an.

Im Westen grenzt bestehende Bebauung an.

Der Inhalt dieser Bekanntmachung und die nach § 3 Abs. 1 BauGB auszulegenden Unterlagen des Bebauungsplans „Mischgebiet Im Schlossgrund“ in der Fassung vom 24.09.2024, sind gemäß § 3 Abs. 1 BauGB in der Zeit vom

28.10.2024 – 29.11.2024

über das Internet unter www.roedelsee.de sowie über die Verknüpfung des zentralen Landesportal für die Bauleitplanung Bayern unter https://geoportal.bayern.de/bauleitplanungsportal/ abrufbar.

Der Inhalt dieser Bekanntmachung und die nach § 3 Abs. 1 BauGB auszulegenden Unterlagen können auch in der Verwaltungsgemeinschaft Iphofen, Bauamt, Marktplatz 26, 97346 Iphofen während der Öffnungszeiten, Montag bis Freitag 8:00-12:30 Uhr, sowie Montag, Dienstag und Donnerstag 14:00-16:30 Uhr eingesehen werden.

Während der oben genannten Frist können Bedenken und Anregungen zu dem Vorentwurf des Bebauungsplans elektronisch, alternativ auch schriftlich, oder während der Dienststunden zur Niederschrift abgegeben werden. Nicht fristgerecht abgegebene Stellungnahmen können nach § 3 Abs. 2 Satz 3 BauGB bei der Beschlussfassung über den Bauleitplan unberücksichtigt bleiben, wenn die Gemeinde Rödelsee den Inhalt nicht kannte und nicht hätte kennen müssen und deren Inhalt für die Rechtmäßigkeit des Bebauungsplans nicht von Bedeutung ist.

Folgende umweltrelevanten Informationen liegen ebenfalls aus:

Grünordnungsplan in der Fassung vom 24.09.2024 (Teil D), von Simon Mayer, Dipl.-Ing. Landschaftsarchitekt, Erlabrunn

Spezielle artenschutzrechtliche Prüfung (saP) in der Fassung vom 24.09.2024 (Teil E), von der Ökologischen Arbeitsgemeinschaft Würzburg (ÖAW)

Umweltbericht gemäß § 2 Abs. 4 BauGB in der Fassung vom 24.09.2024 (Teil F), von Simon Mayer, Dipl.-Ing. Landschaftsarchitekt, Erlabrunn

Geotechnischer Bericht in der Fassung vom 06.04.2018 (Teil G), von der pgu ingenieurgesellschaft mbH, Ritschenhausen

Datenschutz:

Die Verarbeitung personenbezogener Daten erfolgt auf der Grundlage der Art. 6 Abs. 1 Buchstabe e (DSGVO) i. V. m. § 3 BauGB und dem BayDSG. Sofern Sie Ihre Stellungnahme ohne Absenderangaben abgeben, erhalten Sie keine Mitteilung über das Ergebnis der Prüfung. Weitere Informationen entnehmen Sie bitte dem Formblatt „Datenschutzrechtliche Informationspflichten im Bauleitplanverfahren“, das ebenfalls öffentlich ausliegt.

Hinweis zur Unterrichtung

Alle nicht öffentlich zugänglichen Regelungen, Vorschriften, Normen o. ä. auf die im Bauleitverfahren verwiesen wird, sind in der für das Bauleitverfahren geltenden Fassung bei der Verwaltungsgemeinschaft Iphofen auf Nachfrage zu den allgemeinen Dienststunden einsehbar.

GEMEINDE RÖDELSEE
Rödelsee, 18.10.2024
Burkhard Klein
1. Bürgermeister