Titel Logo
Mitteilungsblatt der Gemeinde Viereth-Trunstadt
Ausgabe 10/2024
Amtliche Bekanntmachungen
Zurück zur vorigen Seite
Zurück zur ersten Seite der aktuellen Ausgabe

Verkauf von gemeindeeigenen Wohnbaugrundstücken

im Baugebiet „Schloßleite“ im Ort Trunstadt, Gemeinde Viereth-Trunstadt

Im neuen Baugebiet „Schloßleite“ im Ort Trunstadt sind die Erschließungsarbeiten abgeschlossen. Nach der Durchführung von zwei formellen Vergabeverfahren stehen weitere Baugrundstücke zum Verkauf.

Die Gemeinde Viereth-Trunstadt bietet folgende Baugrundstücke zum Verkauf an:

Flur-Nr. 450/15 mit 592 m² zu einem Verkaufspreis von 200,- € / m²

Flur-Nr. 450/16 mit 582 m² zu einem Verkaufspreis von 200,- € / m²

Flur-Nr. 450/18 mit 510 m² zu einem Verkaufspreis von 220,- € / m²

Flur-Nr. 450/26 mit 661 m² zu einem Verkaufspreis von 240,- € / m²

Flur-Nr. 450/28 mit 611 m² zu einem Verkaufspreis von 220,- € / m²

Flur-Nr. 450/34 mit 531 m² zu einem Verkaufspreis von 220,- € / m²

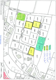
Die jeweiligen Grundstücke befinden sich in einer exponierten Lage im Ort Trunstadt mit einem wunderschönen Blick in das Maintal. Die Lage der Grundstücke kann aus dem nachstehenden Plan ersehen werden. Der Verkauf der Grundstücke erfolgt ohne Anwendung der Vergaberichtlinien der Gemeinde Viereth-Trunstadt, d.h. Kaufinteressenten können sofort die Grundstücke erwerben und der Grundstückskauf kann zeitnah notariell beurkundet werden.

Vorsorglich möchten wir darauf hinweisen, dass für die erworbenen Baugrundstücke ein Bauzwang (5 Jahre) besteht.

Der Bebauungsplan „Schloßleite“, Gemeinde Viereth-Trunstadt, kann auf der Homepage der Gemeinde Viereth-Trunstadt unter www.viereth-trunstadt.de eingesehen werden.

Für Rückfragen wenden Sie sich bitte an Frau Jones unter der Telefonnummer 09503/9222-20 oder per E-Mail an

jones@viereth-trunstadt.de

Gemeinde Viereth-Trunstadt