Titel Logo
Mitteilungsblatt der Gemeinde Viereth-Trunstadt
Ausgabe 9/2024
Aktuelle Vorlauftexte
Zurück zur vorigen Seite
Zurück zur ersten Seite der aktuellen Ausgabe
-

Aktuelles

Bekanntmachung des Änderungsbeschlusses für den Bebauungsplan „Angerlaub“ im Gemeindeteil Trunstadt gemäß § 1 Abs. 8 i.V.m. § 2 Abs. 1 Satz 2 BauGB

3. Änderung des Bebauungsplanes „Angerlaub“ in der Gemeinde Viereth-Trunstadt

Der Gemeinderat der Gemeinde Viereth-Trunstadt hat in der Sitzung vom 22.04.2024 gemäß

§ 2 Abs. 1 BauGB die 3. Änderung des Bebauungsplanes „Angerlaub“ beschlossen.

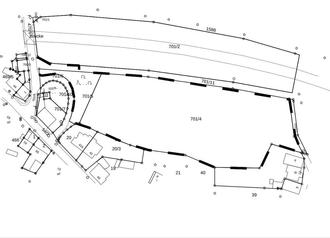
Der Geltungsbereich umfasst die Grundstücke Fl.Nrn. 701/4, 701/5 und eine Teilfläche des Grundstücks Fl.Nr. 701/11 der Gemarkung Trunstadt (siehe Lageplan).

Ziele und Zwecke der Planung:

Mit der Änderung des Bebauungsplans sollen die planungsrechtlichen Voraussetzungen für die Errichtung des Feuerwehrgerätehauses einschließlich der erforderlichen Stellplätze im Gemeindeteil Trunstadt geschaffen werden.

Der Bebauungsplan wird im beschleunigten Verfahren nach § 13a Abs. 3 S. 1 Nr. 1 BauGB ohne Durchführung einer Umweltprüfung nach § 2 Absatz 4 BauGB aufgestellt. Von der frühzeitigen Unterrichtung und Erörterung gemäß § 3 Abs. 1 BauGB und § 4 Abs. 1 BauGB wird abgesehen.

Die Öffentlichkeit kann sich über die allgemeinen Ziele und Zwecke sowie die wesentlichen Auswirkungen der Planung in der Gemeindeverwaltung (Rathaus), Zimmer Nr. 4 (Bauamt im EG), Weiherer Straße 6, 96191 Viereth-Trunstadt in der Zeit vom 13. Mai 2024 bis 14. Juni 2024 unterrichten und sich zur Planung schriftlich oder mündlich äußern.

Viereth-Trunstadt, den 25. April 2024
gez.
Regina Wohlpart
1.Bürgermeisterin