Titel Logo
Weißenbrunner Mitteilungsblatt
Ausgabe 1/2023
Amtliche Bekanntmachungen
Zurück zur vorigen Seite
Zurück zur ersten Seite der aktuellen Ausgabe

Amtliche Bekanntmachungen

Vollzug des Baugesetzbuchs

Amtliche Bekanntmachung des Aufstellungsbeschlusses gemäß § 2 Abs. 1 Baugesetzbuch (BauGB) und über die Durchführung der frühzeitigen Beteiligung gemäß § 3 Abs. 1 BauGB für die Ergänzungssatzung für den Gemeindeteil Grün

Bekanntmachung des Aufstellungsbeschlusses:

Der Gemeinderat Weißenbrunn hat in seiner Sitzung vom 25. Oktober 2022 gemäß § 2 Abs. 1 BauGB die Einleitung eines Verfahrens zum Erlass einer Ergänzungssatzung für den Gemeindeteil Grün beschlossen.

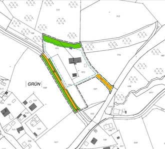
Der Geltungsbereich hat eine Größe von etwa 6.700 m². Das Plangebiet umfasst folgende Grundstücke bzw. Teilflächen (TF) von Grundstücken der Gemarkung Weißenbrunn:

Flurstück-Nr. 1322 (Zufahrt), 1323, 1324, 1325 und 1326 (TF, Straße nach Bieber).

Der Geltungsbereich der Satzung wird im Norden und Osten von Waldflächen, im Süden durch unkultivierte Fläche und Gehölz und im Westen von Gehölz und einem befestigten Weg begrenzt.

Der räumliche Geltungsbereich der zu erlassenden Satzung kann im Ämtergebäude der Gemeinde Weißenbrunn, Bauamt, Bergstraße 21, 96369 Weißenbrunn, während folgender Zeiten:

Montag bis Freitag:

08:00 - 12:00 Uhr

Mittwoch:

14:00 - 18:00 Uhr

eingesehen werden. Eine vorherige Terminvereinbarung ist erforderlich.

Die Beschlüsse werden hiermit gemäß § 2 Abs. 1 BauGB bekannt gemacht.

Ziele und Zwecke der Planung:

Im Gemeindeteil Grün bestand in den letzten Jahren immer wieder Nachfrage nach bebaubaren Grundstücken in erster Linie für Wohnbebauung. Um dieser Nachfrage in begrenztem und verträglichem Maß gerecht zu werden, hat der Gemeinderat beschlossen, im begrenzten Maße Erweiterungsflächen auszuweisen und sich aus diesem Grunde für die Aufstellung der vorliegenden Ergänzungssatzung entschieden.

Bekanntmachung der Durchführung der frühzeitigen Beteiligung gemäß § 3 Abs. 1 BauGB:

In der Sitzung des Gemeinderates vom 29. November 2022 wurden die Planentwürfe gebilligt. Der Geltungsbereich sowie die Lage im Gemeindegebiet sind aus untenstehenden nicht maßstäblichen Lageplänen ersichtlich.

Mit der Ausarbeitung des Planes und der Durchführung des Verfahrens ist das Ingenieurbüro IVS aus Kronach beauftragt.

Der gebilligte und zur frühzeitigen Beteiligung gemäß § 3 Abs. 1 BauGB bestimmte Entwurf der Ergänzungssatzung für den Gemeindeteil Grün mit Begründung in der Fassung vom 25. Oktober 2022, können im Zeitraum

vom 13. Januar 2022 bis einschließlich 17. Februar 2023

im Bauamt der Gemeinde Weißenbrunn, Bergstraße 21, 96369 Weißenbrunn, während der allgemeinen Dienststunden

Montag bis Freitag:

08.00 Uhr - 12.00 Uhr

Mittwoch:

14.00 Uhr - 18.00 Uhr

öffentlich eingesehen werden. Eine vorherige Terminvereinbarung ist erforderlich.

Der Inhalt der ortsüblichen Bekanntmachung und die Planunterlagen sind während der Beteiligung gemäß § 4a Abs. 4 BauGB auf der Internetseite der Gemeinde, Rubrik „Rathaus und Verwaltung“, einzusehen.

Während der Beteiligung können Stellungnahmen bei der Verwaltung vorgebracht werden. Es besteht während der allgemeinen Dienststunden im Ämtergebäude Gelegenheit zur Äußerung und Erörterung.

Da das Ergebnis der Behandlung der Anregungen mitgeteilt wird, ist die Angabe der Anschrift des Verfassers zweckmäßig. Es wird darauf hingewiesen, dass nicht fristgerecht abgegebene Stellungnahmen bei der Beschlussfassung über die Satzung unberücksichtigt bleiben können, sofern die Gemeinde den Inhalt nicht kannte und nicht hätte kennen müssen und deren Inhalt für die Rechtmäßigkeit der Satzung nicht von Bedeutung ist.

Folgende umweltbezogene Informationen sind verfügbar:

Stellungnahmen mit umweltbezogenen Informationen sind gegenwärtig nicht vorhanden.

In Punkt 5 der Satzung wird der Geltungsbereich hinsichtlich umweltrelevanter Aspekte beschrieben. In Punkt 8 der Begründung wird das Freiflächenkonzept dargelegt. Belange des Denkmalschutzes, des Immissionsschutzes sowie des Landschafts- und Naturschutzes (u.a. Eingriffsregelung, Artenschutz) werden in Punkt 11 dargelegt. Ein Umweltbericht ist Teil der Begründung.

Hinweis zum Datenschutz:

Die Verarbeitung personenbezogener Daten erfolgt auf der Grundlage der Art. 6 Abs. 1 Buchstabe e Datenschutzgrundverordnung (DSGVO) in Verbindung mit § 3 BauGB und dem Bayerischen Datenschutzgesetz (BayDSG). Sofern Sie Ihre Stellungnahme ohne Absenderangaben abgeben, erhalten Sie keine Mitteilung über das Ergebnis der Prüfung. Weitere Informationen entnehmen Sie bitte dem Formblatt „Datenschutzrechtliche Informationspflichten im Bauleitplanverfahren“ das ebenfalls öffentlich ausliegt.

Weißenbrunn, den 5. Januar 2023

gez. Jörg Neubauer

Jörg Neubauer

(DS)

Erster Bürgermeister