Titel Logo
Der Amtsbote - Wemding Verwaltungsgemeinschaft
Ausgabe 23/2023
Amtliche Bekanntmachungen
Zurück zur vorigen Seite
Zurück zur ersten Seite der aktuellen Ausgabe

Sanierung der Harburger Str./Staatsstraße nach Gosheim

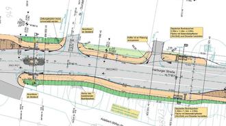
Lageplan Harburger Straße/St.-Gundekar-Straße  

Wie bereits bekannt, wird in diesem Jahr die Harburger Straße saniert. Das Staatliche Bauamt Augsburg hat kurzfristig dazu mitgeteilt, dass erfreulicherweise auch die Strecke zwischen Wemding und Gosheim auf einer Länge von 3,3 km komplett mit einer neuen Asphalt-Deckschicht ausgestattet wird. Die Baustelle außerorts wird voraussichtlich Ende Juli beginnen und bis ca. Ende September dauern. Die entsprechenden Umleitungspläne für die Zeit der Bauarbeiten werden rechtzeitig bekanntgegeben.

Im Anschluss an diese Arbeiten entsteht bis Ende November in der Harburger Straße an der Einmündung zur St.-Gundekar-Straße eine zusätzliche Fußgängerinsel, mit Hilfe derer die stark frequentierte Straße im Bereich der Bushaltestellen leichter überquert werden kann. Die bisherige Bushaltestelle wird barrierefrei umgebaut und erhält zwei neue zeitgemäße Wartehäuschen mit Glasdach.

Vielen Dank auch an das Staatliche Bauamt Augsburg, das die kurzfristig frei gewordenen Mittel für die Deckensanierung der Staatsstraße eingesetzt werden. Vielen Dank, dass während der Baustellenzeit, die Zufahrt der in diesem Bereich befindlichen Industrie- und Gewerbebetriebe gewährleistet ist.

Ihr Bürgermeister
Dr. Martin Drexler