Titel Logo
Der Amtsbote - Wemding Verwaltungsgemeinschaft
Ausgabe 23/2025
Amtliche Bekanntmachungen
Zurück zur vorigen Seite
Zurück zur ersten Seite der aktuellen Ausgabe

Bekanntmachung

2. Änderung des Bebauungsplanes der Gemeinde Wolferstadt für das Gewerbegebiet „Ried“ im vereinfachten Verfahren nach § 13 BauGB;

hier: Bekanntmachung nach § 2 Abs. 1 BauGB und öffentliche Auslegung der Planunterlagen nach § 3 Abs. 2 und § 13 Abs. 2 BauGB

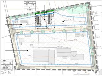
Der Gemeinderat Wolferstadt hat in seiner Sitzung vom 31.03.2025 beschlossen, für das Gewerbegebiet "Ried“ eine Änderung des rechtskräftigen Bebauungsplanes nach § 13 BauGB durchzuführen. Der Geltungsbereich der Änderung umfasst das komplette Bebauungsplangebiet. Der Umgriff ist aus nachfolgendem Lageplan ersichtlich, der Bestandteil der Bekanntmachung ist:

Die Einleitung dieser Planungsabsichten wird hiermit gemäß § 2 Abs. 1 BauGB bekannt gemacht.

Mit Beschluss vom 27.05.2025 hat der Gemeinderat Wolferstadt den vom Architekturbüro Haindl, Wemding, gefertigten Bebauungsplanentwurf mit Satzung und Begründung vom 27.05.2025 gebilligt und festgelegt das Auslegungs- bzw. Beteiligungsverfahren zu den vorliegenden Entwürfen einzuleiten. Nach § 2 Abs. 4 BauGB wird der Bebauungsplan im vereinfachten Verfahren (§ 13 BauGB) ohne Durchführung einer Umweltprüfung aufgestellt.

Der Bebauungsplanentwurf (Planzeichnung mit Satzung und Begründung) liegt nach § 3 Abs. 2 BauGB in der Zeit vom 13.06.2025 bis 14.07.2025 öffentlich aus.

Der Ort der öffentlichen Auslegung ist die Verwaltungsgemeinschaft Wemding, Marktplatz 3, 86650 Wemding (Zimmer 23). Die genannten Unterlagen können in der angegebenen Zeit während der üblichen Dienststunden eingesehen werden. Die Planunterlagen können zudem auf der Internetseite der Gemeinde Wolferstadt unter Aktuelles /Planverfahren eingesehen werden.

Während der öffentlichen Auslegung können Stellungnahmen abgegeben werden, die möglichst schriftlich oder zur Niederschrift bei der Verwaltungsgemeinschaft Wemding eingereicht werden sollen. Es wird darauf hingewiesen, dass nicht fristgerecht abgegebene Stellungnahmen bei der Beschlussfassung unberücksichtigt bleiben können.

Datenschutzhinweis:

Die Verarbeitung personenbezogener Daten erfolgt auf der Grundlage der Art. 6 Abs. 1 Buchst. e DSGVO i.V.m. § 3 BauGB und dem BayDSG. Sofern Sie Ihre Stellungnahme ohne Absenderangaben abgeben, erhalten Sie keine Mitteilung über das Ergebnis der Prüfung. Weitere Informationen entnehmen Sie bitte dem Informationsblatt zur Erhebung von personenbezogenen Daten (gem. Art. 13, 14 DSGVO), das ebenfalls öffentlich ausliegt. Diese Informationen finden Sie auch unter www.vg-wemding.de (unter der Rubrik Datenschutzgrundverordnung beim Informationsblatt Bauleitplanung).

Wolferstadt, den 02.06.2025
Gemeinde Wolferstadt
Philipp Schlapak, 1. Bürgermeister