Titel Logo
Der Amtsbote - Wemding Verwaltungsgemeinschaft
Ausgabe 38/2025
Amtliche Bekanntmachungen
Zurück zur vorigen Seite
Zurück zur ersten Seite der aktuellen Ausgabe

Bekanntmachung 1. Änderung des Bebauungsplanes der Gemeinde Fünfstetten für das Gebiet „Itzinger Straße“

1. Änderung des Bebauungsplanes der Gemeinde Fünfstetten für das Gebiet „Itzinger Straße“ im beschleunigten Verfahren nach § 13a BauGB;

hier: Bekanntmachung der öffentlichen Auslegung der Planunterlagen nach § 3 Abs.2 BauGB

Der Gemeinderat Fünfstetten hat in seiner Sitzung vom 07.07.2025 beschlossen, für das Gebiet „Itzinger Straße“ eine Änderung des rechtskräftigen Bebauungsplanes nach § 13a BauGB durchzuführen.

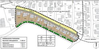
Der Geltungsbereich umfasst den kompletten Umgriff des ursprünglichen Bebauungsplanes und ist aus nachfolgendem.Lageplan.ersichtlich:

Mit Beschluss vom 08.09.2025 hat der Gemeinderat Fünfstetten den vom Planungsbüro Becker + Haindl, Wemding, gefertigten Bebauungsplanentwurf mit Satzung und Begründung vom 08.09.2025 gebilligt und festgelegt, das Auslegungs- bzw. Beteiligungsverfahren zu den vorliegenden Entwürfen einzuleiten. Nach § 2 Abs. 4 BauGB wird der Bebauungsplan im beschleunigten Verfahren (§ 13a BauGB) ohne Durchführung einer Umweltprüfung aufgestellt.

Der Bebauungsplanentwurf (Planzeichnung mit Satzung und Begründung) liegt nach § 3 Abs. 2 BauGB in der Zeit vom 26.09.2025 bis 26.10.2025 öffentlich aus.

Der Ort der öffentlichen Auslegung ist die Verwaltungsgemeinschaft Wemding, Marktplatz 3, 86650 Wemding (Zimmer 23). Die genannten Unterlagen können in der angegebenen Zeit während der üblichen Dienststunden eingesehen werden. Die Planunterlagen können zudem auf der Internetseite der Gemeinde Fünfstetten unter Aktuelles/Planverfahren eingesehen werden.

Während der öffentlichen Auslegung können Stellungnahmen abgegeben werden, die möglichst schriftlich oder zur Niederschrift bei der Verwaltungsgemeinschaft Wemding eingereicht werden sollen. Es wird darauf hingewiesen, dass nicht fristgerecht abgegebene Stellungnahmen bei der Beschlussfassung unberücksichtigt bleiben können.

Datenschutzhinweis:

Die Verarbeitung personenbezogener Daten erfolgt auf der Grundlage der Art. 6 Abs. 1 Buchst. e DSGVO i.V.m. § 3 BauGB und dem BayDSG. Sofern Sie Ihre Stellungnahme ohne Absenderangaben abgeben, erhalten Sie keine Mitteilung über das Ergebnis der Prüfung. Weitere Informationen entnehmen Sie bitte dem Informationsblatt zur Erhebung von personenbezogenen Daten (gem. Art. 13, 14 DSGVO), das ebenfalls öffentlich ausliegt. Diese Informationen finden Sie auch unter www.vg-wemding.de (unter der Rubrik Datenschutzgrundverordnung beim Informationsblatt Bauleitplanung).

Fünfstetten, den 12.09.2025
GEMEINDE FÜNFSTETTEN
Josef Bickelbacher, 1. Bürgermeister