Titel Logo
Der Amtsbote - Wemding Verwaltungsgemeinschaft
Ausgabe 40/2024
Amtliche Bekanntmachungen
Zurück zur vorigen Seite
Zurück zur ersten Seite der aktuellen Ausgabe

Bekanntmachung

4. Änderung des Bebauungsplanes der Stadt Wemding für das Gebiet „Stadelmüllerweg-West“ nach § 13a BauGB

hier: Bekanntmachung nach § 2 Abs. 1 BauGB und öffentliche Auslegung der Planunterlagen nach § 3 Abs. 2 und § 13a Abs. 2 BauGB

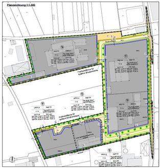
Der Stadtrat Wemding hat in seiner Sitzung vom 17.09.2024 beschlossen, für das Gebiet „Stadelmüllerweg-West“ eine Änderung des rechtskräftigen Bebauungsplanes nach § 13a BauGB durchzuführen. Der Geltungsbereich der Änderung umfasst die Flurnummern 3607, 3607/1, 3607/2, 3607/3, 3607/7, 3608/3, 3610, 3611, 3612, 3634, 3639, 3639/1, 3639/2, 3640, 3640/1, 3640/2, 3640/3, 3640/4, 3640/5, 808/3 (Teilfläche), 808/12 der Gemarkung Wemding und ist aus nachfolgendem Lageplan ersichtlich:

Die Einleitung dieser Planungsabsichten wird hiermit gemäß § 2 Abs. 1 BauGB bekannt gemacht.

Mit Beschluss vom 17.09.2024 hat der Stadtrat Wemding den vom Planungsbüro Becker + Haindl, Wemding, gefertigten Bebauungsplanentwurf mit Satzung und Begründung vom 17.09.2024 gebilligt und festgelegt, das Auslegungs- bzw. Beteiligungsverfahren zu den vorliegenden Entwürfen einzuleiten. Nach § 2 Abs. 4 BauGB wird der Bebauungsplan im beschleunigten Verfahren (§ 13a BauGB) ohne Durchführung einer Umweltprüfung aufgestellt.

Der Bebauungsplanentwurf (Planzeichnung mit Satzung und Begründung) liegt nach § 3 Abs. 2 BauGB in der Zeit vom 11.10.2024 bis 11.11.2024 öffentlich aus.

Der Ort der öffentlichen Auslegung ist die Verwaltungsgemeinschaft Wemding, Marktplatz 3, 86650 Wemding (Zimmer 23). Die genannten Unterlagen können in der angegebenen Zeit während der üblichen Dienststunden eingesehen werden. Die Planunterlagen können zudem auf der Internetseite der Stadt Wemding (https://www.wemding.de/rathaus/verwaltung/planverfahren/) unter Rathaus/Planverfahren eingesehen werden.

Während der öffentlichen Auslegung können Stellungnahmen abgegeben werden, die möglichst schriftlich oder zur Niederschrift bei der Verwaltungsgemeinschaft Wemding eingereicht werden sollen. Es wird darauf hingewiesen, dass nicht fristgerecht abgegebene Stellungnahmen bei der Beschlussfassung unberücksichtigt bleiben können.

Datenschutzhinweis:

Die Verarbeitung personenbezogener Daten erfolgt auf der Grundlage der Art. 6 Abs. 1 Buchst. e DSGVO i.V.m. § 3 BauGB und dem BayDSG. Sofern Sie Ihre Stellungnahme ohne Absenderangaben abgeben, erhalten Sie keine Mitteilung über das Ergebnis der Prüfung. Weitere Informationen entnehmen Sie bitte dem Informationsblatt zur Erhebung von personenbezogenen Daten (gem. Art. 13, 14 DSGVO), das ebenfalls öffentlich ausliegt. Diese Informationen finden Sie auch unter www.vg-wemding.de (unter der Rubrik Datenschutzgrundverordnung beim Informationsblatt Bauleitplanung).

Wemding, den 27.09.2024
Stadt Wemding
Dr. Martin Drexler, 1. Bürgermeister