Titel Logo
Was gibt's Nui's Amtliches Bekanntmachungsblatt für die VG Westendorf
Ausgabe 16/2025
Amtliche Bekanntmachungen
Zurück zur vorigen Seite
Zurück zur ersten Seite der aktuellen Ausgabe

Oberostendorf

Lageplan Bebauungsplan mit Geltungsbereich, © Bayerische Vermessungsverwaltung 2020 / 2025

Vollzug des Baugesetzbuches (BauGB);

Amtliche Bekanntmachung

zur Neuaufstellung der 1. Änderung und Erweiterung des Bebauungsplanes Nr. 21 "Gemeinbedarfszone Nord mit Feuerwehr, Bauhof und Sportanlagen im Ortsteil Oberostendorf" gemäß § 2 Abs. 1 Satz 2 BauGB

und

zur Öffentlichen Auslegung und Beteiligung und Anhörung der Behörden und sonstigen Träger öffentlicher Belange nach § 3 Absatz 2 BauGB i. V. m. § 4 Abs. 2 BauGB


Aufstellungsbeschluss

Der Gemeinderat Oberostendorf hat in der Sitzung vom 25.03.2025 gemäß § 2 Abs.1 BauGB die Neuaufstellung der 1. Änderung und Erweiterung des Bebauungsplans Nr. 21 "Gemeinbedarfszone Nord mit Feuerwehr, Bauhof und Sportanlagen im Ortsteil Oberostendorf" beschlossen.

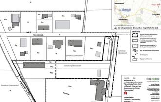
Der räumliche Geltungsbereich des Bebauungsplanes wird aus dem beiliegenden Lageplan ersichtlich.

Der räumliche Geltungsbereich der Änderung und Erweiterung umfasst insgesamt ca. 0,85 ha. Dieser liegt an der Gemeindestraße „Am Sportplatz“ im Norden des Ortsteils Oberostendorf und umfasst die Teilflächen (TF) der Grundstücke Fl.-Nrn. 324, 325 („Am Sportplatz“), 326, 326/2 und 326/3, jeweils der Gemarkung (Gmkg.) Oberostendorf sowie die Grundstücke Fl.-Nrn. 59/4 und 59/5 und die Teilfläche (TF) des Grundstückes Fl.-Nr. 60, jeweils der Gemarkung Unterostendorf.

Der Geltungsbereich wird

-

im Norden durch das „Gewerbegebiet Oberostendorf-Nord“ (BP Nr. 15) (Fl.-Nrn. 59, 59/6, 59/9, 60, Gmkg. Unterostendorf)

-

im Osten durch die restliche landwirtschaftliche Flächen (Fl.-Nr. 324, Gmkg. Oberostendorf),

-

im Westen durch die weiterführenden gemeindlichen Grundstücke (Fl.-Nrn. 326, 326/2, 326/3 und 326/4, Gmkg. Oberostendorf) sowie

-

im Süden durch den bestehenden Sportplatz und das Zentrum der Vereine (Teilfläche Fl.-Nr. 326/4), die weiterführende Gemeindestraße „Am Sportplatz“ (Fl.-Nr. 325) und das angrenzende landwirtschaftliche Grundstück Fl.-Nr. 323

begrenzt. Die Grenze des räumlichen Geltungsbereiches der Bebauungsplanänderung wurde in der Planzeichnung mit schwarzen Balken-Linie gekennzeichnet.

Erfordernis und Ziele und Zwecke der Planung

Mit dieser Änderung und Erweiterung des gegenständlichen Bebauungsplanes soll die planungsrechtliche Voraussetzung für die Erstellung der Stellplätze auf dem Grundstück Fl.-Nr. 324 geschaffen werden, da aufgrund der immissionschutzrechtlichen Auswirkungen eine Ausnahmegenehmigung nach § 35 Abs. 2 BauGB durch das Landratsamt Ostallgäu nicht erteilt werden kann. Die Neuanordnung der Stellplätze wurde notwendig, da sich für eine nachhaltigere Sanierung und Erweiterung des bestehenden Tennisheims und der Tennisplätze anstatt eines Neubaus weiter westlich entschieden wurde. Die Neuanordnung der rechtlich nachzuweisenden Stellplätze erfolgt nun östlich der Erschließungsstraße „Am Sportplatz“ auf dem Grundstück Fl.-Nr. 324, Gemarkung Oberostendorf. Außerdem sollen die benötigten Wertstoffsammelcontainer ebenfalls dauerhaft an dieser Straße untergebracht werden.


Öffentliche Auslegung (Beteiligung)

Der Gemeinderat Oberostendorf hat ebenfalls mit Sitzung vom 15.07.2025 den Entwurfsstand der 1. Änderung und Erweiterung des Bebauungsplanes Nr. 21 "Gemeinbedarfszone Nord mit Feuerwehr, Bauhof und Sportanlagen im Ortsteil Oberostendorf" gebilligt und bestimmt, dass die Öffentliche Auslegung nach § 3 Abs. 2 BauGB sowie die gleichzeitige Beteiligung und Anhörung der Behörden und Träger Öffentlicher Belange gemäß § 4 Abs. 2 BauGB für diese Bauleitplanung durchgeführt werden soll.

Die Gemeinde Oberostendorf wird die Satzungs- bzw. Planungsunterlagen in der Zeit

von Montag den, 18.08.2025 bis einschließlich Mittwoch, den 17.09.2025

unter folgender Adresse

www.oberostendorf.de

veröffentlicht.

Auch der Inhalt dieser Bekanntmachung ist im Internet unter www.oberostendorf.de veröffentlicht.

Stellungnahmen können während der genannten Veröffentlichungsfrist abgegeben werden. Stellungnahmen sollen elektronisch übermittelt werden, können bei Bedarf aber auch auf anderem Weg abgegeben werden, z. B. schriftlich oder zur Niederschrift.

Per E-Mail an

rathaus@oberostendorf.com

Schriftlich an

Gemeinde Oberostendorf, Kirchstraße 7,

86869 Oberostendorf

Als weitere Zugangsmöglichkeit werden die Unterlagen

-

in der Gemeindeverwaltung Oberostendorf, Kirschstraße 7, 86869 Oberostendorf zu folgenden Zeiten

o

Montag / Donnerstag / Freitag 08:00 Uhr – 12:00 Uhr

o

Mittwoch 18:30 Uhr – 20:00 Uhr

-

in der Geschäftsstelle der Verwaltungsgemeinschaft, Kaltentaler Straße 1, 87679 Westendorf / Ortsteil Dösingen während der allgemeinen Dienststunden zu den folgenden Zeiten öffentlich ausgelegt:

o

Mo-Fr 8:00-12:00 Uhr

o

Die 14:00-15:30 Uhr

o

Do 14:00-18:00 Uhr

für jedermanns Einsichtnahme vorgehalten.

Hinweis: Für die Einsichtnahme in der Geschäftsstelle der Verwaltungsgemeinschaft muss kein Termin vereinbart werden. Bei geschlossener Türe bitte klingeln.

Stellungnahmen zum Bebauungsplan können während der oben genannten Frist abgegeben werden. Stellungnahmen können insbesondere schriftlich, zur Niederschrift oder per E-Mail vorgebracht werden. Es wird darauf hingewiesen, dass nicht fristgerecht abgegebene Stellungnahmen bei der Beschlussfassung über die Bauleitplanung unberücksichtigt bleiben können.

Gleichzeitig sind betroffene (Fach-) Behörden und sonstige Träger Öffentlicher Belange aufgefordert, sich gemäß § 4 Abs. 2 BauGB zu dem Entwurfsstand mit Begründung zu äußern (Beteiligung + Anhörung).

Zu der Planung sind folgende umweltrelevanten Informationen verfügbar :

-

Umweltbericht zum Bebauungsplan gemäß § 2 und 2a BauGB als Bestandteil der Begründung mit Bestandsaufnahme, Auswertung von Grundlageninformationen, Beschreibung und Bewertung der voraussichtlichen Umweltauswirkungen auf die Schutzgüter Boden, Wasser, Lokalklima und Lufthygiene, Tiere und Pflanzen, Mensch (Immissionsschutz und Erholung), Orts- und Landschaftsbild, Kultur- und Sachgüter unter Berücksichtigung der geplanten Maßnahmen zur Vermeidung und Verringerung.

-

Schalltechnische Untersuchung, Fassung vom 14.03.2025 mit Angaben zu den örtlichen, bestehenden Gegebenheiten (bestehende Immissionsquellen), die Berechnung der bestehenden Vorbelastungen durch Lärm, die Berechnung der zusätzlichen und veränderten Schallemissionen, eine zusammenfassende Beurteilung der Berechnungen.

-

Stellungnahmen mit umweltrelevanten Inhalten zu den Schutzgütern aus der Frühzeitigen Beteiligung der Öffentlichkeit nach § 3 Abs. 1 BauGB bzw. der (frühzeitigen) Beteiligung der Behörden und Träger öffentlicher Belange nach § 4 Abs. 1 BauGB:

Schutzgut Boden und Wasser

Hinweis zum ordnungsgemäßen Umgang mit schadstoffbelastetem Boden und Aushub

Schutzgut Tiere und Pflanzen, biologische Vielfalt

Anregung die Stellplätze durch Pflanzräume zu gliedern

Schutzgut Kultur- und Sachgüter / Denkmalschutz

Hinweis auf bestehende Stromleitungen

Hinweis auf bestehende Telekommunikationsleitungen

Die diesen Informationen zugrunde liegenden Unterlagen liegen ebenfalls aus.

Der Billigungs- und Verfahrensbeschluss zum Entwurfsstand der gegenständlichen Bebauungsplan-Änderung mit integriertem Grünordnungsplan wird hiermit gemäß § 2 Abs. 1 Satz 2 BauGB ortsüblich bekannt gemacht.

Datenschutz

Die Verarbeitung personenbezogener Daten erfolgt auf der Grundlage der Art. 6 Abs. 1 Buchstabe e (DSGVO) i. V. mit § 3 BauGB und dem BayDSG. Sofern Sie Ihre Stellungnahme ohne Absenderangaben abgeben, erhalten Sie keine Mitteilung über das Ergebnis der Prüfung. Weitere Informationen entnehmen Sie bitte dem Formblatt „Datenschutzrechtliche Informationspflichten im Bauleitplanverfahren“, das ebenfalls öffentlich ausliegt.

Dieser Verfahrensschritt wird vom Planungsbüro DAURER + HASSE in Zusammenarbeit mit der Verwaltung durchgeführt.

Oberostendorf, den 01.08.2025

Gemeinde Oberostendorf

 —  -Siegel-

gez. Günter Mayer

Erster Bürgermeister