Titel Logo
Was gibt's Nui's Amtliches Bekanntmachungsblatt für die VG Westendorf
Ausgabe 19/2023
Amtliche Bekanntmachungen
Zurück zur vorigen Seite
Zurück zur ersten Seite der aktuellen Ausgabe

Vollzug des Baugesetzbuches (BauGB)

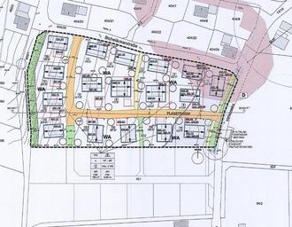
(nichtmaßstäblicher Lageplan)

Amtliche Bekanntmachung der Gemeinde Westendorf zur 1. Änderung des Bebauungsplans mit Grünordnung „Bicheläcker II“ in Dösingen gem. § 13a BauGB;

Aufstellungsbeschluss nach § 2 Abs. 1 BauGB und Beteiligung der Öffentlichkeit nach § 3 Abs. 2 BauGB

Der Gemeinderat hat in seiner Sitzung am 28.06.2023 die Aufstellung der 1. Änderung des Bebauungsplanes mit Grünordnung „Bicheläcker II“ in Dösingen beschlossen. Der Bebauungsplan umfasst eine Fläche von rund 1,4 ha und umfasst die Grundstücke 402, 402/1, 402/2, 402/3, 402/4, 402/5, 402/6, 402/7 sowie 403, 403/3, 403/4, 403/5, 403/6, 403/7, 403/8, 403/9, 403/10, 403/11, 403/12,0403/13, 403/14, 403/15 und 403/16 der Gemarkung Dösingen.

Der ursprüngliche Bebauungsplan grenzt im Norden an das Baugebiet „Bicheläcker“ mit der Bicheläckerstraße, durch die das Gebiet erschlossen wird, sowie im Osten an den Altort. Die angrenzenden Flächen im Westen und Süden werden landwirtschaftlich genutzt.

Mit der 1. Änderung soll beim Bebauungsplan „Bicheläcker II“ in Dösingen die zulässige überbaubare Fläche auf eine GRZ von 0,35 mit einer zulässigen Überschreitung von 70 von Hundert für Anlagen nach §19 Abs. 4 Satz 1 BauNVO erhöht werden, um den tatsächlichen Flächenanforderungen gerecht zu werden. Die ursprünglich festgesetzte Grundfläche von 160 m² mit einer zulässigen Überschreitung von 50 vom Hundert hat sich als zu gering herausgestellt.

Die gegenständliche Aufstellung der 1. Änderung des Bebauungsplans mit Grünordnung „Bicheläcker II“ in Dösingen wird im beschleunigten Verfahren nach § 13a BauGB behandelt.

Gemäß § 13a Abs. 2 Nr. 1 i.V.m. § 13 Abs. 3 Satz 1 BauGB wird von der Umweltprüfung, dem Umweltbericht, bei der Bekanntmachung der öffentlichen Auslegung nach § 3 Abs. 2 BauGB von der Angabe, welche umweltbezogenen Informationen verfügbar sind, von der zusammenfassenden Erklärung nach § 10a Abs. 1 BauGB und von einer Überwachung nach § 4c BauGB abgesehen.

Ferner wird gemäß § 13 Abs. 2 Nr. 1 BauGB von den Verfahrensschritten zur Öffentlichkeits- und Behördenbeteiligung nach § 3 Abs. 1 und § 4 Abs.1 BauGB abgesehen.

Der Aufstellungsbeschluss wird hiermit gemäß § 2 Abs. 1 BauGB amtlich bekannt gemacht.

In seiner Sitzung am 06.09.2023 hat der Gemeinderat den Entwurf der 1. Änderung des Bebauungsplanes mit Grünordnung „Bicheläcker II“ in Dösingen mit textlichen Festsetzungen, den Örtlichen Bauvorschriften und der Begründung in der Fassung vom 06.09.2023 gebilligt und beschlossen, die Beteiligung der Öffentlichkeit gemäß § 3 Abs. 2 BauGB durchzuführen. Parallel werden die Behörden und sonstigen Träger öffentlicher Belange gemäß § 4 Abs. 2 BauGB beteiligt. Der Geltungsbereich ergibt sich aus beiliegendem Lageplan.

Der Entwurf des Bebauungsplanes mit Grünordnung „Bicheläcker II“ in Dösingen mit den Örtlichen Bauvorschriften und Begründung in der Fassung vom 06.09.2023, kann auf der Homepage der Gemeinde (www.gemeinde-westendorf.de)

im Zeitraum vom 02.10.2023 bis einschließlich 07.11.2023

abgerufen werden.

Zusätzlich zur Veröffentlichung im Internet liegen die Unterlagen im Gemeindeamt von Westendorf, Am Kirchsteig 1, 87679 Westendorf während der allgemeinen Öffnungszeiten zu Jedermanns Einsicht öffentlich aus. Diese sind:

Dienstag

14.00 Uhr bis 18.00 Uhr

Freitag

08.00 Uhr bis 12.00 Uhr

Nach telefonischer Terminvereinbarung auch außerhalb dieser Zeiten.

Die der Planung zu Grunde liegenden Vorschriften und Regelwerke (insbesondere Erlasse, DIN-Vorschriften und Merkblätter) können ebenso bei der Gemeinde Westendorf während der allgemeinen Öffnungszeiten eingesehen werden.

Während der Dauer der Veröffentlichungsfrist können Stellungnahmen elektronisch per E-Mail [info@gemeinde-westendorf.de] abgegeben werden. Bei Bedarf ist auch eine Abgabe der Stellungnahmen schriftlich per Post oder zur Niederschrift im Gemeindeamt zu den obengenannten Öffnungszeiten möglich.

Gemäß § 3 Abs. 2 Nr. 3 BauGB wird darauf hingewiesen, dass nicht fristgerecht abgegebene Stellungnahmen bei der Beschlussfassung über die 1. Änderung des Bebauungsplans unberücksichtigt bleiben können.

Parallel hierzu findet in diesem Zeitraum die Anhörung der Träger öffentlicher Belange (nach § 4 Abs. 2 BauGB) statt.

Darüber hinaus besteht die Möglichkeit, sich vom 02.10.2023 bis einschließlich 07.11.2023 im Gemeindeamt von Westendorf während der allgemeinen Öffnungszeiten über die allgemeinen Ziele und Zwecke sowie die wesentlichen Auswirkungen der Planung zu unterrichten und zu äußern (gem. § 13a Abs. 3 Nr. 2 BauGB).

Es wird darauf hingewiesen, dass zur Bearbeitung abgegebener Stellungnahmen die angegebenen personenbezogenen Daten auf Grundlage von Art. 4 Bayerisches Datenschutzgesetz (BayDSG) gespeichert werden. Die abwägungsrelevanten Inhalte der vorgebrachten Stellungnahmen werden anonymisiert aufbereitet und den zuständigen Gremien in teils öffentlichen Sitzungen vorgelegt.

Westendorf, den 14.09.2023

Gemeinde Westendorf

-Siegel-

gez. Obermaier

Erster Bürgermeister