Titel Logo
Was gibt's Nui's Amtliches Bekanntmachungsblatt für die VG Westendorf
Ausgabe 22/2025
Amtliche Bekanntmachungen
Zurück zur vorigen Seite
Zurück zur ersten Seite der aktuellen Ausgabe

Oberostendorf

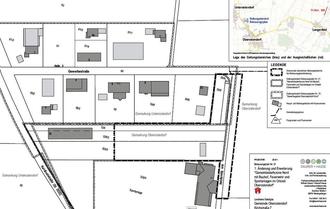
Lageplan Bebauungsplan mit Geltungsbereich, © Bayerische Vermessungsverwaltung 2020 / 2025


Vollzug des Baugesetzbuches (BauGB);

Amtliche Bekanntmachung

über den Satzungsbeschluss nach § 10 Abs. 1 BauGB

1. Änderung des Bebauungsplanes Nr. 21 „Gemeinbedarfszone Nord mit Bauhof, Feuerwehr und Sportanlagen im Ortsteil Oberostendorf“

Der Gemeinderat Oberostendorf hat mit Beschluss vom 07.10.2025 die

1. Änderung des Bebauungsplanes Nr. 21 "Gemeinbedarfszone Nord mit Feuerwehr, Bauhof und Sportanlagen im Ortsteil Oberostendorf"

mit der Bezeichnung „Endgültige Fassung“ und inhaltlichem Stand vom 15.07.2025., redaktionell ergänzt am 07.10.2025 bestehend aus der Planzeichnung, den textlichen Festsetzungen und Hinweisen durch Text sowie der zugehörigen Begründung samt Anlagen gemäß § 10 Abs. 1 BauGB als Satzung beschlossen.

Der räumliche Geltungsbereich der Änderung und Erweiterung umfasst insgesamt ca. 0,85 ha. Dieser liegt an der Gemeindestraße „Am Sportplatz“ im Norden des Ortsteils Oberostendorf und umfasst die Teilflächen (TF) der Grundstücke Fl.-Nrn. 324, 325 („Am Sportplatz“), 326, 326/2 und 326/3, jeweils der Gemarkung (Gmkg.) Oberostendorf sowie die Grundstücke Fl.-Nrn. 59/4 und 59/5 und die Teilfläche (TF) des Grundstückes Fl.-Nr. 60, jeweils der Gemarkung Unterostendorf.

Der Geltungsbereich wird

-

im Norden durch das „Gewerbegebiet Oberostendorf-Nord“ (BP Nr. 15) (Fl.-Nrn. 59, 59/6, 59/9, 60, Gmkg. Unterostendorf)

-

im Osten durch die restliche landwirtschaftliche Flächen (Fl.-Nr. 324, Gmkg. Oberostendorf),

-

im Westen durch die weiterführenden gemeindlichen Grundstücke (Fl.-Nrn. 326, 326/2, 326/3 und 326/4, Gmkg. Oberostendorf) sowie

-

im Süden durch den bestehenden Sportplatz und das Zentrum der Vereine (Teilfläche Fl.-Nr. 326/4), die weiterführende Gemeindestraße „Am Sportplatz“ (Fl.-Nr. 325) und das angrenzende landwirtschaftliche Grundstück Fl.-Nr. 323

begrenzt.

Der räumliche Geltungsbereich des Bebauungsplanes wird aus dem beiliegenden Lageplan ersichtlich.

Der Satzungsbeschluss wird hiermit gemäß § 10 Abs. 3 des Baugesetzbuches (BauGB) ortsüblich bekannt gemacht.

Mit dieser Bekanntmachung tritt die 1. Änderung des Bebauungsplanes Nr. 21 "Gemeinbedarfszone Nord mit Feuerwehr, Bauhof und Sportanlagen im Ortsteil Oberostendorf" in Kraft.

Jede Person kann den Bebauungsplan mit der Begründung sowie der zusammenfassenden Erklärung über die Art und Weise, wie die Umweltbelange und die Ergebnisse der Öffentlichkeits- und Behördenbeteiligung in dem Bebauungsplan berücksichtigt wurden, und aus welchen Gründen der Plan nach Abwägung mit den geprüften, in Betracht kommenden anderweitigen Planungsmöglichkeiten gewählt wurde, unter folgender Adresse

www.oberostendorf.de

einsehen und über deren Inhalt Auskunft verlangen.

Auch der Inhalt dieser Bekanntmachung ist im Internet unter www.oberostendorf.de veröffentlicht.

Dazu stehen folgende Kontaktmöglichkeiten zur Verfügung:

Per E-Mail an

rathaus@oberostendorf.de

Per Telefon

08344 / 76 82 80

Schriftlich an

Gemeinde Oberostendorf, Kirchstraße 7,

86869 Oberostendorf

Als weitere Zugangsmöglichkeit werden die Unterlagen zur Einsichtnahme und Auskunft

-

in der Gemeindeverwaltung Oberostendorf, Kirchstraße 7, 86869 Oberostendorf zu folgenden Zeiten

Montag / Donnerstag / Freitag 08:00 Uhr – 12:00 Uhr

Mittwoch 18:30 Uhr – 20:00 Uhr

und

-

in der Geschäftsstelle der Verwaltungsgemeinschaft, Kaltentaler Straße 1, 87679 Westendorf / Ortsteil Dösingen während der allgemeinen Dienststunden zu den folgenden Zeiten öffentlich ausgelegt:

o Mo-Fr 8:00-12:00 Uhr

Die 14:00-15:30 Uhr

Do 14:00-18:00 Uhr

vorgehalten.

Hinweis: Für die Einsichtnahme in der Geschäftsstelle der Verwaltungsgemeinschaft muss kein Termin vereinbart werden. Bei geschlossener Türe bitte klingeln.

Auf die Voraussetzungen für die Geltendmachung der Verletzung von Verfahrens- und Formvorschriften und von Mängeln der Abwägung sowie der Rechtsfolgen des § 215 Abs. 1 BauGB wird hingewiesen.

Unbeachtlich werden demnach

1.

eine nach § 214 Abs. 1 S. 1 Nr. 1 bis 3 BauGB beachtliche Verletzung der dort bezeichneten Verfahrens- und Formvorschriften und

2.

eine unter Berücksichtigung des § 214 Abs. 2 BauGB beachtliche Verletzung der Vorschriften über das Verhältnis des Bebauungsplans und des Flächennutzungsplans und

3.

nach § 214 Abs. 3 S. 2 BauGB beachtliche Mängel des Abwägungsvorgangs,

wenn sie nicht innerhalb eines Jahres seit Bekanntmachung der Einbeziehungssatzung schriftlich gegenüber der Gemeinde geltend gemacht worden sind; der Sachverhalt, der die Verletzung oder den Mangel begründen soll, ist darzulegen.

Außerdem wird auf die Vorschriften des § 44 Abs. 3 Satz 1 und 2 sowie Abs. 4 BauGB hingewiesen. Danach er-löschen Entschädigungsansprüche für nach den §§ 39 bis 42 BauGB eingetretene Vermögensnachteile, wenn nicht innerhalb von drei Jahren nach Ablauf des Kalenderjahres, in dem die Vermögensnachteile eingetreten sind, die Fälligkeit des Anspruches herbeigeführt wird

Oberostendorf, den 24.10.2025
Gemeinde Oberostendorf
 —  -Dienstsiegel-
gez. Mayer
Erster Bürgermeister