Titel Logo
Was gibt's Nui's Amtliches Bekanntmachungsblatt für die VG Westendorf
Ausgabe 6/2023
Amtliche Bekanntmachungen
Zurück zur vorigen Seite
Zurück zur ersten Seite der aktuellen Ausgabe

Westendorf

Amtliche Bekanntmachung

des Aufstellungsbeschlusses für den Bebauungsplan

„Gewerbegebiet Westendorf Süd“

gem. § 2 Abs. 1 S. 2 BauGB

mit der frühzeitigen Beteiligung der Träger öffentlicher Belange und der Öffentlichkeit

Der Gemeinderat Westendorf hat in der Sitzung vom 23.03.2022 die Aufstellung des Bebauungsplanes „Gewerbegebiet Westendorf Süd“ beschlossen. Der Lageplan des Architekturbüros Wolffhardt vom 18.03.2022 wurde im Amtsblatt Nr. 7/22 vom 08.04.2022 veröffentlicht.

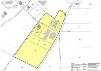
In seiner Sitzung vom 01.02.2023 hat der Gemeinderat den räumlichen Geltungsbereich geändert und beschlossen (siehe nachfolgend abgedruckter Lageplan).

(Abbildung 1: Abgrenzung Geltungsbereich (nichtmaßstäblicher Lageplan))

Der räumliche Geltungsbereich des aufzustellenden Bebauungsplans hat eine Fläche von rund 4,5 ha. Dieser umfasst in der Gemarkung Westendorf die Flurgrundstücke 253, 254, 254/1, 257/2, 255, 255/1, 255/2, 256 TF, 257/1, 257/2, 257/3, 257/4, 257/8 TF, 258 und 258/2.

Das Plangebiet grenzt im Osten an die Fl.-Nr. 259 (Kreisstraße OAL 16), im Süden an die Fl.-Nr. 148 der Gem. Dösingen, im Westendorf an die Fl.-Nr. 252 Gem. Westendorf, im Norden an die Fl.-Nr. 257/7 und 14 Gem. Westendorf.

Der Gemeinderat hat in seiner Sitzung vom 15.03.2023 inhaltlich über den Vorentwurf des Bebauungsplanes mit den textlichen Festsetzungen, den örtlichen Bauvorschriften und der Begründung in der Fassung vom 08.03.2023 gebilligt und beschlossen, die frühzeitige Beteiligung der Träger öffentlicher Belange und der Öffentlichkeit gem. § 3 und § 4 BauGB durchzuführen.

Der Vorentwurf des Bebauungsplanes „Gewerbegebiet Westendorf Süd“ liegt in der Gemeinde Westendorf, Am Kirchsteig 1, während der allgemeinen Öffnungszeiten im Zeitraum vom

03.04.2023 bis zum 05.05.2023

Das Gemeindeamt hat am Dienstag von 14 - 18 Uhr und Freitag von 8 - 12 Uhr geöffnet. Bei Fragen stehen Ihnen die Mitarbeiter der Gemeindeverwaltung gerne zur Verfügung.

Der Inhalt der Bekanntmachung und die nach § 3 auszulegenden Unterlagen sind auch im Internet unter dem folgenden Link veröffentlicht:

https://www.gemeinde-westendorf.de/baugebiete-westendorf.html

Stellungnahmen können während dieser Frist schriftlich oder während der Dienststunden zur Niederschrift abgegeben werden. Nicht fristgerecht abgegebene Stellungnahmen können bei der Beschlussfassung über den Bebauungsplan unberücksichtigt bleiben, wenn die Gemeinde den Inhalt nicht kannte und nicht hätte kennen müssen und deren Inhalt für die Rechtmäßigkeit des Bebauungsplanes nicht von Bedeutung ist.

Datenschutz:

Die Verarbeitung personenbezogenen Daten erfolgt auf der Grundlage der Art. 6 Abs. 1 Buchstabe e (DSVGO) i. V. mit § 3 BauGB und dem BayDSG. Sofern Sie Ihre Stellungnahme ohne Absenderangaben abgeben, erhalten Sie keine Mitteilung über das Ergebnis der Prüfung.

Westendorf, den 17.03.2023
Gemeinde Westendorf
-Siegel-
gez. Obermaier
Erster Bürgermeister