Titel Logo
Mitteilungsblatt Gemeinde Walsdorf
Ausgabe 3/2023
Amtliche Bekanntmachungen
Zurück zur vorigen Seite
Zurück zur ersten Seite der aktuellen Ausgabe

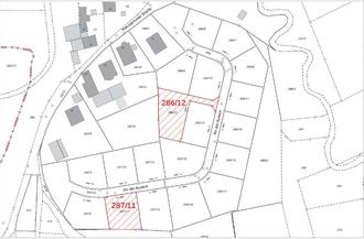
Baugebiet „Erlau-Süd“ der Gemeinde WalsdorfVergabe der Bauplätze

Vergabe der Bauplätze

Die Gemeinde Walsdorf bemüht sich, Bauland zu attraktiven Bedingungen zur Verfügung zu stellen.

Die Gemeinde Walsdorf hat in diesem Baugebiet 2 Bauplätze (Fl.-Nr. 286/12 mit 803 m², Fl.-Nr. 287/11 mit 598 m²) zu verkaufen. Die Erschließung der Grundstücke ist gesichert.

Die Grundstücke werden nach den Kriterien der Gemeinde Walsdorf

für die Vergabe von gemeindlichen Grundstücken vergeben. Das Punktesystem ist durch soziale und ortsgebundene Kriterien gekennzeichnet.

Zulassungsvoraussetzungen:

Als Bewerber für ein gemeindliches Wohnbaugrundstück kommen nur volljährige natürliche Personen in Betracht.

Der Bewerber darf nicht Eigentümer oder Erbbauberechtigter eines mit Wohn- oder Mischbebauung bebauten oder bebaubaren Grundstückes (in der Gemeinde Walsdorf) sein.

Eine Bewerbung ist ausgeschlossen für Personen, die bereits einen Bauplatz, ein Haus oder ein Erbbaurecht von der Gemeinde Walsdorf erhalten haben.

Der Verkaufspreis beträgt 150 €/m². Darin enthalten sind der Kaufpreis für Grund und Boden, Teile der Kosten für die Ersterschließung der Bauplätze mit Straße, Kanal und Wasser jeweils im öffentlichen Straßengrund unter gleichzeitiger Ablösung der Erschließungs- und Herstellungsbeiträge (Grundstücksfläche und bis zur im Bebauungsplan festgesetzten zulässigen Geschossfläche). Der Zweckverband zur Wasserversorgung der Auracher Gruppe rechnet nach der durch ihn selbst durchgeführten Erstellung des Grundstücksanschlusses auf dem Privatgrundstück diesen noch nach tatsächlichem Aufwand ab.

Die Bewerbungsphase um einen gemeindlichen Bauplatz beginnt am 31.03.2023.

Hierzu wird der Bewerbungsbogen auf die Homepage der Gemeinde Walsdorf www.walsdorf.de eingestellt oder kann auch im Rathaus Walsdorf abgeholt werden. Die Bewerbung um einen gemeindlichen Bauplatz muss schriftlich gegenüber der Verwaltung der Gemeinde Walsdorf erfolgen. Die Auswertung erfolgt unter den Bewerbern, die bis zum 02.05.2023 ihre Bewerbung fristgemäß und vollständig eingereicht haben. Bei zwei Antragstellern wird automatisch derjenige mit der höheren erzielten Punktzahl im Auswahlverfahren berücksichtigt.

Den Bewerbungsbogen senden Sie bitte an die folgende Adresse: Gemeinde Walsdorf, Schulstraße 10, 96194 Walsdorf. Auskünfte erteilen Herr Dobruna Tel. 09549/9894917 oder Herr Schramm Tel. 09549/9894918.

Der Gemeinderat entscheidet voraussichtlich im Juni 2023 über die Reihenfolge der Bewerbungen. An den folgenden Werktagen sollten Sie zur endgültigen Bestätigung tagsüber über die angegebene Telefonnummer (vorzugsweise mobil) oder Mailadresse erreichbar sein und idealerweise Antwort erteilen.