Abb. Lage des Vorhabens (ohne Maßstab)
Abb. Planung Sondergebiet (ohne Maßstab)
Abb. externe CEF- Flächen und Ausgleichsflächen (ohne Maßstab)
- 22. Änderung Flächennutzungsplan im Bereich „Bürgersolarpark Markt Zellingen“
- Bebauungsplan mit Grünordnungsplan „Bürgersolarpark Markt Zellingen“
Der Gemeinderat des Marktes Zellingen hat in seiner Sitzung vom 12.12.2023 die Vorentwürfe des Bebauungsplanes mit Grünordnungsplan „Bürgersolarpark Markt Zellingen“ sowie die 22. Änderung des Flächennutzungsplans in diesem Bereich gebilligt und für die frühzeitige Unterrichtung der Öffentlichkeit gemäß § 3 Abs. 1 BauGB bestimmt. Parallel werden die Behörden und sonstigen Träger öffentlicher Belange gemäß § 4 Abs. 1 BauGB beteiligt.
In der Sitzung am 11.06.2024 wurden die Stellungnahmen der Behörden und sonstigen Träger öffentlicher Belange sowie der Bürger im Gemeinderat abgewogen und die Entwürfe für den Bebauungsplan mit Grünordnungsplan „Bürgersolarpark Markt Zellingen“ sowie für die 22. Änderung des Flächennutzungsplans in diesem Bereich jeweils in der Fassung vom 11.06.2024 gebilligt und die Beteiligung der Öffentlichkeit nach § 3 Abs. 2 BauGB und der Träger öffentlicher Belange nach § 4 Abs. 2 BauGB beschlossen.
Die 22. Änderung des Flächennutzungsplanes sowie die Aufstellung Bebauungsplan mit Grünordnungsplan „Bürgersolarpark Markt Zellingen“ erfolgt im Parallelverfahren.
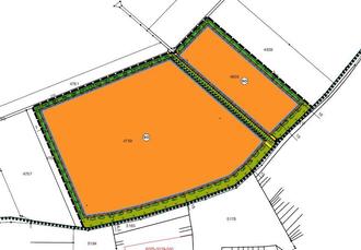
Im o. g. Geltungsbereich soll ein Sondergebiet ausgewiesen werden. Die Lage und Abgrenzung ist aus dem nachfolgenden Kartenausschnitt ersichtlich (maßstabslos).
Ziel der Planung ist die Ausweisung eines Sondergebietes für eine Freiflächen-Photovoltaikanlage innerhalb eines nach dem Erneuerbaren-Energien-Gesetzes „landwirtschaftlich benachteiligten Gebietes“, um dem Bedarf an erneuerbaren Energien zu entsprechen.
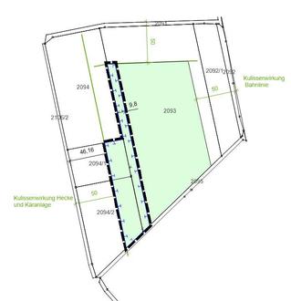
Neben den internen Ausgleichsflächen innerhalb des Geltungsbereiches sind für den Eingriff in den Lebensraum der Feldlerche durch den Bebauungsplan mit Grünordnungsplan "Bürgersolarpark Zellingen" temporäre, externe CEF-Flächen auf den Fl.Nr. 2093 (TF mit 17.023 qm), 2094/1 (TF mit 1.118 qm) und 2094/2 (TF 1.859 qm) (alle Gemarkung Markt Retzbach) mit insgesamt 20.000 qm für die Herstellung von 4 Feldlerchenreviere erforderlich.
Davon werden die Teilflächen Fl.Nr. TF 2093 (mit 2.037 qm), TF 2094/1 (mit 1.118 qm) und TF 2094/2 (mit 1.859 qm) gem. § 9. Abs. 1a BauGB (Satz 1) dem Vorhaben „Bürgersolarpark Markt Zellingen“ als externe Ausgleichsflächen zugeordnet. (siehe folgende Abbildung externe Ausgleichs- und CEF-Fläche).
Die Entwürfe zur 22. Änderung des Flächennutzungsplans, sowie für den Bebauungsplan mit Grünordnungsplan „Bürgersolarpark Markt Zellingen“ jeweils in den Fassungen vom 11.06.2023 bestehend aus Planblatt und Begründung einschließlich umweltbezogener Informationen (hier Umweltbericht und spezielle artenschutzrechtliche Prüfung) sind in der Zeit vom
26.06.2024 bis einschließlich 26.07.2024
über die Homepage der Verwaltungsgemeinschaft Zellingen
https://www.vgem-zellingen.info/seite/vg/main-spessart/0805:4739/-/Aktuelle_Bauleitplanverfahren.html sowie über das zentrale Landesportal für die Bauleitplanung Bayern unter: https://geoportal.bayern.de/bauleitplanungsportal/index.html veröffentlicht.
Der Inhalt der Bekanntmachung ist zusätzlich in das Internet eingestellt.
Die zu veröffentlichenden Unterlagen liegen alternativ in der Verwaltungsgemeinschaft Zellingen – Bauverwaltung - während der allgemeinen Öffnungszeiten
| Montag bis Freitag | 08:00 – 12:00 Uhr |
| Montag | 14:00 – 16:00 Uhr |
| Mittwoch | 14:30 – 18:30 Uhr |
öffentlich aus bzw. können nach Terminvereinbarung eingesehen werden.
Nicht fristgerechte abgegebene Stellungnahmen können bei der Beschlussfassung über den Bebauungsplan sowie die Änderung des Flächennutzungsplans und Landschaftsplans unberücksichtigt bleiben, wenn der Markt den Inhalt nicht kannte und nicht hätte kennen müssen und deren Inhalt für die Rechtmäßigkeit des Bebauungsplans sowie die Änderung des Flächennutzungsplans und Landschaftsplans nicht von Bedeutung ist (§ 3 Abs. 2 Satz 2 Halbsatz 2 BauGB i. V. m. § 4a Abs. 6 BauGB).
Folgende umweltrelevanten Informationen sind verfügbar:
| Mensch | • Bestandsbeschreibung und -bewertung sowie Auswirkungen der Planung auf Wohn- und (Nah)Erholungsfunktion |
| Fläche | • Flächennutzung und Flächeninanspruchnahme |
| Tiere und Pflanzen/ Artenschutz | • Bestandsbeschreibung und -bewertung sowie Auswirkungen der Planung auf Tier und Pflanzenarten/Biotoptypen • Betroffenheit artenschutzrechtlich relevanter Arten; Beurteilung der Verbotstatbestände des speziellen Artenschutzrechts |
| Boden | • Bestandsbeschreibung und -bewertung sowie Auswirkungen der Planung im Hinblick auf Bodenfunktionen und -potentiale |
| Wasser | • Bestandsbeschreibung und -bewertung sowie Auswirkungen der Planung im Hinblick auf Gewässer/Oberflächenwasser und Grundwasser |
| Luft/Klima | • Bestandsbeschreibung und -bewertung sowie Auswirkungen der Planung im Hinblick auf die lufthygienische und klimatische Ausgleichsfunktion • Erfordernisse des Klimaschutzes |
| Landschaftsbild | • Bestandsbeschreibung und -bewertung sowie Auswirkungen der Planung hinsichtlich der Funktionen des Landschaftsbildes |
| Kultur- und Sachgüter | • Bestandsbeschreibung und -bewertung sowie Auswirkungen der Planung hinsichtlich Boden- und Baudenkmälern |
| Sonstige/allgemeine Umweltbelange | • Wechselwirkungen unter den Schutzgütern • Vermeidung von Emissionen und sachgerechter Umgang mit Abfällen und Abwässern • Nutzung erneuerbarer Energien • Bodenschutzklausel und Umwidmungssperrklausel gem. § 1a Abs. 2 BauGB • Darstellung von Landschaftsplänen • Maßnahmen zur Vermeidung, Verminderung und zum Ausgleich nach-teiliger Umweltauswirkungen, naturschutzrechtliche Eingriffsregelung |
Die diesen Informationen zugrunde liegenden Unterlagen liegen ebenfalls aus, diese sind:
Berichte und Gutachten
| - | Umweltbericht zur 22. Änderung des Flächennutzungsplans im Bereich „Bürgersolarpark Zellingen“ in der Fassung vom 11.06.2024, Kapitel B der Begründung (Schutzgüter Mensch, Tiere und Pflanzen, Boden, Wasser, Klima und Luft, Landschaft/ Landschaftsbild, Kultur- und Sachgüter, Fläche sowie weitere umweltbezogenen Belange) |
| - | Umweltbericht zum Bebauungsplan mit Grünordnungsplan „Bürgersolarpark Zellingen“ in der Fassung vom 11.06.2024, Kapitel B der Begründung (Schutzgüter Mensch, Tiere und Pflanzen, Boden, Wasser, Klima und Luft, Landschaft/ Landschaftsbild, Kultur- und Sachgüter, Fläche sowie weitere umweltbezogenen Belange) |
| - | Fachbeitrag zur speziellen artenschutzrechtlichen Prüfung „Solarpark Retzbach“ Landkreis Main- Spessart |
Umweltbelange aus Stellungnahmen gemäß § 3 Abs. 1 und § 4 Abs. 1 BauGB:
| - | Schutzgut Mensch: |
| Mögliche Blendwirkung, |
| - | Schutzgut Boden: |
| Boden für Landwirtschaft, Erhalt Bodenfunktionen, keine Altlasten |
| - | Schutzgut Wasser: |
| Umgang mit Niederschlagswasser, Umgang mit wassergefährdenden Stoffen |
| - | Schutzgut Pflanzen, Tiere: |
| Besonderes Artenschutzrecht Feldvögel und Reptilien, Ausgleichsflächen und Kompensation, CEF-Flächen für Feldvögel, |
| - | Schutzgut Landschaft: |
| Einbindung der Anlagenflächen in das Landschaftsbild, Vorbelastung des Standortes durch Infrastruktureinrichtung |
| - | Schutzgut Fläche: |
| Flächenverbrauch |
| - | Sonstige bzw. allgemeine umweltbezogenen Belange: |
| Standorteignung, Alternativenprüfung; Nutzung und Förderung erneuerbarer Energien, Flächenverbrauch/Verlust von landwirtschaftlicher Fläche, Pflege und Entwicklung Grünland im Sondergebiet |
Datenschutz:
Die Verarbeitung personenbezogener Daten erfolgt auf der Grundlage der Art. 6 Abs. 1 Buchst. e DSGVO i.V. mit § 3 BauGB und dem BayDSG. Sofern Sie Ihre Stellungnahme ohne Absenderangaben abgeben, erhalten Sie keine Mitteilung über das Ergebnis der Prüfung. Weitere Informationen entnehmen Sie bitte dem Formblatt „Datenschutzrechtliche Informationspflicht im Bauleitplanverfahren“ das ebenfalls öffentlich ausliegt.
Nur Flächennutzungsplan:
Hinweis bzgl. des Verbandsklagerechts von Umweltverbänden:
Eine Vereinigung im Sinne des § 4 Abs. 3 S.1 Nr. 2 UmwRG (Umwelt-Rechtsbehelfsgesetzes) ist in einem Rechtsbehelfsverfahren nach § 7 Abs. 2 UmwRG gemäß § 7 Abs. 3 S. 1 UmwRG mit allen Einwendungen ausgeschlossen, die sie im Rahmen der Auslegungsfrist nicht oder nicht rechtzeitig geltend gemacht hat, aber hätte geltend machen können (§ 3 Abs. 3 BauGB).