Titel Logo
Mitteilungsblatt für die Verwaltungsgemeinschaft Zellingen
Ausgabe 32/2022
Amtliche Bekanntmachungen
Zurück zur vorigen Seite
Zurück zur ersten Seite der aktuellen Ausgabe

Bekanntmachung

Der Gemeinderat Himmelstadt hat in seiner Sitzung am 14.07.2022 eine Klarstellungssatzung zur Festlegung der Grenzen des im Zusammenhang bebauten Teilbereiches der Flurlage „Fuhrgärtlein“ beschlossen.

Diese Satzung wird hiermit amtlich bekannt gemacht:

Satzung

zur Festlegung der Grenzen des im Zusammenhang bebauten Teilbereiches der Flurlage „Fuhrgärtlein“ im Gemeindegebiet Himmelstadt gemäß § 34 Abs. 4 Satz 1 Nr. 1 BauGB

(Klarstellungssatzung)

Auf Grundlage des § 34 Abs. 4 Nr. 1 Baugesetzbuch (BauGB) in der derzeit gültigen Fassung hat der Gemeinderat der Gemeinde Himmelstadt in seiner Sitzung am 14.07.2022 folgende Satzung beschlossen:

§ 1 Umgriff der Klarstellung

Die Grenzen der zusammenhängenden Bebauung im Gemarkungsbereich Himmelstadt, Teilbereich Flurlage „Fuhrgärtlein“ werden gemäß dieser Klarstellungssatzung festgelegt und damit dem Innenbereich zugeordnet.

§ 2 Räumlicher Geltungsbereich

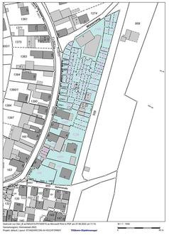
Die Grenzen des mit dieser Satzung deklarierten Innenbereichs sind im Lageplan M 1:1000 dargestellt. Der Lageplan ist dieser Satzung im Anhang beigefügt und Bestandteil dieser Satzung.

Der räumliche Geltungsbereich durch folgende Straßen umgrenzt:

Im Norden: durch den Wiesenweg

Im Süden: durch die Gartenstraße

Im Westen: durch die Hauptstraße

Im Osten: durch die Mainstraße.

§ 3 Inkrafttreten

Diese Satzung tritt mit der ortsüblichen Bekanntmachung gemäß § 10 Abs. 3 BauGB in Kraft.

Himmelstadt, den 02.08.2022
gez.
Herbert Hemmelmann
Erster Bürgermeister

Anlage 1 zur Klarstellungssatzung der Gemeinde Himmelstadt für den Bereich der Flurlage „Fuhrgärtlein“:

Anlage 2 zur Klarstellungssatzung der Gemeinde Himmelstadt für den Bereich der Flurlage „Fuhrgärtlein“:

BEGRÜNDUNG

1. Anlass zum Erlass der Satzung

Gemäß § 34 Abs. 4 Satz 1 Nr. 1 BauGB in der derzeit geltenden Fassung kann die Gemeinde durch Satzung die Grenzen für im Zusammenhang bebaute Ortsteile festlegen. (sog. Klarstellungssatzung).

Die Satzung wirkt insoweit klarstellend, dass festgelegt wird, die Grenzen des vorhandenen, im Zusammenhang bebauten Ortsteils festzulegen und damit eventuell vorhandene Unklarheiten bei der Abgrenzung zwischen Innenbereich und Außenbereich zu beseitigen.

Um dies klarzustellen, werden ausschließlich Grundstücke mit Innenbereichsqualität in der Satzung als Innenbereich gemäß § 34 Abs. 1 Nr. 1 BauGB erfasst.

Folge hiervon ist, dass sich die bauplanungsrechtliche Zulässigkeit von Vorhaben im Geltungsbereich der Klarstellungssatzung nach § 34 BauGB beurteilt.

Die Satzung kann aufgrund ihres lediglich deklaratorischen Charakters auch nur auf einen Teilbereich eines Ortsteils, nicht jedoch auf Gebiete mit Bebauungsplänen im Sinne des § 30 Abs. 1 und 2 BauGB Beziehen.

Für das Gebiet, deren Grundstücke überwiegend der Flurlage „Fuhrgärtlein“ zuzuordnen ist und das begrenzt wird durch den Wiesenweg im Norden, die Gartenstraße im Süden sowie die Hauptstraße im Westen und der Mainstraße im Osten soll deshalb eine Klarstellungssatzung erlassen werden, um die in diesem Gebiet häufig auftretenden Abgrenzungsfragen zwischen Innen- und Außenbereich klarstellend und für jedermann auf einen Blick ersichtlich zu beantworten.

Im Wesentlichen resultieren die Abgrenzungsfragen aus den bereits vorhandenen Bebauungen im Norden und Süden des Teilbereiches.

Die Fläche ist im rechtsverbindlichen Flächennutzungsplan der Gemeinde Himmelstadt als Mischgebiet dargestellt, was ein Indiz dafür ist, dass seitens der Gemeinde Himmelstadt hier auch der Lückenschluss gewünscht ist und Bebauung ermöglicht werden soll.

Durch diese rein deklaratorische Klarstellung besteht kein Rechtsanspruch auf Erschließung einzelner, sich im Geltungsbereich der Satzung befindlichen Grundstücke.

Auch im Hinblick auf einen sparsamen Flächenverbrauch soll nun durch die Klarstellung die Grenzen zwischen Innen- und Außenbereich definiert werden.

  1. Räumlicher Geltungsbereich

Der räumliche Geltungsbereich der Klarstellungssatzung wird durch folgende Straßen umgrenzt:

Im Norden: durch den Wiesenweg

Im Süden: durch die Gartenstraße

Im Westen: durch die Hauptstraße

Im Osten: durch die Mainstraße.

Er umfasst im Einzelnen folgende Grundstücke der Gemarkung Himmelstadt: Fl.Nr. 154,157,157/1, 158, 160, 161, 955/3, 1140, 1141, 1142, 1143, 1144, 1144/2, 1144/3, 1145, 1160, 1163, 1164, 1165, 1166, 1167, 1168, 1169, 1170, 1171, 1177, 1178, 1179, 1180, 1181, 1182, 1183, 1184, 1185, 1186, 1187, 1188, 1189, 1190, 1191, 1192, 1193, 1194, 1195, 1196, 1198, 1199, 1200, 1201, 1202, 1203, 1204, 1205, 1206, 1207, 1208, 1209, 1212, 1213, 1214, 1217, 1218, 1219, 1220, 1221, 1222, 1223, 1224, 1225, 1225/2, 1226, 1227, 1230, 1231, 1234, 1235, 1236, 1237/2, 1239, 1245, 1252, 1253, 1254, 1259, 1260, 1261, 1262, 1263, 1264, 1265, 1266, 1267, 1268, 1269, 1270.

Der Geltungsbereich ist im Lageplan, der als Anlage 1 zur Satzung Bestandteil der Satzung ist, durch Farbgebung optisch dargestellt.

  1. Verfahren

Das Verfahren zum Erlass von Klarstellungssatzungen nach § 34 Abs. 4 Satz 1 Nr. 1 BauGB richtet sich nach § 34 Abs. 6 BauGB.

Für den Erlass einer Klarstellungssatzung, die nicht mit Satzungen nach § 34 Abs. 4 Satz Nrn. 2 oder 3 BauGB verbunden werden, sind keine städtebaurechtlichen Verfahrensvorschriften vorgesehen, mit Ausnahme der Vorschrift zur Bekanntmachung der Satzung (§ 34 Abs. 6 Satz 2 BauGB), wonach für die Bekanntmachung § 10 Abs. 3 BauGB Anwendung findet.

Für den Erlass einer Klarstellungssatzung sind damit keine verfahrensrechtlichen Anforderungen wie z.B. Beteiligung der Öffentlichkeit oder Beteiligung der Behörden und sonstiger Träger öffentlicher Belange zu beachten.

Da kein planerischer Gestaltungsspielraum, was die Abgrenzung Innenbereich/Außenbereich angeht, gegeben ist, kann auch das Abwägungsgebot (§ 1 Abs. 7 BauGB) nicht zur Anwendung kommen.

Der Erlass der Satzung richtet sich formal neben der Bekanntmachungsvorschrift ausschließlich nach den Bestimmungen der Gemeindeordnung für den Freistaat Bayern (GO).

Eine Begründung zur Klarstellungssatzung ist formal nicht erforderlich, wird jedoch aus Gründen der Nachvollziehbarkeit und Transparenz der Satzung als Anlage 2 beigefügt.

Die Begründung in der vorliegenden Fassung lag dem Satzungsbeschluss vom 14.07.2022 zugrunde.