Titel Logo
Weißenhorner Stadtanzeiger
Ausgabe 13/2025
Amtliche Bekanntmachungen
Zurück zur vorigen Seite
Zurück zur ersten Seite der aktuellen Ausgabe

Amtliche Bekanntmachungen

1.1.

Bekanntgaben - Anfrage Stadtrat Dr. Bischof vom 13.01.2025 -

Querungshilfe an der Reichenbacher Straße beim Waldfriedhof

Bürgermeister Dr. Fendt gab zu der Anfrage von Stadtrat Dr. Bischof aus der Sitzung des Bau- und Werksausschusses vom 13.01.2025 bezüglich der Möglichkeit zur Schaffung einer Querungshilfe in der Reichenbacher Straße beim Waldfriedhof aus Richtung Oberreichenbach kommend, die Stellungnahme des Landratsamtes bekannt. Vorgelagerte Geschwindigkeitsbegrenzungen dürfen gemäß Straßenverkehrsordnung nur angeordnet werden, wenn die Ortstafel nicht rechtzeitig erkennbar ist oder eine konkrete Gefährdung der Verkehrssicherheit besteht. Das Landratsamt kommt zum Ergebnis, dass aus ihrer Sicht die Voraussetzungen dafür nicht vorliegen. Es gab einmal zwei Unfälle an besagter Stelle, die aber durch falsches Abbiegen entstanden seien, daher sehe das Landratsamt hier keine Notwendigkeit.

***********************

2.

Fachbereich 4: Kreisverkehrsplatz Illerberger Straße Ortseingang Weißenhorn

Sachverhalt:

Der Kreisverkehrsplatz am Ortseingang in Weißenhorn wurde hinsichtlich seiner Leistungsfähigkeit neu beurteilt. Entsprechend einer auf Verkehrszahlen aus dem Jahre 2015 basierenden gutachtlichen Stellungnahme war ursprünglich davon auszugehen, dass zur Beibehaltung eines Kreisverkehrsplatzes mit ausreichender Leistungsfähigkeit zwei Bypässe (von der Herzog-Georg-Straße (St 2019) zur westlichen Illerberger Straße (NU 14) und von der westlichen Illerberger Straße (NU 14) zur Südumfahrung (St 2019)) erforderlich sind. Alternativ war auch eine lichtsignalgesteuerte Kreuzung als ausreichend leistungsfähig beurteilt.

Um die Planungen mit aktuellen Verkehrszahlen weiterentwickeln zu können, wurde Anfang 2024 durch ein Fachbüro eine Verkehrserhebung durchgeführt und ausgewertet. Anschließend erfolgte mit den neuen Verkehrszahlen eine erneute verkehrliche Beurteilung der aktuellen Varianten mit einem Prognosehorizont bis zum Jahr 2040.

Die ausreichend leistungsfähigen Varianten (Kreuzung mit Lichtsignalanlage und Kreisverkehrsplatz mit 3 Bypässen) werden derzeit im Rahmen einer Voruntersuchung ausgearbeitet, um in einer Gesamtabwägung, in der neben den Kreuzungsbeteiligten Landkreis Neu-Ulm / Stadt Weißenhorn insbesondere auch die Verkehrsbehörde und die Polizei vertieft eingebunden wird, eine Vorzugsvariante entwickeln zu können.

Dabei wird auch die Möglichkeit, ob ggf. eine stufenweiße Realisierung der Kreisverkehrsplatzlösung mit 3 Bypässen möglich ist, untersucht.

Die beiden Varianten werden vom Staatlichen Bauamt Krumbach dargestellt.

Variante 1 Kreisverkehrsplatz mit Bypässen:

Variante 2 Kreuzung mit Signalanlage:

Diskussion:

Bürgermeister Dr. Fendt begrüßte Herrn Greineder vom Straßenbauamt ganz herzlich und dankte ihm dafür, dass er sich die Zeit nehme, den derzeitigen Planungsstand darzustellen und aufgekommene Fragen zu klären. Der Kreisverkehrsplatz Illerberger Straße sei sowohl ein Thema, das die Bürgerschaft und den Bauausschuss sehr interessiere. Er begrüßte auch Frau Langer, die Planerin, die sich mit dem Projekt beschäftigt.

Herr Greineder begrüßte alle Anwesenden und sagte, dass er heute gekommen sei, um den Planungsstand zu zeigen. Eine Entscheidung über eine Variante werde es heute aber nicht geben.

Herr Greineder stellte den derzeitigen Planungsstand anhand einer Präsentation vor: Der Kreisverkehr sei ein Hauptknotenpunkt in der Region, da an der Stelle drei Staatsstraßenäste zusammenkommen. Die Staatsstraße 2019, 2022 und der Autobahnzubringer die Kreisstraße NU 14, mit entsprechend hohem Verkehr, der dort abgewickelt werde. In den werktäglichen Spitzenstunden komme es regelmäßig zu Überlastungen des jetzigen Kreisverkehrs. Das Straßenbauamt habe die Situation von einem Verkehrsgutachter untersuchen lassen mit dem Ergebnis, dass man den Kreisel nur mit einer lichtsignalgesteuerten Kreuzung, so wie man es aus den großen Städten kenne, leistungsfähig ertüchtigen werde oder mit einem Kreisverkehrsplatz mit drei Bypässen. Nur so könne man eine nachhaltig ausreichende Leistungsfähigkeit gewährleisten. Grundsätzlich wären vom Platzbedarf beide Varianten durchaus möglich.

Bei der Variante der lichtsignalgesteuerten Kreuzung werde man keine einspurigen Abbiegespuren mehr haben, sondern zweispurige Abbiegungen. Von der Südumfahrung kommend bräuchte man zwei Abbiegespuren mit ca. 45 m Länge, von der Herzog-Georg-Straße hinaus zwei Rechtsabbiegespuren und d. h. auch auf der Kreisstraße Richtung Autobahn müssten erst einmal zwei Fahrspuren wegführen, die man dann nach einer gewissen Zeit wieder zusammenführe und verflechte. Es wären auch 90 m lange Abbiegespuren in der Südumfahrung möglich, aber wegen dem Platzbedarf und den kürzeren Räumzeiten mit zwei Abbiegespuren, biete sich die 45 m lange doppelte Linksabbiegespur an. In der Herzog-Georg-Straße sei in der Morgenspitze ein 200 m langer Rückstau prognostiziert und da sollte man versuchen, diesen in einer doppelten Rechtsabbiegespur zu verkürzen. Das gelinge wegen der Supermarktzufahrten aber nicht ganz. Um die Zufahrten zu den Verbrauchermärkten in der Herzog-Georg-Straße nicht zu blockieren, müsste man tatsächlich mit Vorsignalen arbeiten, sprich mit einem Rotlicht, damit die Fahrzeuge aus den Supermarktparkplätzen auch herausfahren können. In der äußeren Illerberger Straße benötige man zwei Fahrspuren Richtung der Autobahn und das würde nach der Einmündung des Emershofer Weges bis dorthin erforderlich sein. Die Radfahrer und der Fußgängerverkehr wären durch ganz klassische Fußgänger-Radfahrerfurten mit einer Signalanlage gesichert, welche höhengleich wären.

Der Kreisverkehr mit den drei Bypässen sei bereits etwas weiter ausgeplant als die Kreuzung. Die Bypässe seien von der Südumfahrung in die innere Illerberger Straße, von der Herzog-Georg-Straße in die äußere Illerberger Straße und von der Autobahn kommend in die Südumfahrung herein positioniert. Die Ausfädelspuren im Kreisverkehr seien so bemessen, dass diese von den prognostizierten Rückstaulängen nicht überstaut werden, so dass der Verkehr in der Regel in die Bypässe abfließen könne. Der Gutachter habe bestätigt, dass der Rad- und Fußgängerverkehr höhengleich auch über die Bypässe geführt werden müsste – dies gefalle dem Straßenbauamt nicht so gut.

Zu den weiteren Planungen sagte er, man werde die beiden Knotenpunkte noch etwas genauer ausplanen und erneut mit dem Gutachter abstimmen. Sie haben heute die Situation vor Ort eine Viertelstunde beobachtet und werden noch einmal eine Zählung beantragen, da der Eindruck entstand, dass der Verkehr vielleicht doch ein bisschen anders sei, als bei der ersten Zählung herausgekommen sei. Um richtig zu liegen, müsse man das abstimmen. Danach komme eine Ausarbeitung der erforderlichen Planunterlagen. Im Anschluss möchten wir die Voruntersuchung abschließen, eine Kostenberechnung für beide Varianten aufstellen, dieses unter Einbindung der Kreuzungsbeteiligten. (Entsprechend dem Bayerischen Straßen- und Wegegesetz der Landkreis Neu-Ulm für die äußere Illerberger Straße und die Stadt Weißenhorn mit dem Emershofer Weg - dieser gehöre zu diesem Knotenpunkt dazu - und das Straßenbauamt als Freistaat Bayern). Das Ganze wollen sie auch intensiv mit der zuständigen Unfallkommission bewerten. Im Anschluss komme es zur Abwägung unter allen relevanten Entscheidungskriterien zur Ermittlung einer Vorzugsvariante. Sobald die Vorzugsvariante feststehe und deren Kosten ermittelt sei, erfolge eine Vorstellung im Ausschuss für Wirtschaft- und Verkehr, weil der Landkreis auch ungefähr 25 % der Kosten tragen werde, sowie eine Vorstellung im Stadtrat von Weißenhorn. Ggfs. geben wir auch Zwischeninformationen. Die Kosten für den Kreisverkehr werden entsprechend der Breiten der Straßenäste unter den Kreuzungsbeteiligten aufgeteilt, das stehe so im Bayerischen Straßen- und Wegegesetz. Es sei davon auszugehen, dass die Stadt Weißenhorn unter die Bagatellgrenze falle, da sicherlich auf den Emershofer Weg weniger als 20 % Verkehr als auf den anderen Straßenästen entfalle. Der Landkreis werde ein Viertel und der Freistaat Bayern drei Dreiviertel der Kosten von diesem Knotenpunktausbau tragen.

Bürgermeister Dr. Fendt bedankte sich ganz herzlich für die sehr sachliche Darstellung des Für und Wider. Beide Varianten haben etwas für sich. Als Information sagte er, man habe von Seiten der Verwaltung immer betont, dass man die Kreisverkehrslösung bevorzugen würde, da dies auch aus der Bürgerschaft so gewollt sei.

Stadtrat Niebling erklärte, dass er die Planung bereits vom Kreistag her kenne und seine Fraktion und er sich freuen, dass auch die Verwirklichung einer Kreiselvariante mit drei Bypässen noch eine Chance bekomme und nicht nur der ursprünglich absolute Favorit einer Signalampelanlage weiterverfolgt werde. Es werden Untersuchungen der Planung stattfinden, auch mit einer Visualisierung, damit man sehe, welche Leistungsfähigkeit die unterschiedlichen Varianten haben. Dabei sei die Sicherheit für die Verkehrsteilnehmer ein ganz wichtiger Aspekt vor allem für die Autofahrer, um Unfälle wie in der Illererger Straße bei der Einfahrt in das Industriegebiet Eschach aufgrund der Nichtbeachtung der Vorfahrtsregelung eines Lkw-Fahrers an der Ampelsignalanlage zu vermeiden. Das wäre seiner Meinung nach bei einem Kreisel nicht passiert. Bei einem Kreisel müsse man aber schon auch die Sicherheitsaspekte berücksichtigen. Jetzt müsse man abwarten, was bei den Planungen und Analysen noch herauskomme.

Stadtrat Fliegel ging auf den Fuß- und Radverkehr ein, der bei der Variante mit dem Kreisverkehr das Nachsehen habe. Es sei mehr als gefährlich, eigentlich nicht tragbar und nicht zukunftsträchtig, wenn man den Radverkehr über die Bypässe ableiten müsse. Bei Betrachtung aus der Sichtweise des Radfahrers und Fußgängers bleibe nur die Ampelanlage, die ihn sicher über die Straßen führe und nicht dem ziemlich starken Autoverkehr, untergeordnet werde. Der Kreisverkehr sei daher keine zu bevorzugende Variante, weil dabei der Fuß- und der Radverkehr wieder im Hintertreffen sei.

Der folgende Wortbeitrag wurde auf Antrag von Stadtrat Dr. Bischof in das Protokoll aufgenommen. Stadtrat Dr. Bischof sagte, dass es seine Fraktion freue, dass hier Überlegungen angestellt werden, weil es natürlich ein kleines Ärgernis sei wenn es zu langen Rückstaus komme. Er müsse allerdings auf der anderen Seite auch sagen, dass, wenn man überlegt, dass eine Woche 7 mal 24 Stunden, also 168 Stunden habe, zu einem ganz großen Teil der Zeit dieser vorhandene Kreisverkehr aber sehr gut funktioniere, deswegen wollen ihn die Weißenhorner Bürger auch gerne behalten. Das wurde dem Straßenbauamt bereits schon so mitgegeben und durch Bürgermeister Dr. Fendt vorhin erneut darauf hingewiesen. Man müsse sich natürlich Gedanken machen, ob es bessere Lösungen gäbe. Er denke, dass beide hier vorgestellten Varianten, das sei auch bereits angesprochen worden, Schwierigkeiten und Probleme haben. Bei der zuerst vorgestellten Ampelkreuzung wurde von Herrn Greineder erläutert, dass es bis zu fünf Fahrspuren aus einer Richtung geben werde und damit natürlich auch einen sehr großen Flächenverbrauch. Die ganze Anmutung, dies könne man auch in Senden an der Inhofer-Kreuzung besichtigen, sei realistisch, so ähnlich würde das dann in Weißenhorn auch ausschauen. Das sei vom Aussehen, vom Entree in die Stadt, aber auch von der Ökologie und vom Flächenverbrauch her, schon ein Problem. Wie Herr Kollege Niebling auch schon darauf hingewiesen habe, müsse man einfach sehen, dass die Autos dort geradeaus durchfahren können, d. h. sie fahren im Zweifelsfall auch mit einer hohen Geschwindigkeit durch. Wenn ich grün habe, fahre ich mit 50 km/h durch und da könne es auch zu schweren Unfällen kommen. An einem Kreisverkehr gebe es natürlich auch manchmal Unfälle, aber das seien dann im Allgemeinen nur Blechschäden, wo kaum einer zu Schaden komme. Dann habe auf der anderen Seite der Herr Kollege Fliegel auch darauf hingewiesen, was seiner Fraktion ebenfalls aufgefallen sei, dass man hier als Radfahrer oder auch als Fußgänger enorm viele Spuren überqueren müsse. Nehmen wir einmal an, jemand komme aus Richtung Emershofen und möchte Richtung Illerberg. Eigentlich wolle er nur 90 Grad nach links abbiegen, könne er aber nicht, weil da fünf Fahrspuren mit zwei abfließenden Fahrspuren seien. Da könne man weder einen Fußgänger noch einen Radfahrer drüber schicken. Also müsse dieser 270 Grad machen und dabei zehn Spuren überqueren. Als Fahrradfahrer müsse man zehn Mal anhalten, schauen ob was komme und dann schnell überqueren, weil auf einem Bypass auch relativ flott gefahren werde. Da habe man als Autofahrer keine Anhaltepflicht und auch ein gewisses Tempo drauf. Insofern sei das dann für die Radfahrer, das habe der Kollege Fliegel auch schon angesprochen, wirklich ein Problem und auch hier haben wir einen großen Flächenverbrauch. Der Kreisverkehr, den wir bisher haben, sei nur noch ein kleiner Kreisverkehr in der Mitte, außen herum seien dann große Bypässe. Deswegen habe er, als das Straßenbauamt das Thema in der Ausschusssitzung im Landkreis vorgestellt habe, in dem Ausschuss sei er nicht Mitglied, damals schon einen Kollegen, den Bürgermeister Herrn Eisenkolb aus Elchingen gebeten, sie doch einmal danach zu fragen ob hier nicht eine andere Variante möglich wäre, nämlich die mit sogenannten Dosier- oder auch Pförtnerampeln. Er habe vor ca. einem Jahr in der Zeitung gelesen, dass sie für den Kreisverkehrsplatz in Illertissen auch so etwas in Erwägung ziehen. Er glaube, der Umbau solle dieses Jahr stattfinden. Er möchte noch kurz erläutern, was damit gemeint sei. An den Zufahrten zum Kreisverkehr werden Ampeln aufgestellt, die nur gelb und rot haben und wenn sich eine Seite sehr lange staue, dann werde eine andere Zufahrt für kurze Zeit abgeriegelt, indem da zuerst gelb und dann rot komme und dann bestehe die Möglichkeit, wieder reinzufahren, wo es einen größeren Stau gegeben habe. So eine Ampelkreuzung gebe es in Österreich im Vorarlberg, wenn schon jemand von der Autobahnausfahrt Dornbirn-Nord in den Bregenzer Wald gefahren sei, dann sei er über so einen Kreisverkehr mit solchen Dosierampeln gefahren. Er habe sich diesen angeschaut und auch Fotos gemacht. Die Rotphase sei immer nur wenige Sekunden, ca. zehn bis zwanzig Sekunden und das würde schon genügen, dass die anderen wieder relativ flott am Stück einfahren können. Deswegen wäre seine Frage an Herrn Greineder, ob er sich so etwas auch für Weißenhorn vorstellen könne und hier könnte man das sogar einmal ausprobieren. Dazu seien keine Umbauten in dem Sinne nötig, sondern einfach Baustellenampeln aufstellen, die so etwas einmal simulieren. Vielleicht könne man das auch entsprechend mit Modellen simulieren, aber mit seinem Vorschlag würde man das sogar in der Praxis überprüfen können. Deswegen wäre sein Vorschlag eine pragmatische Alternative, die keine Umbauten erfordere und die weiterhin ermögliche, dass Radfahrer und Fußgänger, wenn sie über die ganze Straße wollen, nur zwei Fahrspuren überqueren müssen und nicht vier, so dass sie weiterhin sehr gut um diesen Kreisverkehr herumkommen würden.

Herr Greineder vom Straßenbauamt sagte, er danke für den Vorschlag. Herr Eisenkolb habe es ihm gesagt. Er möchte sich die besagte Stelle in Vorarlberg selbst anschauen und fahre bald dorthin. Man behalte den Vorschlag im Hinterkopf und werden uns irgendwann im Frühjahr mit einem Gutachter zusammensetzen und noch einmal ein Gutachten in Auftrag geben. Er werde diesen Vorschlag mit Dornbirn dem Gutachter mitteilen, damit dieser sich darüber Gedanken machen könne. Das sei sehr wichtig. Sie müssen auch immer den Prognosefall überlegen. Wir haben die allgemeinen Verkehrszunahmen, die den Langzeitprognosen des Bundes zugrunde liegen und diese besagen etwa 5 % mehr Verkehr bis zum Jahr 2040 als man jetzt habe. Er sagte zu, den Vorschlag mitzunehmen und abzuarbeiten. In Illertissen sei es etwas anders gelagert, weil man da das Problem mit dem Rückstau auf die Autobahn habe, der hochgefährlich sei und daher priorisiert abgebaut werden müsse.

Stadtrat Richter sagte, die Entwurfsplanungen beider Varianten seien gewaltige Lösungen. Eine gewaltige Kreuzung, die die bekannte Dimension, die man in Weißenhorn und Umgebung habe, deutlich übersteige. Bei der Kreuzung mit Signalanlage falle ihm auch keine im ganzen Landkreis, mit einer solchen Dimension ein. Selbst die genannte Inhofer-Kreuzung in Senden sei etwas schlanker aufgebaut. Anhand dieser Situation dieser Entwurfsplanungen, könne er sich jetzt nicht entscheiden, weil beide Varianten sowohl ihre Vor- als auch ihre Nachteile haben. Die Bevölkerung gehe wohl davon aus, dass ein Kreisverkehrsplatz weniger Platz benötige. Anhand der vorgestellten Planung, sehe das aber nicht mehr ganz so aus, aufgrund der drei Bypässe, die viel Platz benötigen, damit die Radien eingehalten bleiben. Auch tragen die Ein- und Ausfädelspuren dazu bei, dass ein gewaltiges Projekt entstehe. Er bitte das Straßenbauamt beide Varianten vertieft weiterzuverfolgen. Es werde auf jeden Fall eine gewaltige Kreuzung werden, die herausfordernd für alle Verkehrsteilnehmer sein werde.

Bürgermeister Dr. Fendt antwortete, dass man das auch ganz klar der Öffentlichkeit sagen müsse. Man denke an einen Kreisel und denke an den bisherigen. Der neue Kreisel werde aber ganz anders gestaltet sein. Darum finde er, dass man die Idee von Herrn Dr. Bischof, ob sie funktioniere oder nicht, auf jeden Fall in die Überlegungen einbeziehe, aber auch die Finanzsituation des Landkreises dazu sehe. Gute Ideen müsse man wirklich prüfen und schauen, ob es funktioniere und wir weiterhin unseren bisherigen Kreisel hätten.

Stadtrat Ulrich Hoffmann sagte, er zweifle etwas aufgrund der Riesendimension dieses Umbaus, ob dieser wirklich gerechtfertigt sei, weil Menschen manchmal drei bis fünf Minuten am Vormittag oder am Abend im Stau verbringen. Der Vorschlag, den Dr. Bischof mit einem solchen Test ohne Umbau gemacht habe, sei in Ordnung, aber ansonsten würde er von der Relation der angedachten Baumaßnahmen für die eine oder andere Variante und dem, für welche Zeiten man dies wirklich benötige, tatsächlich für überdimensioniert halten. Der momentane Kreisel sei so in Ordnung und man solle sich die Millionen für den Umbau sparen.

Bürgermeister Dr. Fendt erklärte, dass man bei der Bypassregelung auch schon in Gesprächen sei, dass man nicht alle drei umsetzen müsse. Der Hauptrückstau komme aus Richtung der Autobahn. Man könne zunächst auch nur einen Bypass umsetzen, wenn der Vorschlag von Herrn Dr. Bischof nicht funktioniere.

Stadtrat Jüstel stellte folgende Fragen:

Müsse eine neue Brücke über die Roth gebaut werden und wäre diese dann fünfspurig? Auf dem Plan sehe das so aus.

Er sehe eine Kreisverkehrslösung sehr problematisch, weil man für die Feuerwehr eine Notfallspur brauche. Diese sei in diesen Überlegungen der Planung noch gar nicht mit eingeflossen. Wie kommen die Feuerwehrmänner zum Feuerwehrhaus. Das gelbe Dreieck auf den Privatautos zeige zwar, dass sie im Einsatz seien, aber das sei noch keine rechtliche Sicherheit, dass sie da wirklich durchkommen, z.B. bei einer Sperrung. Seine Überlegungen dazu seien, den Radweg bei einer Kreisverkehrslösung so auszubauen, dass man diesen dann auch als Notfallspur nutzen könne. Man mache eine Notfallspur über Dauerzeichen. Diese Gedanken sollten in die Planungen mit einfließen.

Die Fahrradführung beim Kreisverkehr gefalle ihm auch gar nicht. Er sei Fahrradbeauftragter im Stadtrat und daher sei er der Meinung, dass alle Verkehrsteilnehmer gleichwertig behandelt und werden müssen, der Fußgänger, der Radfahrer, der Autofahrer und der Schwerlastverkehr. Daher appelliere er, dass man nicht nur die Situation für die Autofahrer betrachte, sondern auch für die Allgemeinheit und dass hier eine Sicherheit für alle Verkehrsteilnehmer geschaffen werde. Deswegen fragte er auch danach, ob die Einfahrt zum Rewe-Markt ebenfalls neu konzipiert werde, die seiner Meinung nach bisher nicht ganz normgerecht gestaltet war.

Er halte auch den Bypass von der Südtangente in Richtung Stadtmitte für nicht notwendig. Die Abbiegespur nördlich, also Richtung Bahnhof, scheine ihm viel wichtiger. Umgekehrt natürlich auch vom Bahnhof Richtung Autobahn und von der Autobahn Richtung Südtangente Richtung Krumbach. Da hätte man auch eine Ersparnis der Fläche. Daher sei er für eine Ampelkreuzung, aber auch, weil ein Fahrradfahrer zehn oder zwölf Spuren überqueren müsse. So würde eine Gefahrenstelle erst geschaffen durch so einen großen Kreisverkehr, aber auch, wenn man zweispurig abbiege. Es gebe bei allem ein Für und Wider. Man müsse sich überlegen, wo die Schwerpunkte liegen, wo habe ich den Flächenverbrauch und wo die Verkehrssicherheit. Aus diesen Gründen appelliere er, mit einer Ampellösung klare Verhältnisse für den Radfahrer zu schaffen, die in alle vier Richtungen überqueren können und dabei auch durch eine Ampelanlage gesichert seien. Eine Ampelkreuzung sei für die Zukunft die richtige Maßnahme, weil sie kompakt sei, auch wenn sie große Ausmaße habe. Der Schwerpunkt sei für ihn aber die Notfallspur für die Feuerwehr, die sollte hier in der Planung doch berücksichtigt werden.

Bürgermeister Dr. Fendt sagte, dass der Sinn und Zweck von heute sei, dass man den Planungsstand vorgestellt bekomme und dazu von den Bauausschussmitgliedern ein gewisser Input komme, dieser gesammelt werde und in die nächsten Planungen mit einbezogen werde. Bei der nächsten Vorstellung wisse man, was man wirklich umsetzen werde.

Stadtrat Simmnacher sagte, wenn man die Planungen betrachte, werde man nicht vor Ende 2026/Anfang 2027 anfangen zum Bauen. Er bitte darum, dass man noch einmal Rücksprache mit unserer Feuerwehr, dem Kommandanten Herrn Thuro, über die komplette Planung halte, wie das für die Einsatzkräfte während der Bauphase und dann auch später nach der Fertigstellung, vor allem bei der Umsetzung, wie die Einsatzkräfte in den gewissen geforderten Fristen zum Feuerwehrgerätehaus kommen, geregelt sei.

Herr Greineder sagte, sie werden die Feuerwehr immer einbinden. Eine Einbindung in eine signalisierte Kreuzung werde sicherlich dann so aussehen, dass es dann Vorrangschaltungen für die Feuerwehr gebe, insbesondere beim Ausrücken. Dies kenne man schon aus größeren Städten. Beim Einrücken müsse man noch Überlegungen anstellen. Die gleiche Diskussion habe man auch in Illertissen. Solche Dinge diskutieren wir mit den Feuerwehren. Gerade wenn diese so nahe an den Knotenpunkten seien, werden diese immer integriert. Das sei eigentlich selbstverständlich.

Stadtrat Dr. Bischof sagte, da die Stadt voraussichtlich keine Kostenbeteiligung haben werde, ob diese dann Einfluss auf diese Planungen nehmen könne oder ob das letztlich vom Landkreis und vom Straßenbauamt, als Kostenbeteiligte, selbständig entschieden werde. Er wollte wissen, welche Möglichkeiten wir als Stadt haben, uns diesbezüglich einzubringen.

Herr Greineder stellte dazu klar, dass sie beabsichtigen, eine tatsächlich objektive Entscheidung in ihre Variantenabwägung zu bringen und diese ganzen Variantenabwägungen unterliegen natürlich auch ihrem Haushaltsrecht, wie die Stadt auch dem Haushaltsrecht unterliege. Man unterliege der Wirtschaftlichkeit und Sparsamkeit und da werden im Endeffekt die Kosten natürlich durchaus ein gewichtiger Faktor sein. Er möchte jetzt keine Prognose abgeben, wo die Kosten für eine signalgesteuerte Kreuzung oder des Kreisverkehrs hinlaufen. Aber das werde natürlich ein gewichtiger Faktor sein. Es gebe aber auch viele weiche Faktoren, z.B. werde auch das Stadtbild mit einem gewissen geringen Faktor mit einfließen, auch der Naturschutz und noch viel mehr. Man müsse dabei ganz viele Belange werten. Er gehe davon aus, dass man eine klare Entscheidung in der Variantenabwägung bekomme.

Stadtrat Dr. Bischof fragte, ob es richtig sei, wenn sich das Straßenbauamt entschieden habe, dass wir es nicht mehr ändern können oder ob wir dann noch Einfluss haben.

Herr Greineder sagte, sie geben Finanzmittel für einen Knotenpunkt aus, der in Ordnung sei und funktioniere. Die gewählte Variante werde verkehrstechnisch in Ordnung sein und der koste einen Betrag x. Im Gegenzug habe man einen anderen Knotenpunkt, der vielleicht städtebaulich schön sei, der aber das eineinhalbfache koste. Dann könne er nicht hergehen und sagen, er verantworte das, dass der Freistaat Bayern das eineinhalbfache zahle.

Stadttrat Dr. Bischof hakte erneut nach und fragte ganz konkret, wenn wir z.B. sagen, wir wollen, dass es so bleibe wie es ist, können wir das erreichen oder sagen sie nein, es wird dann einfach so gemacht, wie es abgewogen wurde.

H. Greineder sagte, in der Bundesrepublik sei es so, dass sie sich an die grundsätzlichen Richtlinien halten müssen, das sei eine Richtlinie für die Netzgestaltung und da werde eine Qualität des Straßenverkehrs definiert in verschiedene Stufen eingeteilt. Die Leistungsfähigkeit, auch eine gewisse Reisegeschwindigkeit, habe man in der ganzen Republik vorgegeben. Das sei in den anderen europäischen Ländern sehr ähnlich. Es heiße, von A nach B müsse man soundso schnell kommen. Wenn man jetzt einen Knotenpunkt habe, der einen Stau verursache, dann könne man diese Verkehrsqualität nicht erreichen und das sei einfach Staatsziel und für dieses Staatsziel sind sie da, dass sie die Infrastruktur so ertüchtigen, dass es so funktioniere. Der Freistaat habe ein hohes Interesse daran, dass seine Staatsstraßen funktionieren.

Alle Stadträte, die sich zu Wort gemeldet haben, dankten Herrn Greineder für seine Vorstellung der Varianten.

Bürgermeister Dr. Fendt sagte darauf, dass man noch nicht einmal wisse, was die billigere Variante sei. Wir wissen nicht welche Variante komme und jetzt reden wir schon über Drohkulissen, was wir machen können. Er möchte dem Straßenbauamt ein ganz großes Kompliment machen, weil das Straßenbauamt bisher immer sehr offen war und wir haben schon viele Besprechungen zu dem Thema gehabt. Abschließend brachte Bürgermeister Dr. Fendt den Beschlussvorschlag zur Abstimmung.

Beschluss:

„Der Sachstand wird zur Kenntnis genommen.“

Abstimmungsergebnis: 15:0

Dem Beschluss wurde einstimmig zugestimmt.

***********************

3.1.

Antrag auf Baugenehmigung;

Neubau eines Einfamilienhauses in Holzfertigbauweise mit Einliegerwohnung; Rufenbergstraße, Bubenhausen

Sachverhalt:

Mit Antrag auf Baugenehmigung, eingegangen am 13.02.2025, begehren die Antragstellerinnen die Genehmigung für den Neubau eines Einfamilienhauses in Holzfertigbauweise mit Einliegerwohnung auf dem Baugrundstück an der Rufenbergstraße, Ortsteil Bubenhausen.

Das Vorhaben liegt im Geltungsbereich des qualifizierten Bebauungsplans „Rufenberg“, rechtsverbindlich seit dem Jahr 1968.

Dessen zentrale Festsetzungen sind:

  • WA, also allgemeines Wohngebiet
  • ein eng gezogenes, gebäudescharfes, Baufenster
  • 2 Vollgeschosse zwingend und gleichzeitig maximal
  • Grundflächenzahl (GRZ) 0,4
  • Geschossflächenzahl (GFZ) 0,8
  • Baugrundstücke für freistehende Einfamilienhäuser müssen eine Mindestgröße von 600 m² haben.

Die Bauwerber planen das 1.273 m² große Baugrundstück zu teilen. Der Teil, auf dem das gegenständliche Vorhaben realisiert werden soll, soll eine Größe von 505 m² haben. Auf der Restfläche von 768 m² soll das bereits auf dem Baugrundstück bestehende Wohngebäude erhalten bleiben.

Geplant ist ein Wohngebäude mit zwei Wohneinheiten. Das Vorhaben sieht eine eingeschossige Bauweise mit einer Grundfläche von 22 x 8,50 m vor. Auf einer Länge von 8 m soll ein 2. Geschoss entstehen. Die GFZ und GRZ werden gemäß der vorgelegten Berechnung knapp eingehalten.

Dem Antrag auf Baugenehmigung liegt ein Antrag auf mehrere Befreiungen vom Bebauungsplan vor:

  1. In der Planzeichnung des Bebauungsplans ist ein eng gezogenes, gebäudescharfes, Baufenster festgesetzt. Das geplante Gebäude soll nahezu vollständig außerhalb des Baufensters errichtet werden.
  2. § 5 der textlichen Festsetzungen i. V. m. der Planzeichnung setzt für das Baugrundstück 2 Vollgeschosse zwingend und gleichzeitig maximal fest. Geplant ist ein Gebäude mit nur einem Vollgeschoss.
  3. § 4 des Bebauungsplans setzt für freistehende Einfamilienhäuser eine Mindestgröße des Baugrundstücks von 600 m² fest. Das nach der Teilung des Baugrundstücks entstehende Teilgrundstück soll eine Fläche von 505 m² haben.

Die Bauwerberinnen begründen die beantragten Befreiungen wie folgt:

Der Bebauungsplan stammt aus den 60er Jahren, damals wurden Grundstücke deutlich größer zugeschnitten. Durch die geplante Grundstücksteilung entstehen 2, im Hinblick auf die Landesziele Flächensparen und Innen- vor Außenentwicklung, vernünftig große Bauplätze.

Bei dem vorliegenden Bebauungsplan wurden die Baufenster so gezogen, dass nur die Realisierung eines Gebäudes auf dem (damals noch 1.273 m² großen) Baugrundstück möglich war. Eine mögliche Grundstücksteilung wurde damals nicht berücksichtigt. Heute erstrecken sich die Baufester i. d. R. über einen großen Teil der Grundstücke. Die Dichte der Bebauung wird über die GFZ und GRZ gesteuert. Die im Bebauungsplan vorgegebene GFZ und GRZ wird auf beiden Teilgrundstücken eingehalten.

Weitere in den Personen der Bauwerberinnen bedingte Gründe für die beantragten Befreiungen sind der nicht öffentlichen Anlage zu entnehmen.

Die vom Entwurfsverfasser gefundene Lösung der teilweisen 2-Geschossigkeit, welche zugunsten des einheitlichen Ortsbildes eine 2-Geschossigkeit zur öffentlichen Straßenfläche hin vorsieht, wird von der Verwaltung als gute Lösung gesehen.

Die Verwaltung ist sich bewusst, dass mit den hier beantragten Befreiungen, insbesondere der Nichteinhaltung des Baufensters, grundsätzlich ein Präzedenzfall geschaffen wird. Allerdings sind im Geltungsbereich des gegenständlichen Bebauungsplans keine weiteren vergleichbaren Grundstücke vorhanden, bei denen nach der potentiellen Teilung eine vergleichbare Situation entsteht.

Ob hier die beantragten Befreiungen tatsächlich möglich sind, oder aber die Grundzüge der Planung betroffen sind (§ 31 II BauGB … Von den Festsetzungen des Bebauungsplans kann befreit werden, wenn die Grundzüge der Planung nicht berührt werden und …) wird letztlich die Baurechtsbehörde zu entscheiden haben.

Es ist aber gut zu vertreten, hier gemäß § 31 III 1 Nr. 3 BauGB bei der … Durchführung des Bebauungsplans einen Fall einer offenbar nicht beabsichtigen Härte … zu sehen. Es ist potentiell davon auszugehen, dass der Planersteller, wenn schon damals 2 Grundstücke bestanden hätten, auch 2 Baufenster erstellt hätte.

Die nach der Stellplatzsatzung der Stadt herzustellende Anzahl notwendiger Stellplätze (4 Stück) wird auf dem Baugrundstück dargestellt.

Die Nachbarn haben dem Bauvorhaben zugestimmt, die Unterschriften liegen vor.

Diskussion:

Der Tagesordnungspunkt wurde erläutert. Es schloss sich keine Diskussion an.

Beschluss:

„Das Einvernehmen wird erteilt“.

Abstimmungsergebnis: 15:0

Dem Beschluss wurde einstimmig zugestimmt.

***********************

3.2.

Antrag auf Baugenehmigung;

Rückbau des bestehenden Pultdaches und Aufstockung des bestehenden Gebäudes zu einem Lagerraum mit Satteldach;

Nähe Niederhauser Straße, Oberhausen

Sachverhalt:

Mit Antrag auf Baugenehmigung, eingegangen am 24.02.2025, begehrt der Antragsteller den Rückbau des bestehenden Pultdaches und die Aufstockung des bestehenden Gebäudes mit einem Lagerraum mit Satteldach auf dem Baugrundstück an der Niederhauser Straße im OT Oberhausen.

Nach Abbruch des Pultdaches soll das Gebäude ein zweites Geschoss und ein flach geneigtes Satteldach erhalten (Dachneigung 10 Grad). Die Gebäudehöhe erhöht sich um 3,50m auf 6,7m. An der Gebäudegrundfläche ändert sich nichts.

Das Baugrundstück liegt nicht im Geltungsbereich eines rechtskräftigen Bebauungsplans. Somit richtet sich die Zulässigkeit von Vorhaben nach § 34 BauGB, d.h., das geplante Vorhaben muss sich nach der Art und dem Maß der baulichen Nutzung in die Umgebung einfügen.

Hinsichtlich der Art der zulässigen Nutzung ist anhand der umgebenden Bebauung mit Wohngebäuden, Hofstellen und teils auch gewerblichen Nutzungen, von einem faktischen Mischgebiet i. S. v. § 6 BauNVO auszugehen.

Lagergebäude sind in einem Mischgebiet grundsätzlich zulässig. Nach dem Umbau beträgt die in Anspruch genommene Grundflächenzahl (GRZ) 0,18, die Geschossflächenzahl (GFZ) 0,35. Damit hält sich das Maß der baulichen Nutzung auch nach der Aufstockung an den Rahmen der Nutzungen in der Umgebung.

Das Vorhaben hält die erforderlichen Abstandsflächen an der Nordgrenze des Baugrundstücks nicht ein. Eine entsprechende Abstandsflächenübernahme durch den Eigentümer des nördlich angrenzenden Grundstücks liegt vor.

Die nach der Bay. Garagen- und Stellplatzverordnung (GaStellV) notwendigen zusätzlichen 2 Stellplätze sind auf dem Baugrundstück vorhanden.

Diskussion:

Der Tagesordnungspunkt wurde erläutert. Es schloss sich keine Diskussion an.

Beschluss:

„Das Einvernehmen wird erteilt“.

Abstimmungsergebnis: 15:0

Dem Beschluss wurde einstimmig zugestimmt.

***********************

3.3.

Antrag auf Baugenehmigung;

Aufstellung von 2 Behältern für tiefkalt-verflüssigte Gase;

Benzstraße, Weißenhorn

Sachverhalt:

Mit Antrag auf Baugenehmigung, eingegangen am 24.02.2025, begehrt der Antragsteller die Genehmigung zur Aufstellung von zwei Behältern für tiefkalt-verflüssigte Gase (Sauerstoff und Stickstoff) auf den Grundstücken Flst.Nrn. 719/9 und 719/5, jeweils Gemarkung Weißenhorn (Industriegebiet Birkholz).

Die Grundstücke befinden sich nicht im Eigentum der Antragsteller. Da eine Baugenehmigung jedoch grundsätzlich unbeschadet der Rechte Dritter erteilt wird, kann dem Bauwerber hier grundsätzlich eine Baugenehmigung erteilt werden, auch wenn er nicht Grundstückseigentümer ist.

Das Vorhaben befindet sich im Geltungsbereich des qualifizierten Bebauungsplans „Birkholz“. Der Bebauungsplan setzt dort Industriegebiet (GI) gemäß § 9 BauNVO fest. Das Betreiben solcher Behälter für tiefkalt-verflüssigte Gase ist im Industriegebiet grundsätzlich zulässig.

Die Behälter dienen der Versorgung mit flüssigem Sauerstoff und Stickstoff. Die für das Aufstellen der Behälter benötigte Grundfläche beträgt ca. 4 x 4 und 3 x 3 Meter, mit Aufstellflächen für die Servicefahrzeuge ca. 15 m x 13 m. Die Höhe der Behälter beträgt 10 m bzw. 7,70 m. Damit spricht aus planungsrechtlicher Sicht nichts gegen das Vorhaben, insbesondere werden die zentralen Vorschriften des Bebauungsplans (Baufenster, GRZ, BMZ, Höhe) eingehalten.

Gemäß Ziff. 2.1 der textlichen Festsetzungen sind Anlagen, von denen eine erhebliche Luftverunreinigung ausgeht, insbesondere Anlagen, für die eine gesonderte Genehmigung nach dem Bundesimmissionsschutzgesetz erforderlich ist und Anlagen im Sinne des § 2 der 4. Verordnung zum BImSchG, unzulässig.

Da es sich bei dem Vorhaben um einen Sonderbau i.S.v. Art. 2 IV Nr. 20 BayBO handelt, wird die untere Baurechtsbehörde bzw. die im Verfahren von der Baurechtsbehörde zu beteiligenden Fachbehörden im Rahmen der bauordnungsrechtlichen Prüfung u. a. zu klären haben, ob die an der Stelle des Bauvorhabens zulässigen Lärmkontingente eingehalten werden und / oder ob möglicherweise eine immissionsschutzrechtliche Genehmigung (bzw. Vorprüfung des Einzelfalls) erforderlich ist und so das Vorhaben daher möglicherweise an der geplanten Stelle unzulässig ist.

Diskussion:

Der Tagesordnungspunkt wurde erläutert. Es schloss sich keine Diskussion an.

Beschluss:

Stadtrat Jüstel befand sich außerhalb des Sitzungssaales und nahm an der Abstimmung nicht teil.

„Das Einvernehmen wird unter der Voraussetzung erteilt, dass die Lärmkontingente gemäß Bebauungsplan eingehalten werden und das Vorhaben nicht gegen Ziff. 2.1 des Bebauungsplans verstößt.“

Abstimmungsergebnis: 14:0

Der Beschluss wurde mit 14 Stimmen angenommen.

***********************

3.4.

Antrag auf Baugenehmigung;

Erweiterung eines Wohnhauses;

Engelhardmühle, Attenhofen

Sachverhalt:

Mit Antrag auf Baugenehmigung, eingegangen am 03.03.2025, begehrt der Antragsteller die Erweiterung eines bestehenden Wohngebäudes auf dem Baugrundstück im Bereich der Engelhardmühle im Ortsteil Attenhofen.

Das Baugrundstück liegt nicht im Geltungsbereich eines rechtskräftigen Bebauungsplans. Nachdem das Baugrundstück nicht in einem im Zusammenhang bebauten Bereich gelegen ist (i. S. v. § 34 BauGB), richtet sich die Zulässigkeit von Vorhaben an dieser Stelle nach § 35 BauGB.

Das zu erweiternde Gebäude wurde mit Baugenehmigung vom Januar 2006 als Betriebsleiterwohnhaus gemäß § 35 I BauGB als (teil-)privilegiertes Vorhaben genehmigt.

Gemäß § 35 IV 1 Nr. 5 BauGB können Erweiterungen von solchen zulässigerweise errichteten Wohngebäuden u. a. dann zugelassen werden, wenn die Erweiterung im Verhältnis zum vorhandenen Gebäude und unter Berücksichtigung der Wohnbedürfnisse angemessen ist.

Geplant ist hier eine Erweiterung des Gebäudes um eine Grundfläche von knapp 37m² auf eine Gesamtgrundfläche von rund 160 m². Die Geschossfläche vergrößert sich von 250 m² auf rund 320 m². Bei dem rund 7.000 m² großen Baugrundstück entspricht dies einer Grundflächenzahl (GRZ) von 0,02 sowie einer Geschossflächenzahl (GFZ) von 0,04. Diese Werte sind somit unbedenklich. Die Erweiterung lässt sich daher nach Auffassung der Verwaltung unter § 35 IV 1 Nr. 5 BauGB subsummieren.

Nachdem das Bestandsgebäude von der Baurechtsbehörde im Außenbereich als privilegiertes Vorhaben genehmigt wurde, hat die Verwaltung die grundsätzlichen Voraussetzungen der Genehmigungsfähigkeit nach § 35 I 1 BauGB nicht erneut geprüft, sondern als gegeben vorausgesetzt.

Die Verwaltung schlägt daher vor, das Einvernehmen zu erteilen.

Diskussion:

Der Tagesordnungspunkt wurde erläutert. Es schloss sich keine Diskussion an.

Beschluss:

„Das Einvernehmen wird erteilt“.

Abstimmungsergebnis: 15:0

Dem Beschluss wurde einstimmig zugestimmt.

***********************

4.

Städtisches Wasserwerk Weißenhorn - Wirtschaftsplan 2025

Sachverhalt:

Der Wirtschaftsplan des Städt. Wasserwerkes Weißenhorn für das Jahr 2025 wurde von der Kämmerei mit dem Tiefbauamt und dem Wasserwerksmeister abgesprochen und wie nachstehend erstellt. Der Erfolgsplan bzw. die Gewinn- und Verlustrechnung weist einen Verlust in Höhe von 119.000 € aus. Der Vermögensplan für das Jahr 2025 schließt in Einnahmen und Ausgaben mit jeweils 522.000 €. Das Volumen des Finanzplanes für die Jahre 2024 bis 2028 beträgt 2.484.000 €.

Zusammenfassung des Erfolgsplanes 2025

Erläuterungen zum Erfolgsplan 2025

1. Umsatzerlöse

Zum Zeitpunkt der Haushaltserstellung war die Jahresabrechnung der Wassergebühren jedoch noch nicht vollständig abgeschlossen. Den genauen Gesamtverbrauch und entsprechende Erlöse für die vergangene Abrechnungsperiode sind bis dato nicht komplett ermittelt. Da es grundsätzlich bei einer ähnlichen Fördermenge bleibt, wurde bei der HHSt. 8150.1100 der gleiche Ansatz wie im Vorjahr (980.000 €) angesetzt. Zum 01.01.2022 wurden erstmals die neuen Gebührensätze (Grund- und Verbrauchsgebühren Wasser) angewendet.

Der Haushaltsansatz für die Reparaturkostenersätze (HHSt. 8150.1110) wurde mit 15.000 € angesetzt. Es lässt sich nicht abschätzen, wie viele Reparaturen, Rohrbrüche etc. im Haushaltsjahr auftreten werden, daher ist dieser Einnahmeposten sehr schwankend.

Bei den Nebengeschäftserträgen (HHSt. 8150.1120) werden 15.000 € an Einnahmen erwartet. Neben der Verrechnung der Kosten für die technische Betriebsführung an die Gemeinde Roggenburg wird der Austausch von Gartenzählern, der Unterhalt des Wasserwehrs und des Hauptplatzbrunnens sowie Reparaturmaßnahmen in den städtischen Friedhöfen auf dieser Haushaltsstelle vereinnahmt. Der technische Betriebsdienst inklusive der kompletten Rufbereitschaft und Fehlerbehebung für die Wasserversorgung der Gemeinde Roggenburg wird weiterhin seitens des Städt. Wasserwerks Weißenhorn durchgeführt. Es stellt nach wie vor ein Phänomen dar, weshalb in Weißenhorn so viele Gartenzähler installiert werden. In den meisten Fällen rentiert sich der Betrieb eines solchen Abzugszählers nicht, da die zurückgehaltene Menge in keiner Relation zu den entstehenden Kosten der Erstinstallation (Verplombung) und Austauschleistung im Rahmen des Eichjahrs steht. Trotz Aufklärung und Beratung durch die Verwaltung und Wasserwerk wird der Abzugszähler fast immer angeschafft. An dieser Stelle darf auch nochmals informiert werden, dass eine Poolbefüllung durch den Gartenwasserzähler nicht zulässig ist. Insgesamt wird im Haushaltsjahr 2025 mit Umsatzerlösen in Höhe von 980.000 € gerechnet.

2. Aktivierte Eigenleistungen

Gemäß dem im Vermögensplan dargestellten Neubauprogramm ist mit Eigenleistungen der Mitarbeiter des Städt. Wasserwerks in Höhe von ca. 3.000 € zu rechnen. Diese werden durch die Mitarbeit beim Neubau von Wasserversorgungs- und Hausanschlussleitungen erwirtschaftet. In vielen Fällen wird bei Rohrleitungsneubauten aufgrund fehlender eigener Baumaschinen eine Fremdvergabe durchgeführt. Insgesamt ist bei den aktivierten Eigenleistungen in den letzten Jahren ein Rückgang zu verzeichnen.

3. Sonstige betriebliche Erträge

Hier ergeben sich für das aktuelle Wirtschaftsjahr Einnahmen in Höhe von 31.500 €. Die Wassergebühren werden seit 2005 durch das Wasserwerk für die Rauher-Berg-Gruppe in den Stadtteilen Oberhausen und Wallenhausen abgerechnet. Bei dem Verwaltungskostenersatz von der Rauher-Berg-Gruppe ergeben sich geschätzte Einnahmen von 4.500 € (5 % aus den Verkaufserlösen der Ortsteile Oberhausen und Wallenhausen). Vom Unterabschnitt Abwasserentsorgung der Stadt Weißenhorn werden anteilige Wasserzählerwechselkosten in Höhe von 18.000 € erstattet. Für den Stadtteil Attenhofen, dessen Abwasser zur Kläranlage in Pfaffenhofen geleitet wird, erhält das Städt. Wasserwerk für Hebedienst und Wasserzählerwechselkosten einen Kostenersatz in Höhe von 1.500 €.

4. Aufwendungen für Roh-, Hilfs- und Betriebsstoffe

Im Vergleich zum Vorjahr wird in diesem Bereich eine deutliche Kostenreduzierung erwartet. Die geplanten Gesamtkosten für das aktuelle Geschäftsjahr (205.000 €) liegen 11,20 % unter denen des Vorjahres (2024: 229.700 €). Die Kosteneinsparung von 24.700 € ist hauptsächlich auf die gesunkenen Stromkosten zurückzuführen.

Auf der Haushaltsstelle 8150.5001 – Unterhalt der Werkdienstwohnung beläuft sich der Ansatz im Jahr 2025 auf 0 €, da die Werksdienstwohnung nicht mehr bewohnt wird und ein Umbau zu Büroräumen geplant ist. Die entsprechenden Kosten sind bei 8150.5300 veranschlagt (s. u.).

Auf der Haushaltsstelle 8150.5440 – Stromkosten sinken die Stromkosten auch im Jahr 2025 weiterhin um voraussichtlich 25.000 € auf 105.000 €, der Vorjahresansatz belief sich auf 130.000 €. Diese Entwicklung ist auf die anhaltende Entspannung des Strommarktes zurückzuführen.

Beim Fremdwasserbezug ergibt sich im Vergleich zum Haushaltsjahr 2024 eine leichte Steigerung von 2.000 €. Für den Notverbund mit der Rauher-Berg-Gruppe in Pfaffenhofen wird eine Wasserlieferung von 22.000 m³ prognostiziert. Während der Brunnenreinigung bzw. -sanierung in Biberachzell wird auch für einige Tage eine Wasserlieferung aus dem Notverbund mit der Gemeinde Roggenburg notwendig sein. Die Gesamtausgaben für den Fremdwasserbezug werden sich auf ca. 19.000 € (HHSt. 8150.6300) belaufen. Diese Kostensteigerung ist auf die gestiegenen Grund- und Wasserpreise zurückzuführen.

Die Haushaltsansätze für den Unterhalt der Rohrleitungen und Schächte (HHSt. 8150.5100) wurden mit 6.000 € sowie Hausanschlüsse (HHSt. 8150.5110) mit 12.000 € bemessen. Der Bedarf bei diesen Haushaltsstellen ist aufgrund der unterschiedlichen Häufigkeit von Rohrbrüchen und Reparaturen nur schwer abzuschätzen.

Bei der Haushaltsstelle 8150.5500 – Unterhalt der Fahrzeuge – wurde mit einem Betrag von 13.000 € ein etwas geringerer Ansatz gewählt als im Vorjahr (15.000 €). Dies ist darauf zurückzuführen, dass der bereits in die Jahre gekommene Caddy durch ein neues Fahrzeug ersetzt werden soll, was zu geringeren Unterhaltskosten führt.

Grundsätzlich bewegen sich in diesem Jahr viele Positionen auf dem Vorjahresniveau.

5. Aufwendungen für bezogene Leistungen

Für das Haushaltsjahr 2025 wurden Mittel in Höhe von 232.700 € beantragt, was einer Steigerung von 88.300 € im Vergleich zum Vorjahr entspricht.

Der Ansatz für den Unterhalt der Gebäude und Brunnen (8150.5300) wurde im Vergleich zum Vorjahr um 59.000 € erhöht und beträgt nun 90.000 €.

Ein signifikanter Anteil ist dabei dem Umbau der Werkswohnung zu Büroarbeitsplätzen und Sozialräumen zuzuschreiben, für den 25.000 € im Jahr 2025 und nochmals 25.000 € im Jahr 2026 veranschlagt wurden. Des Weiteren ist die obligatorische Grünflächenpflege mit 4.000 € berücksichtigt.

Zudem wurde die Firma Aquaplus mit der Brunnenregenerierung in Biberachzell beauftragt. Die voraussichtlichen Kosten hierfür belaufen sich auf 10.000 Euro. Während der Ausführung dieser Arbeiten wird ein Fremdwasserbezug aus der Verbundleitung mit der Gemeinde Roggenburg erforderlich sein. Demnach ist eine terminliche Abstimmung der Maßnahme mit der Nachbargemeinde erforderlich.

Im Pumpwerk in Grafershofen sollen die Treppen und der Eingangsbereich des Gebäudes saniert werden. In diesem Zuge soll auch ein Teilstück des Eingangsbereichs innen erneuert werden. Rund um das Werksgebäude soll außerdem das dazugehörige Pflaster angeglichen werden. Für die Räumlichkeiten im Erdgeschoss wurden auch Haushaltsmittel für eine Behandlung der Außenwand angemeldet.

Der Ansatz für den Unterhalt der Rohrleitungen und Schächte (8150.5320) hat sich von 20.000 € im Jahr 2024 auf 30.000 € im Haushaltsjahr 2025 erhöht, dies liegt an den steigenden Materialkosten und der erhöhten Zahl an Rohrbrüchen um Vergleich zu den Vorjahren.

Der Ansatz bei HHSt. 8150.5340 bleibt wie im Vorjahr in Höhe von 7.000 € bestehen. Der Wasserzählertausch wird von unseren Mitarbeitern selbst durchgeführt.

Für die Haushaltsstelle 8150.5370 (Leistungen für sonstigen Betriebsaufwand) wird im Jahr 2025 ein Betrag von 55.000 € veranschlagt. Im Vergleich zum Vorjahr entspricht dies einer Steigerung um 25.000 €. Diese Entwicklung ist auf die neue Schutzgebietsverordnung für das Wasserschutzgebiet Grafertshofen zurückzuführen. Nach Inkrafttreten der Verordnung rückwirkend für das Jahr 2024 sind Ausgleichszahlungen an die Landwirte zu leisten.

Der Haushaltsansatz für die Leistungen der EDV (HHSt. 8150.5380) beläuft sich für das Jahr 2025 auf 7.000 €. Unabhängig von der möglichen Einführung von elektronischen Ultraschallwasserzählern wird derzeit die Beschaffung eines Zählermanagementsystems in Erwägung gezogen. Dieses könnte den Zählerwechsel und die Dokumentation für die Wasserwerksmitarbeiter und die Abrechnungsstelle erleichtern.

5. Personalaufwendungen

Für die Personalkosten sind insgesamt Mittel in Höhe von 324.100 € vorgesehen. Verglichen mit dem Vorjahr ergibt sich eine Steigerung von 18.500 € (= 6,06 %), die auf die steigenden Lohnkosten und den anstehenden Tarifverhandlungen 2025 beruht.

6. Abschreibungen

Ein aktueller Anlagennachweis für das Wirtschaftsjahr 2024 liegt noch nicht vor, da der Jahresabschluss noch nicht durchgeführt wurde. Für das Haushaltsjahr 2025 ergibt sich unter Berücksichtigung der zu tätigenden Investitionen und der zu erwartenden Zugänge und Abgänge bei den ausgelaufenen Abschreibungen im Jahr 2022 ein Haushaltsansatz von insgesamt 240.000 €. Auch in den Folgejahren ist mit einem gleichbleibenden Niveau der Abschreibungen zu rechnen, da mehrere Investitionsmaßnahmen, wie die Hochbehältersanierung in Oberreichenbach, PV-Anlagen auf den Betriebsgebäuden und ggf. die Aufbereitungsanlage am Birkenweg, anstehen.

7. Sonstige betriebliche Aufwendungen

Nach erster Hochrechnung beläuft sich der Verwaltungskostenbeitrag für das kommende Haushaltsjahr auf 180.500 €. Der Ansatz für den Jahresabschluss und die Bilanzerstellung (HHSt. 8150.6550) wurde um 43 % auf 10.000 € erhöht, da ein erhöhter Zeitaufwand erforderlich ist.

8. Erträge aus Beteiligungen

Für das Jahr 2024 wurde eine Dividende für den Aktienbesitz in Höhe von 1,47 € ausgeschüttet. Im Haushaltsentwurf für das Jahr 2025 wurde wiederum dieser Wert angesetzt. Bei 30 % Aktienanteilen bzw. 47.250 Stück Aktien würde die Dividende 69.575 € betragen, wobei die Kapitalertragssteuer und der Solidaritätszuschlag im Folgejahr erstattet werden. Die Dividende bleibt wegen der vorhandenen steuerlichen Verlustvorträge steuerfrei.

9. Zinsen und ähnliche Aufwendungen

Für das Haushaltjahr 2025 ergeben sich wiederum negative Kreditzinsen in Höhe von rd. 1.200 €, welche unter der Haushaltsstelle 8150.2070 als Einnahme verbucht werden.

Die Schuldzinsen für das bestehende ältere Darlehen vom Kreditmarkt betragen 2.800 €. Wie der Anlage zu entnehmen ist, beträgt die Darlehensrestschuld zum 31.12.2024 482.250 €. Für das Innere Darlehen mit dem Stadthaushalt fallen ca. 30.000 € Zinsen (Zinshöhe: 3,50 %) an, die nach Bilanzerstellung dem Stadthaushalt gutgeschrieben werden.

10. Jahresverlust

Aus der aktuellen Ein- und Ausgabensituation ergibt sich ein rechnerischer Verlust von 119.000 €.

Es steht die Neukalkulation der Gebühren für den Kalkulationszeitraum 2026-2029 an. Die Ergebnisse der Jahre 2022 – 2024 + Hochrechnung 2025 werden hier einfließen.

Erläuterungen zum Vermögensplan 2025

Der Entwurf des Vermögensplanes 2025 schließt in Einnahmen und Ausgaben mit jeweils 522.000 € ab. Es wurde mit einer Neuverschuldung in Höhe von 235.000 € geplant, um den Vermögensplan auszugleichen. Fraglich ist natürlich dabei, wie jedes Jahr, ob alle Mittel überhaupt benötigt werden.

HHSt. 8150.3450– Abgang aus Anlagevermögen

Da ein neues Wasserwerksdienstfahrzeug angeschafft werden muss, um das alte zu ersetzen, wird mit Einnahmen in Höhe von 6.000 € gerechnet. Eine Prognose ist schwierig abzugeben, da der Markt sehr dynamisch ist und vergleichbare Fahrzeuge in ähnlichem Zustand selten auf den bekannten Autoplattformen zu finden sind.

HHSt. 8150.9350 – Anschaffung bewegliches Vermögen u. Fahrzeuge

Im Jahr 2025 ist die Anschaffung von Datenloggern zur Netzüberwachung, eines Laptops sowie diversen Werkzeugen geplant. Der größte Kostenfaktor ist allerdings die Neubeschaffung eines Fahrzeugs für das Wasserwerk. Da der Caddy bereits in die Jahre gekommen ist, plant die Verwaltung die Neubeschaffung eines Fahrzeugs. Dieses wird mit 35.000 € im Haushalt angesetzt.

Der Gesamtansatz auf der Haushaltsstelle 8150.9350 beträgt 58.000 € (Vorjahr: 10.000 €).

HHSt. 8150.9410 – Hochbauten

Im Jahr 2025 ist die Erneuerung der Lüftungsanlage Wasserkammern 3 und 4 geplant, das Ingenieurbüro Wassermüller hat die Kosten mit 90.000 € veranschlagt.

HHSt. 8150.9500 – Erweiterung des Rohrnetzes

Bei den nachfolgend gelisteten Maßnahmen, sind bei den Investitionen für neue Wasserversorgungsleitungen Mittel mit rd. 125.000 € in den Haushalt eingestellt. Mit einigen Vorjahresbaumaßnahmen wurde noch nicht begonnen und sind daher in das Neubauprogramm des Jahres 2025 verschoben worden.

Gemäß dem Bauprogramm 2025 sind Kosten für neue Hausanschlüsse in Höhe von insgesamt netto 31.000 € einzustellen.

HHSt. 8150.9520 – Tiefbauten

Im Jahr 2025 sind keine Maßnahmen geplant, es sind lediglich 2.000 € für kleinere Maßnahmen veranschlagt.

HHSt. 8150.9530 – Kosten für Wasserschutzgebiete u. Wasserrechtsverfahren

Für diverse Beratungen und die Betreuung der laufenden Schutzgebietsverfahren rechnen wir mit weiteren Kosten. Es wurde deshalb ein Haushaltsansatz von 14.000 € eingestellt.

HHSt. 8150.9560 – Neubeschaffung von Wassermessern

Das Thema Neubeschaffung von Funkwasserzählern wurde bereits mehrfach im Stadtrat diskutiert. Für eine Sitzung im Stadtrat könnte das Thema in einer Grundsatzentscheidung nochmals behandelt werden, um die Weichen für die Zukunft endlich zu stellen. Es sollte technologieoffen diskutiert werden. Folglich könnten die elektronischen Funkwasserzähler erstmals in diesem oder im Folgejahr eingesetzt werden. Vorsorglich wurde ein höherer Haushaltsansatz von 60.000 € eingeplant, um noch eine Bestellung der Zähler, Hard- und Software im Jahre 2025 tätigen zu können.

HHSt. 8150.9580 – Planungskosten

Die Planungskosten betragen für das Haushaltjahr 2025 netto 14.000 €. Diese Summe beinhaltet Restkosten aus dem Haushaltsjahr 2024 in Höhe von 2.000 € (Buchenweg, Schlossprielweg).

Einnahmen im Vermögensplan 2025

Aufgrund der geplanten Bautätigkeit gehen wir auf der Einnahmeseite von Herstellungsbeiträgen in Höhe von 140.000 € (HHSt. 8150.3500) aus.

Bei den neuen Hausanschlüssen sind ca. 20.000 € auf der Haushaltsstelle 8150.3510 zu vereinnahmen. Zur Finanzierung der weiteren Wassererschließung und der Versorgungsleitungen, die nicht über Herstellungsbeiträge gedeckt sind, ist bei HHSt. 8150.3780 und in der Haushaltssatzung eine Darlehensneuaufnahme in Höhe von 235.000 € einzustellen.

Finanzplan über die Jahre 2024 bis 2028

Der Finanzplan für die Jahre 2024 bis 2028 schließt in Einnahmen und Ausgaben mit 2.484.000 € ab. Nachdem im Finanzplan (mittelfristige Finanzplanung) die Haushaltsansätze des Vorjahres 2024 mit betrachtet werden müssen, ergibt sich bei den Einnahmen und Ausgaben ein völlig falsches Bild.

Im abgelaufenen Haushaltsjahr wurden zahlreiche Haushaltsansätze nicht vollständig ausgeschöpft, so dass diese im Folgejahr erneut veranschlagt wurden. Dies wirkt sich besonders im Jahre 2024 bei der Haushaltsstelle 8150.9410 – Hochbauten aus. Der Haushaltsansatz von 290.000 € wurde wenig in Anspruch genommen, es wurden nur 48.826,11 € verbraucht.

Ähnlich verhält es sich bei der Haushaltsstelle 8150.9500 – Erweiterung des Rohrnetzes. Bei einem Haushaltsansatz von 210.000 € wurden nur gut 117.000 € tatsächlich benötigt. Außerdem wurde der Haushaltsansatz 8150.9560 – Neubeschaffung von Wassermessern mit 0 € überhaupt nicht angetastet.

Die Einnahmen und Ausgaben des Jahres 2025 wurden bereits im vorstehenden Vermögensplan ausführlich dargestellt, so dass hierauf nicht weiter eingegangen werden muss.

Im Laufe des Jahres 2025 sollen die Ergebnisse des Strukturgutachtens für die Wasserversorgung in Weißenhorn durch das Ingenieurbüro vorgelegt werden. Dieses beinhaltet unter anderem eine technische Bewertung unserer Anlagen sowie die Erstellung einer Gefährdungs- und Netzanalyse. Es ist durchaus möglich, dass einige Änderungen an den Wasserwerksgebäuden und technischen Anlagen vorgeschlagen werden, um die Trinkwasserversorgung auf hohem Niveau zu halten oder zu verbessern. Die Umsetzung der Vorschläge könnte sich ab den Jahren 2025/2026 mit höheren Ausgaben auf die entsprechenden Haushaltspositionen auswirken. Unabhängig von dieser Untersuchung wurden in den letzten Jahren bereits Sanierungsmaßnahmen durchgeführt, wie z.B. die Sanierung der Hochbehälter in Weißenhorn sowie in Oberrechenbach.

Um die Wasserversorgung in Zukunft zu optimieren, wird empfohlen, in den nächsten Jahren in eine Aufbereitungsanlage für das Wasser des Tiefbrunnens IV (Birkenweg) zu investieren. Durch den Wegfall des derzeit erforderlichen Mischungsverhältnisses könnten größere Mengen des Tiefbrunnenwassers am Birkenweg gefördert werden. Die wasserrechtliche Genehmigung hierfür liegt bereits vor.

Die Nachfrage nach Bauland in Weißenhorn ist nach wie vor sehr hoch. Die Ausweisung neuer Baugebiete ist daher in der Finanzplanung zu berücksichtigen, wobei insbesondere die Ansätze für den Ausbau des Leitungsnetzes und der Hausanschlüsse betroffen sind. Im Zuge der Verlegung der Fernwärmeleitung in Weißenhorn sollte auch der Austausch alter Versorgungsleitungen geprüft werden.

Ausblick:

Die aktuelle Eigenkapitalausstattung beläuft sich auf 60 % (Stand: 31.12.2022). Im Vergleich zum Vorjahr ist dies eine leichte Verbesserung um 1 %, was eine gute Eigenkapitalausstattung bestätigt.

Um die Leistungsfähigkeit des Städt. Wasserwerkes zu erhalten, wird der Finanzbedarf nach Vollendung der in den Rechnungsjahren 2025 vorgesehenen Baumaßnahmen überprüft und angepasst werden müssen. Die betriebliche Selbstfinanzierung (verbleibende ordentliche Abschreibungen = rd. 240.000 €) reicht aus, um die planmäßigen Darlehenstilgungen in Höhe von 83.000 € zu decken. Die Entwicklung der Darlehen ist der beiliegenden Aufstellung zu entnehmen.

Für die kommenden Jahre sind weiterhin die Erschließung neuer Baugebiete sowie die Erneuerung von Wasserleitungen geplant, die zusätzliche finanzielle Mittel erfordern werden. Außerdem werden auch in den Folgejahren kleinere Reparaturen und größere Investitionen sowohl an den Gebäuden als auch an der Technik aufgrund des altersbedingten Zustandes der Anlagen notwendig sein.

Darüber hinaus sollte ein besonderes Augenmerk auf die Optimierung der Arbeitsabläufe gelegt werden, um die Effizienz sowohl des Wasserwerkspersonals als auch des Verwaltungspersonals zu steigern. In diesem Zusammenhang könnten moderne Funkwasserzähler und Zählersoftware eine entscheidende Rolle spielen.

Diskussion:

Bürgermeister Dr. Fendt erläuterte den Tagesordnungspunkt. Es schloss sich eine Diskussion an.

Werkleiterin Frau Grub ging auf die im Vorfeld schriftlich gestellte Frage von Stadtrat Dr. Bischof ein, warum trotz eines Ertrags aus Beteiligungen von 70.000 € ein Verlust erwartet werde. Grundsätzlich sei es so, dass die Stadt voraussichtlich eine Dividende in Höhe von 70.000 € dieses Jahr von der EWAG erhalte. Man habe aber auch relativ hohe Kosten gerade im Hinblick auf Rohre und Schächte. Wir haben letztes Jahr relativ viele Rohrbrüche gehabt. Das sei immer etwas schwierig abzuschätzen was kommt, aber im Vergleich zum letzten Jahr habe man höhere Haushaltsansätze genommen, deswegen kommen wir da auf einen Verlust von ungefähr 119.000 €. Dazu muss man aber auch sagen, für 2026 werden die Wasser- und Kanalgebühren neu kalkuliert. Das sei jetzt noch in der Planung und dann können wir das natürlich auch wieder etwas anpassen und hoffentlich dann auch einen geringeren Verlust erreichen.

Bürgermeister Dr. Fendt erklärte, d.h. man dürfe keine Gewinne, aber auch keine Verluste machen. Wenn es so weitergehen würde das beim nächsten Gebührenzeitraum bedeuten, dass die Gebühren steigen würden. Aber das wissen wir jetzt noch nicht.

Werkleiterin Frau Grub erläuterte, dass dies nur Haushaltsansätze seien. Tendenziell werde schon deutlich weniger ausgegeben, als veranschlagt sei.

Stadtrat Dr. Bischof bedankte sich für die Erläuterungen. In seinen Rechnungsprüfungsberichten habe er auch schon mehrfach erwähnt, dass bei der Kalkulation der Gebühren, diese Erträge aus Beteiligungen eigentlich nicht mit einbezogen werden sollten, denn dann wird hier der Betrieb des Wasserwerkes aus anderen Mitteln subventioniert. Da meine er, wenn diese Neukalkulation anstehe, sollte am Ende des Jahres das, was wir als Dividende bekommen, auch übrigbleiben. So sei aus seiner Sicht die richtige Rechnung. Dies solle man dem Bayerischen Prüfungsverband oder dem Wirtschaftsprüfer, der die Kalkulation erstelle, mitgeben.

Stadtrat Richter bedankte sich auch für die Aufstellung des Wirtschaftsplanes für das Wasserwerk. Wie immer habe man wir umfangreiche Erläuterungen dazu erhalten. In den Darstellungen werde klar, warum die Zahlen so herauskommen und wie sich entsprechend auch die Veränderungen zum letzten Jahr ergeben haben. Bezüglich der Dividende möchte er anmerken, dass es auch einen steuerlichen Aspekt habe, warum das hier vereinnahmt werde. Das müsse man nach der örtlichen Situation beurteilen. Bereits vor Jahrzehnten habe man bewusst die Beteiligung in das Städtische Wasserwerk hereingenommen und das habe letztendlich auch dazu geführt, dass man über einen langen Zeitraum stabile, relativ günstige Wassergebühren kalkulieren konnte. Das müsse man im Gesamtkontext sehen.

Stadtrat Fliegel sprach seinen Dank zum Wirtschaftsplan aus. Er habe zwei Fragen dazu. Seine erste Frage beziehe sich auf die Änderung der Schutzgebietsverordnung für das Wasserschutzgebiet Grafertshofen. Der veranschlagte Betrag für 2025 mit 55.000 € entspricht im Vergleich zum Vorjahr einer Steigerung von 25.000 €. Rückwirkend sind für das Jahr 2024 Ausgleichszahlungen an die Landwirte zu leisten und daher wollte er wissen, ob der Betrag von 25.000 € dafür vorgesehen sei.

Werkleiterin Frau Grub antwortete, dass noch keine genauen Beträge vorliegen, da man noch in der Klärung sei.

Stadtrat Fliegel fragte weiter, ob es sich dabei um einmalige Beträge handele oder ob das dann jedes Jahr anfallen werde.

Bürgermeister Dr. Fendt erklärte, dass die Beträge immer für erhöhte Bewirtschaftungsmaßnahmen anfallen. Wenn es jedes Jahr zu erhöhten Bewirtschaftungskosten bei den Landwirten führe, dann müsse man das ausgleichen.

Werkleiterin Frau Grub sagte, dass die Landwirte durch das Wasserschutzgebiet eingeschränkt seien, da sie bestimme Dünger nicht mehr verwenden dürfen und allgemein einen größeren Aufwand und höhere Kosten haben. Dafür müssen wir sie entschädigen.

Stadtrat Fliegel fragte, warum das die Kommune bezahlen müsse und nicht das Land, das die neue Wasserschutzgebietsverordnung erlassen haben. In seiner zweiten Frage gehe es darum, ob als Leistungen der EDV dieses Jahr die Einführung von elektronischen Ultraschallwasserzählern und die Beschaffung eines Zählermanagementsystems angedacht seien.

Frau Grub, Werkleiterin, antwortete dazu, dass sie mit der EDV in Gesprächen sei, um grob abzuwägen, in welche Richtung die Verwaltung gehen wolle und was es für Möglichkeiten gebe. Man sei in der Klärung und sie hoffe, dass es 2025 eine Regelung geben werde. Leider könne sie zum jetzigen Zeitpunkt nichts fix zusagen, weil doch relativ viel dahinterstecke.

Beschluss:

1.

Der Bau- und Werkausschuss der Stadt Weißenhorn beschließt den Wirtschaftsplan des Städt. Wasserwerks Weißenhorn für das Haushaltsjahr 2025

a)

Im Erfolgsplan mit einem Verlust in Höhe von 119.000 €

b)

Im Vermögensplan die Einnahmen und Ausgaben mit je 522.000 €

2.

Der Bau- und Werksausschuss empfiehlt dem Stadtrat, den Finanzplan des Städt. Wasserwerkes Weißenhorn für die Jahre 2024 bis 2028, der in Einnahmen und Ausgaben mit je 2.484.000 € abschließt, zu billigen.

Abstimmungsergebnis: 15:0

Dem Beschluss wurde einstimmig zugestimmt.

***********************

5.

Herstellung Leerrohre für Breitband und Beleuchtung

Sachverhalt:

Das Thema Leerrohre und Glasfaser ist seit Jahren Thema im Stadtrat.

Mit Beschluss des SR vom 18.12.2023 wurde festgelegt, in städtischen Tiefbaumaßnahmen, Leerrohre für spätere Internetversorgung mit herzustellen.

Von Seiten der VNEW stehen hin und wieder Baumaßnahmen an, welche sich für eine Mitverlegung von Leerrohren für Breitband eignen.

Aktuell stehen Entscheidungen an, welche nachfolgend beschrieben werden.

Die VNEW beabsichtigt, in den nächsten Wochen ca. 290 m Stromkabel in der Kreuzberg- und Höhenstraße in Bubenhausen zu verlegen. Der Stadt wurde ein Angebot zur Mitverlegung eines Leerrohrs im Gehweg, jedoch ohne Herstellung von Hausanschlüssen, angeboten. In dieses Leerrohr könnte zu einem späteren Zeitpunkt eine Speed-Pipe eingeschoben werden, entsprechende Hausanschlüsse müssten später hergestellt werden. Dieses Angebot würde sich auf 26.400,- € netto belaufen. Vom Büro Corwese wurde eine entsprechende Planung für diesen Bereich erstellt.

Hier stellt sich die Frage, ob der o.g. Beschluss auch auf Tiefbaumaßnahmen der VNEW ausgeweitet werden soll. Für diese Maßnahmen bestehen i.d.R. keine Finanzmittel, weil diese Vorhaben zum Zeitpunkt der Haushaltserstellung nicht bekannt sind. Die Verwaltung empfiehlt, den Beschluss vom 18.12.23 auch auf Maßnahmen der VNEW zu erweitern.

Die VNEW baut regelmäßig Freileitungen ab und stellt entsprechende Erdkabel her. In diesen Bereichen bestehen meist sog. Spannleuchten, welche mit Drahtseilen an den jew. Gebäuden befestigt und meist ein sehr hohes Alter und große Leuchtabstände vorweisen. Mit dem Abbau der Freileitung wird auch die Versorgung dieser Spannleuchten abgebaut. Das bedeutet, dass in diesen Bereichen auch erdverlegte Beleuchtungskabel und die Errichtung von Beleuchtungsmasten erforderlich wird. Da diese Maßnahmen bei Erstellen des Haushaltes i.d.R. nicht bekannt sind, wurde in den Haushalt 2025 ein Posten i.H. von 15.000,- € für derartige Vorhaben eingestellt.

Im Bereich der St. Lorenzstraße, südlich der Witzighauser Straße wird von der VNEW, auf eine Länge von ca. 210 m die bestehende Freileitung abgebaut und die Spannleuchten abgeklemmt. Von der VNEW wurde ein Angebot zur Errichtung von 5 Mastleuchten mit zugehörigem Kabelgraben für ein Beleuchtungskabel i.H. von 39.300.- € netto vorgelegt. Für eine zusätzliche Mitverlegung einer Speed-Pipe bzw. eines entsprechenden Leerrohres liegt noch kein Angebot vor. Die zu erwartenden zusätzlichen Kosten würden sich wohl auf 100€/m belaufen.

Diskussion:

Bürgermeister Dr. Fendt erläuterte den Tagesordnungspunkt. Es schloss sich eine Diskussion an. Stadtrat Dr. Bischof sagte, auch im Namen der WÜW-Fraktion, dass es bezweifelt werde, ob die Verlegung von Leerrohren mittlerweile noch sinnvoll sei, da unklar sei, ob diese von Glasfaserbetreiber tatsächlich dann auch genutzt werden und die Stadt die Kosten für solche Maßnahmen dann nie erstattet bekomme.

Bürgermeister Dr. Fendt meinte, darüber müsste man grundsätzliche Überlegungen anstellen. Er stellte Punkt 1. und 2. des Beschlussvorschlags getrennt zur Abstimmung.

Beschluss 1:

1)

Dem Vorhaben der VNEW, Mitverlegung eines Leerrohres für Breitband in der Kreuzberg- und Weberstraße i.H. von 26.400,- € netto, wird zugestimmt. Generell soll der Beschluss vom 18.12.23 zur Mitverlegung von Leerrohren bei städtischen Tiefbaumaßnahmen auf Vorhaben der VNEW ausgeweitet werden. Dies soll auch für Vorhaben gelten, für welche keine finanziellen Mittel eingestellt wurden.

Abstimmungsergebnis: 10:5

Dem Beschluss wurde mit 10 Stimmen angenommen.

Beschluss 2:

2)

Entfallende Spannleuchten müssen durch Beleuchtungsmasten und entsprechende Erdkabel ersetzt werden, um keine Dunkelzonen zu erhalten. Dies gilt auch für Maßnahmen, welche bei der Erstellung des Haushaltes noch nicht bekannt sind und kein Finanzansatz vorhanden ist. Dem Vorhaben und dem Angebot der VNEW zur Herstellung von 5 Mastleuchten im Bereich der St.-Lorenz-Straße südlich der Witzighauser Straße zum Angebotspreis i.H. 39.300,- € netto wird zugestimmt.

Abstimmungsergebnis: 15:0

Dem Beschluss wurde einstimmig zugestimmt.

***********************

6.

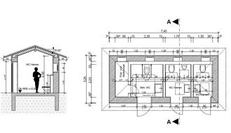
Errichtung einer öffentlichen Toilettenanlage;

Nähe Bahnhof auf dem Grundstück Flst.Nr. 1682/46 Gemarkung Weißenhorn;

Kenntnisnahme der Planung

Sachverhalt:

Aufgrund anhaltendem Vandalismus (Fotos werden in der Sitzung gezeigt) und ekelerregender Zustände trotz täglicher Reinigung, sind die Toiletten am Bahnhof derzeit als mobile Lösung ausgeführt. Wiederkehrende Probleme und Verwüstungen im Haus haben sowohl die bestehende Gastronomie, als auch alle Mieter massiv beeinflusst und dies erforderlich gemacht. Schöner Weise ist der gastronomische Bereich inzwischen wiedereröffnet und trägt zu einer positiven Belebung der Stadt und des Bahnhofbereichs bei.

Der Betreiber hat zwar im Januar 2025 eine Baugenehmigung für den Anbau einer Toilettenanlage direkt an das Bahnhofsgebäude erhalten, doch sind hiermit noch zu klärende Auflagen verbunden.

Dem Betreiber ist an einer guten Lösung gelegen, deshalb wurde erneut eine Planung für eine separat stehende Toilettenanlage von ihm in Auftrag gegeben. Diese Planung ist in der Sitzungsvorlage dargestellt und würde vom Betreiber umgesetzt.

Es soll nun darüber befunden werden, ob die genehmigte Alternative mit dem Anbau an das Gebäude zur Umsetzung kommen soll, oder die separat stehende Toilettenanlage.

Die gewünschte Lösung sollte nach Ansicht des Betreibers so rasch als möglich zur Umsetzung gelangen.

Im dargestellten Lageplan wird die neue WC Anlage am Rand des Parkplatzes verortet. Hiermit werden kurze Wege für alle Nutzer sichergestellt. Gleichzeitig wird der Vandalismus im Gebäudeinneren des Bahnhofs vermieden.

Die Anlage wird vom Betreiber des Bahnhofs auf dem städtischen Grundstück errichtet und das bestehende Vertragsverhältnis wird an die neue Einrichtung angepasst. Weitere erforderliche Verträge bezüglich der Grundstücksnutzung werden entsprechend der Erfordernis gefertigt.

Die Verwaltung unterstützt das Vorhaben einer separaten Anlage und sieht hierin eine gute Lösung, eine komfortable öffentliche Toilette anzubieten. Gleichzeitig wird die Gastronomie und die Mietverhältnisse im Bahnhof unterstützt und das Gesamtgelände damit aufgewertet.

Planung der Toilettenanlage:

Diskussion:

Bürgermeister Dr. Fendt erläuterte den Tagesordnungspunkt. Es schloss sich eine Diskussion an.

Bürgermeister Dr. Fendt zeigte einige Fotos der verschmutzten, verwüsteten und beschädigten Toilette. Er erklärte zum Sachstand, dass der Betreiber die Möglichkeit habe, die Genehmigung umzusetzen. Der Bauausschuss habe aber den Wunsch geäußert, ob man nicht eine Alternative überlegen könne. Eine solche Alternative wäre ein gesondertes Gebäude, vom Bahnhof etwas abgetrennt, an der Stelle, wo bisher zwei Behindertenparkplätze positioniert waren. Diese Behindertenparkplätze entfallen dadurch natürlich nicht, sondern werden nur etwas verschoben. Die Details müssten noch vertraglich geregelt werden. Heute gehe es nur darum, zu entscheiden, ob die Baugenehmigung umgesetzt werden oder ob man ein gesondertes Toilettengebäude errichten solle. Dies sei seines Erachtens langfristig die deutlich schönere Lösung. Wie man den Vertrag gestalte, weil das Gebäude auf städtischen Grund stehen werde, müsse man aushandeln und dem Bauausschuss wieder zur Genehmigung vorlegen.

Stadtrat Schulz sagte, dass die einzelnstehende Toilette definitiv die beste Lösung sei. Als Hinweis gebe er dem Bauherrn mit, das Häuschen so zu gestalten, wie die Toiletten auf den Autobahnen, d.h. Vandalismus sicher, mit Edelstahl ausgeführt und mit einem Wasserstrahl ohne große Probleme ausdampfbar. Da gebe es auch von der Sauberkeit her zukünftig weniger Probleme. Er schlug vor, die Herrentoilette mit zwei Kabinen auszustatten, mit einem Urinal und einer WC-Toilette. So könne man die Toiletten getrennt nutzen. Momentan sei es so, dass wenn jemand auf das Urinal gehe und die Tür auflasse, die Toilette gesperrt sei und eine separate Nutzung so nicht möglich sei.

Bürgermeister Dr. Fendt sagte, dass man die Hinweise an den Bauherrn weitergeben werde.

Stadtrat Fliegel ging auf die Vorgeschichte ein. Von der Verwaltung wurde entschieden, Dixi-Klos aufzustellen. Die Busfahrer müssen hier regelmäßig auf die Toilette und müssen derzeit daher das Dixi-Klo benutzen. Dies sei wirklich momentan eine unangenehme Situation. Diese neue Planung mit einer vom Gebäude getrennten Toilette sei eine gute Lösung. Allerdings müsse man vielleicht die vorliegende Planung etwas überdenken, da im derzeitigen Behinderten-WC ein Zugang zum Abstellraum sei. Dafür würde sich eine Lösung von außen besser anbieten oder eine Lösung mit einer Toilette, wie auf den Autobahnen. Wenn eine Toilette wieder im Innenbereich errichtet werde, wie es im Moment der Fall sei, werde die Verschmutzung und der Vandalismus nicht weniger werden. Wenn man schon etwas baue, müsse man das schon so planen und bauen, dass es auch Sinn mache.

Der folgende Wortbeitrag wurde auf Antrag von Stadtrat Dr. Bischof in das Protokoll aufgenommen. Stadtrat Dr. Bischof sagte, dass seine Fraktion ihr Verständnis für den Eigentümer des Bahnhofsgebäudes noch einmal zum Ausdruck bringen möchte. Was auf den Bildern gezeigt wurde, sei kein Zustand, der so weitergeführt werden könne. Er möchte das Bemühen des Eigentümers ausdrücklich loben. Sie seien schon seit einem dreiviertel Jahr mit ihm im Gespräch und haben die Situation vor Ort zusammen mit ihm besichtigt. Er habe sich immer bemüht, eine Lösung zu finden, die die Interessen der Stadt berücksichtige und eine gute Lösung sei. Allerdings haben wir damals hier im Gremium auch schon gesagt, dass dieser Anbau an das Bahnhofsgebäude aus zwei Gründen nicht gut sei. Erstens aus städtebaulicher Sicht, weil das Bahnhofsgebäude ein wunderschönes Gebäude sei, welches durch diesen Anbau entwertet werde. Mit diesem Anbau wäre mit dem gleichen Vandalismus, den gleichen Sachbeschädigungen und den gleichen Verschmutzungen zu rechnen oder sogar noch mit größeren, weil die Toilettenanlage dann noch weniger unter Aufsicht sei, als die Toiletten, die jetzt im Gebäude untergebracht waren. Damit komme er auch zum Problem dieser Planung. Grundsätzlich halten sie den Standort abgelöst vom Gebäude für sehr gut, aber die Ausführung in der klassischen Massivbauweise könne dazu führen, dass wir die gleichen Bilder, die wir jetzt gerade gesehen haben, wieder gezeigt bekommen. Auch dort werde es zu Beschädigungen und Verschmutzungen kommen, die tendenziell eher schlimmer sein werden, weil es dort niemand gebe, der ein Auge darauf habe. Deswegen haben sie schon vor einem dreiviertel Jahr vorgeschlagen, eine Lösung wie in Illertissen oder an Autobahnraststätten zu realisieren. In großen Städten könne man so etwas besichtigen. Ein Funktionsgebäude, das mit entsprechender massiver und Edelstahlausstattung ausgeführt sei, dass zunächst einmal Beschädigungen fast nicht möglich seien und dass sich insbesondere selbst reinigt, sodass auch Verschmutzungen nicht erst am Tag später oder wann auch immer jemand zum Reinigen komme, beseitigt werde. Sie haben das damals vorgeschlagen und er habe in der letzten Sitzung danach gefragt. Die Stadtbaumeisterin habe dann zur Antwort gegeben, dass in Illertissen ein Förderprogramm genutzt wurde, dass nicht mehr zu Verfügung stehe. Er meine, wir können doch unsere Entscheidungen nicht davon abhängig machen, ob es ein Förderprogramm gebe oder nicht. Wenn es Förderprogramme gebe, nutze man die gerne und man könne manchmal auch geschickt agieren. Aber jetzt zu sagen, nur, weil es keine Förderprogramme gebe, machen wir das nicht. Wir müssen schon überlegen, was für die Stadt gut und richtig sei und was auch wirklich eine Lösung bringe, denn eine zerstörte oder eine total verdreckte Toilette, sei auch nicht nutzbar. Deshalb bleiben sie dabei und schlagen vor und wir würden das auch gerne zur Abstimmung bringen, hier kein klassisches Massivgebäude zu errichten, sondern ein solches Funktionsgebäude in entsprechender Ausstattung. Die Frau Stadtbaumeisterin habe von Kosten von 250.0000 € gesprochen. Letzten Sommer habe er mit dem Eigentümer des Bahnhofs gesprochen. Dieser sei unheimlich kooperativ und habe angeboten, er könne sich auch vorstellen, den Kostenanteil zu übernehmen, den so ein Gebäude gekostet hätte, weil man das von ihm erwarten könne und er sich auch dazu auch verpflichtet habe und die Stadt die Differenz trage. Das müsse uns eine öffentliche Toilette wert sein, weil man ansonsten eine Lösung habe, bei der jetzt schon klar sei, dass sie nicht funktioniere. Das würde er gerne bitte heute auch zur Abstimmung stellen wollen.

Bürgermeister Dr. Fendt fragte nach, ob er jetzt beschließen wolle, dass eine Privatperson das machen soll, was wir wollen. Das gehe doch gar nicht.

Stadtrat Dr. Bischof antwortete, dass er das nicht so vorgeschlagen habe, sondern dass die Stadt diese Toilette errichte und er sich an den Kosten beteilige mit dem was er sich jetzt spart, wenn er jetzt hier dieses Gebäude errichten würde.

Bürgermeister Dr. Fendt sagte, man habe als Beschlussvorschlag vorliegen, dass die vorgelegte Planung, sprich erstens die Verlagerung an einen neuen Standort positiv bewertet werde und der zweite Teil des Beschlusses beziehe sich auf die weiteren Schritte, sprich Abstimmungen mit dem Bauherrn zu klären und anschließend dem Stadtrat zur Entscheidung vorlegen.

Stadtbaumeisterin Graf-Rembold sagte, man müsse vor einer weiteren Diskussion ein paar Fakten klären. Die Toilette in Illertissen habe 264.000 € gekostet. Das sei durchaus etwas entfernt von den Kosten, die die Toilette jetzt ausmache. Wir hatten bereits im Jahr 2018 eine selbstreinigende Toilette angefragt, die hatten man auch schon seitens der Verwaltung in der Diskussion. Damals habe diese noch etwas weniger gekostet, aber der springende Punkt dabei sei, dass eine selbstreinigende Toilette eine dreimal wöchentliche händische Reinigung benötige und außerdem eine technische Wartung. Dieses ganze Paket koste für die wöchentliche Reinigung 637 € pro Monat netto, plus technische Wartung 244 € pro Monat netto, d.h. im Gesamtpaket mit Skonto 837 € netto pro Monat im Jahr 2018. Neuere Zahlen liegen nicht vor. Die Reinigungskosten bleiben nach wie vor bei ca. 1.000 € pro Monat. Dazu komme, dass wir noch den Mehrpreis an der Toilette bezahlen, aber nicht wissen, ob man die Situation verbessere oder nicht. Entscheiden müsse das jemand anders, aber das sollte man als Hintergrundwissen mitnehmen, eine selbstreinigende Toilette heiße nicht, dass diese immer sauber sei. Diese reinige sich selber, plus zusätzlich müsse sie dreimal die Woche gereinigt werden.

Bürgermeister Dr. Fendt schlug vor, abzuwarten, bis man die Haushaltsberatungen abgeschlossen habe und dann können man einbringen, dass man 200.000 € aufnehme. Somit habe man eine Basis, denn ohne Haushalt können wir doch gar nichts versprechen.

Stadtrat Richter sagte, man müsse die Dinge richtig einordnen. Man habe auf der einen Seite eine vertragliche Verpflichtung seitens des Eigentümers des Bahnhofs und angesichts der Bilder und den Schilderungen, die wir gehört haben, müssen wir ein stückweit auch von Seiten der Stadt froh sein, dass der Vertragspartner weiterhin bereit sei, diesen vertraglichen Verpflichtungen nachzukommen und bereit sei, hier in ein separates Gebäude zu investieren. Der aktuelle Stand sei, dass wir eine Entwurfsplanung vorliegen haben. Man könne da noch nicht genau erkennen, wie denn die technische Ausstattung aussehe. Es könnte ja durchaus sein, wie der Kollege Schulz gesagt hat, dass so eine Ausstattung hier schon vorgesehen sei. Was der Beschlussvorschlag aussage und auf den sollte man sich weiterbewegen sei, dass wir diese Lösung seitens der Stadt weiterverfolgen, sprich dieses abgesetzte Gebäude. Er denke, es sei Konsens hier am Ratstisch, dass es uns auf jeden Fall lieber sei, als der Anbau an das Bahnhofsgebäude und das weitere bedarf dann der vertraglichen Ausgestaltung zwischen der Stadtverwaltung und dem Investor bzw. dem Eigentümer des Bahnhofs, sodass wir hier zu einer vernünftigen Lösung kommen. So sollte man jetzt schrittweise vorwärtsgehen und wenn es dann Ergebnisse gebe, werde man uns die hier präsentieren. Das sei der richtige Weg, eine vernünftige und dauerhafte Lösung auf die ordentliche Bahn zu bringen.

Bürgermeister Dr. Fendt erklärte, habe schon den Planungsstand vorliegen. Die Toiletten und die Waschbecken sollen in Edelstahl, dass was man auf den Autobahnen auch sehe, gebaut werden. Die weiteren Hinweise nehmen wir mit, um die Details zu diskutieren. Mehr als der Bauherr entgegenkomme, gehe gar nicht.

Der folgende Wortbeitrag wurde auf Antrag von Stadtrat Dr. Bischof in das Protokoll aufgenommen. Stadtrat Dr. Bischof sagte, er möchte auf den Punkt von der Stadtbaumeisterin eingehen. Die Reinigungs- und Wartungskosten seien ja sonst auch da. Es sei ihm schon klar, dass auch eine selbstreinigende Toilette weiterhin auch gereinigt und gewartet werden müsse, aber auch im Moment haben wir Reinigungskosten in Höhe von 1.000 €. Das mache aus seiner Sicht keinen Unterschied. Der Unterschied sei der, dass eine Toilette, die händisch gereinigt werde, im Zweifelsfall einen Tag lang total verdreckt sei, bis wieder jemand zum Putzen komme. Bei einer selbstreinigenden Toilette habe man im Zweifelsfall vielleicht nur eine viertel Stunde den verdreckten Zustand. Er möchte noch ergänzen, was er vorher vergessen habe. Seine Fraktion schlage vor, dass auch eine Gebühr für die Benutzung verlangt werde. Das eine Zutrittskontrolle erfolge und man nur mit 50 Cent oder einem Euro zu der Toilette Zugang bekomme. So werde auch vermieden, dass Leute, die gar kein Interesse daran haben, außer etwas kaputt zu machen, überhaupt in dieses Gebäude kommen. Diese Dinge können mit einer solchen kompletten Toilettenanlage auch gewährt werden. Wenn wir das alles selber bauen wollen, koste es wahrscheinlich noch einmal das Doppelte. Zum Beschlussvorschlag sagte er, dass dort stehe, die vorgelegte Planung werde positiv bewertet. Der Kollege Richter habe gerade gesagt, dass auch seine Fraktion für den anderen Standort sei. Für diese Planungen gebe es eine Bauzeichnung, die im Sachbericht zu sehen sei. Diese sehe zunächst einmal einen klassischen Massivbau vor. Es wäre gut, wenn man zumindest in dem Beschluss deutlich machen würde, dass das nochmals als eine Alternative diskutiert werde. Man sollte dem Vorschlag von Bürgermeister Dr. Fendt folgen, in den in Kürze stattfindenden Haushaltsberatungen darüber zu entscheiden, ob es uns das Geld wert sei, eine solche moderne Toilettenlösung haben oder nicht. Man müsse darüber abstimmen und es gebe im Zweifelsfall einen Mehrheitsbeschluss. Aber wenn man jetzt diesen vorgelegten Beschluss fasse, wisse er jetzt schon, dass es heiße, wir haben doch am 10. März diese Planung, so wie sie hier vorgelegt wurde, beschlossen.

Abschließend formulierte Bürgermeister Dr. Fendt den Beschlussvorschlag um. Der Bauherr will eine schöne Lösung, wir wollen einen neuen Standort und den Rest müsse man aushandeln, man könne nicht sagen, der Bauherr solle 200.000 € ausgeben und wir können es auch nicht sagen.

Beschluss:

„Vom Bauausschuss wird der neu angedachte Standort favorisiert. Die Verwaltung wird ermächtigt, die notwendigen weiteren Schritte in Abstimmung mit dem Bauherrn zu diskutieren und dann dem Bauausschuss wieder zur Genehmigung vorzulegen.“

Abstimmungsergebnis: 15:0

Dem Beschluss wurde einstimmig zugestimmt.

***********************

7.

Beschluss über die Einleitung eines Einziehungsverfahrens für ein Teilstücks des Weggrundstücks Flst.Nr. 277 Gemarkung Hegelhofen

Sachverhalt:

Mit Antrag vom 28.11.2024 ist der Eigentümer der Grundstücke Flst.Nrn. 71, 72 und 75/5, jeweils Gemarkung Hegelhofen, Günzburger Straße 62, auf die Verwaltung zugekommen mit dem Wunsch, eine Teilfläche des Weggrundstücks 277 erwerben zu können.

Zwischen den im Eigentum des Antragstellers stehenden Grundstücken 71, 72 und 75/5 verläuft das südliche Teilstück des städtischen Weggrundstücks Flst.Nr. 277. Nach Darstellung des Antragstellers wurde der ursprünglich landwirtschaftliche Weg im Rahmen der Bebauung der Nachbargrundstücke von der damals noch selbständigen Gemeinde Hegelhofen als nicht mehr notwendig erachtet. Vor rund 60 Jahren wurde daher dem Vater des Antragstellers die Nutzung und Umzäunung der Teilfläche des Wegs gestattet. Eine Pacht wurde / wird wegen Geringfügigkeit nicht erhoben. Teilweise ist das städtische Grundstücks auch bereits (geringfügig) überbaut. Ob und wenn ja welche Absprachen es hinsichtlich der Überbauung gab, lässt sich heute nicht mehr nachvollziehen.

Jedenfalls ist seit dieser Zeit keine Nutzung der Teilfläche als (öffentlicher) Weg erfolgt. Der Antragsteller möchte das auf den Flst.Nrn. 71 und 72 befindliche alte Gebäude abbrechen und auf der Gesamtfläche der Flst.Nrn. 71, 72, 75/5 und der Teilfläche von 277 ein neues, auch für eine PV Anlage optimal ausgerichtetes Gebäude errichten.

Der Weg ist derzeit als öffentlicher Weg gewidmet. Eine Veräußerung der Teilfläche kann daher erst nach einer Einziehung des Wegteilstücks erfolgen. Eingezogen werden kann ein Weg nur dann, wenn er jede Verkehrsbedeutung verloren hat. Nach Auffassung der Verwaltung dürfte das in dem betroffenen Bereich der Fall sein. Gemäß Art. 8 II BayStrWG ist die Absicht eine Straße einzuziehen 3 Monate vorher ortsüblich bekannt zu machen. Die Betroffenen haben in dieser Zeit die Möglichkeit, der Einziehung zu widersprechen und Gründe zu nennen, warum die Straße nicht jede Verkehrsbedeutung verloren hat.

Nach Auffassung der Verwaltung wird dieses Wegteilstück nicht mehr als Weg und auch nicht als Fläche benötigt und könnte daher eingezogen und im Anschluss veräußert werden.

Diskussion:

Bürgermeister Dr. Fendt erläuterte den Tagesordnungspunkt. Es schloss sich eine kurze Diskussion an.

Stadtrat Richter sagte, er bittet die Verwaltung um tiefere Betrachtung, da vor vielen Jahren schon einmal so ein Antrag vorlag und dieser damals aus irgendeinem Grund abgelehnt wurde. Er meine, da liegen irgendwelche Leitungen im Boden. Deswegen sollte man da noch genauer nachschauen, ob es überhaupt möglich sei, dieses Grundstück nach der Einziehung zu veräußern. Der zweite Aspekt habe städtebauliche Gründe. Wir gehen davon aus, auch mit dem neuen Flächennutzungsplan, dass die weitere städtische Entwicklung Richtung Norden stattfinde. Mit der Max-Rauth-Straße habe man den ersten Schritt gemacht. Auch mit der neuen Kita an der Maximilianstraße habe die Stadt dort eine neue öffentliche Einrichtung geschaffen und daher müssen wir im Blick haben, dass wir von der Günzburger Straße aus, leistungsfähige Erschließungskorridore in Richtung Osten haben. Vor vielen Jahren gab es bereits Überlegungen, die Kreuzung Metzgerweg/Günzburger Straße entsprechend auszubauen, um eine leistungsfähige Erschließung Richtung Osten zu ermöglichen. Dazu gebe es im Rathaus Entwurfsplanungen. In dem Zuge sollte man darüber nachdenken, eventuell notwendige Flächen in diesem Bereich zu erwerben. Diesen Sachverhalt sollte man noch einmal überprüfen.

Bürgermeister Dr. Fendt stellte den Antrag zur Geschäftsordnung auf Zurückstellung und brachte diesen zur Abstimmung.

Beschluss:

„Die Entscheidung wird noch einmal zurückgestellt.“

Abstimmungsergebnis: 15:0

Dem Beschluss wurde einstimmig zugestimmt.