Titel Logo
Weißenhorner Stadtanzeiger
Ausgabe 2/2023
Amtliche Bekanntmachungen
Zurück zur vorigen Seite
Zurück zur ersten Seite der aktuellen Ausgabe

Aus der Sitzung des Bau- und Werksausschusses am 19.12.2022

1.

Bekanntgaben

keine

***********************

2.

Bauanträge und Bauvoranfragen

2.1.

Antrag auf Baugenehmigung: Aufbau von 2 Dachgauben und Anbau eines BalkonsLilienweg, 89264 Weißenhorn

Sachverhalt:

Die Antragssteller möchten sich den Aufbau von zwei Dachgauben sowie den Anbau eines Balkons (eingegangen am 28.10.2022) genehmigen lassen.

Das Grundstück liegt im Geltungsbereich des qualifizierten Bebauungsplans „Blumenviertel“. Dieser setzt in § 5.3 fest, dass Dachaufbauten nur bei Satteldächer von 40° Dachneigung zulässig sind. Die Höhe von Dachaufbauten darf 1,50 m, ihre Länge ein Drittel der Dachlänge nicht überschreiten. Es sind 2 Vollgeschosse zwingend vorgeschrieben.

Dem Antrag auf Baugenehmigung liegt ein Antrag auf isolierte Befreiung von den Festsetzungen des Bebauungsplans bei.

Das Dachgeschoss soll auf beiden Seiten mit einer Dachgaube ausgebaut werden. An der Westseite soll zusätzlich ein Balkon angebracht werden. Die Dachgauben haben eine Länge von 11,20 m und eine Höhe von 2,29 m. Das Wohnhaus hat eine Länge von 13,30 m. Durch das Anbringen der Dachgauben erhöht sich die Anzahl der Vollgeschosse von zwei auf drei.

Somit überschreiten die Dachgauben die festgesetzte Länge und Höhe sowie die Anzahl der Vollgeschosse.

Die Antragssteller begründen die Abweichungen wie folgt:

Die Nutzung nach dem geplanten Ausbau soll den Neubau eines Einfamilienhauses ersetzen. In der Umgebung sind bei mehreren Gebäuden Dachaufbauten bereits genehmigt worden.

Im Geltungsbereich des Bebauungsplans wurde bereits mehrmals bzgl. der Länge und Höhe der Dachgauben befreit. Jedoch ist bei keiner der Befreiung ein zusätzliches Vollgeschoss entstanden. Die Dachgauben nahmen weiterhin eine untergeordnete Rolle des Dachgeschosses ein. Es liegen keine Befreiungen von Dachgauben für fast die komplette Hauslänge vor.

Die Verwaltung schlägt vor, das Einvernehmen nicht zu erteilen.

Diskussion:

Nach Erläuterung des Sachverhalts schloss sich eine kurze Diskussion über das geplante dritte Vollgeschoss an. Dabei könne die Mehrheit des Gremiums einer so weitgehenden Abweichung vom Bebauungsplan nicht zustimmen und wolle dem Vorschlag der Verwaltung folgen. Das Bauvorhaben könne nur mit einer Änderung des Bebauungsplanes realisiert werden.

Beschluss:

„Das Einvernehmen wird nicht erteilt.“

Abstimmungsergebnis: 12:1

Der Beschluss wurde mit 12 Stimmen angenommen.

***********************

2.2.

Antrag auf Baugenehmigung: Nutzungsänderung Kellerraum zu Büroraum

Brunnenstraße, 89264 Weißenhorn, ST Biberachzell

Sachverhalt:

Am 03.11.2022 ging bei der Stadt Weißenhorn ein Antrag auf Baugenehmigung für die Nutzungsänderung eines Kellerraums zu Büroraum ein.

Ein B-Plan existiert für das geplante Grundstück nicht, demnach befindet sich das Vorhaben im unbeplanten Innenbereich. Es liegt faktisch ein allgemeines Wohngebiet vor. Bauplanungsrechtlich ist dort ein Büroraum zulässig.

Das Büro soll der Mutter-Kind-Einrichtung dienen, die in diesem Wohnhaus untergebracht ist. Die Nutzung für Bürotätigkeiten wird täglich über eine Zeit von ca. 1,5 Stunden betragen.

Die Verwaltung schlägt vor, das Einvernehmen zu erteilen.

Diskussion:

Der Tagesordnungspunkt wurde vorgestellt. Eine Diskussion schloss sich nicht an.

Beschluss:

„Das Einvernehmen wird erteilt.“

Abstimmungsergebnis: 13:0

Dem Beschluss wurde einstimmig zugestimmt.

***********************

2.3.

Antrag auf Baugenehmigung: Errichtung eines Anbaus

Diepold-Schwarz-Straße, 89264 Weißenhorn

Sachverhalt:

Die Bauherren begehren die Genehmigung für die Erweiterung eines Anbaus an ein Wohnhaus und Garage (Eingang am 21.11.2022).

Ein B-Plan existiert für das geplante Grundstück nicht, demnach befindet sich das Vorhaben im unbeplanten Innenbereich.

Es ist eine Erweiterung des bestehenden Anbaus für eine Einliegerwohnung an das Wohnhaus mit Garage geplant. Der bestehende Anbau mit Flachdach soll um ca. 31 m² vergrößert werden.

GRZ und GFZ sind eingehalten.

Auf Grund der Vergrößerung ist ein weiterer Stellplatz notwendig. Dieser ist in den Planzeichnungen dargestellt.

Die Verwaltung schlägt vor, das Einvernehmen zu erteilen.

Diskussion:

Nachdem der Sachverhalt vorgetragen wurde, gab es keine Diskussion im Gremium.

Beschluss:

„Das Einvernehmen wird erteilt.“

Abstimmungsergebnis: 13:0

Dem Beschluss wurde einstimmig zugestimmt.

***********************

2.4.

Antrag auf Baugenehmigung: Nutzungsänderung Pferdelaufstall zu Fotostudio

Weißenhorner Straße, 89264 Weißenhorn, ST Biberachzell

Sachverhalt:

Der Antragssteller begehrt die Genehmigung für die Nutzungsänderung eines Pferdelaufstalls zu einem Fotostudio (Eingang am 24.11.2022).

Ein B-Plan existiert für das geplante Grundstück nicht. Es liegt faktisch ein Dorfgebiet gem. § 5 BauNVO vor. Sonstige Gewerbebetriebe sind in einem Dorfgebiet zulässig.

Für das Fotostudio wird eine lange Wand zur Abgrenzung an den Stadel bzw. Wohnhaus errichtet. Weitere Baumaßnahmen werden nicht durchgeführt.

Es werden zwei Stellplätze errichtet. Die Garagen- und Stellplatzverordnung ist somit eingehalten.

Die Verwaltung schlägt vor, das Einvernehmen zu erteilen.

Diskussion:

Keine Diskussion

Beschluss:

„Das Einvernehmen wird erteilt.“

Abstimmungsergebnis: 13:0

Der Beschluss wurde mit 13 Stimmen angenommen.

***********************

2.5.

Antrag auf Tektur: Geringfügige Vergrößerung aller vier Häuser sowie Neupositionierung der Nebengebäude

Bodelschwinghstraße, 89264 Weißenhorn

Sachverhalt:

Am 24.11.2022 ging bei der Stadt Weißenhorn ein Tekturantrag für die Bau einer Caritas-Tagespflege und Seniorenwohnungen ein.

Die Nachtragsplanung enthält eine Vergrößerung aller vier Häuser (Grundrissänderungen), Erhöhung der Wohnungsanzahl, Neupositionierung der Nebengebäude (Müllraum und Fahrräder) sowie die Reduzierung auf 26 Stellplätze.

Die Bruttogeschossfläche aller vier Häuser (3-geschossig) hat sich von insgesamt ca. 4360 m² auf 4980 m² (Differenz von 620 m²) vergrößert. Der Rohbau vor Ort, entspricht der aktuellen Tekturplanung.

Durch die Erhöhung der Bruttogeschossfläche erhöht sich die Anzahl der Seniorenwohnung von 47 Wohnungen auf 52 Wohnungen.

Auf der Ost- und Nordseite entstehen zwei weitere Nebengebäude für Fahrräder.

Anstatt wie geplant 32 Stellplätze, wird diese Anzahl auf 26 Stellplätze reduziert. Die Garagen- und Stellplatz-Verordnung ist weiterhin eingehalten.

Die Problematik bzgl. Stellplätze und Gehweg entlang der Bodelschwinghstraße kann dadurch entschärft werden, dass der Gehweg nach Westen verlegt wird und sich die Stellplätze somit direkt an der Bodelschwinghstraße befinden.

Die Flachdächer der baulichen Anlagen sind gem. der Gartenflächengestaltungs- und Gebäudebegrünungssatzung zu begrünen.

Der Nachweis über die Anzahl der Fahrradabstellplätze fehlt. Diese sind vom Bauherrn nachzureichen.

Die Verwaltung schlägt vor, das Einvernehmen, vorbehaltlich der Herstellung und Bereithaltung der notwendigen Abstellplätze für Fahrräder, zu erteilen.

Diskussion:

In Ergänzung des Sachvortrags wurde das Gremium darüber informiert, dass in der Sitzungsvorlage der Nachweis für die Anzahl der Fahrradstellplätze fehle. Hier müsse man sich allerdings korrigieren, weil gemäß § 7 der neuen Satzung für Fahrradabstellplätze, die Satzung nicht für Verfahren anzuwenden sei, die vor Inkrafttreten eingeleitet wurden. Diese Tektur stelle kein neues Verfahren dar. Aus diesem Grunde müsse man die Fahrradabstellsatzung hier noch nicht anwenden. Die Verwaltung schlägt daher vor, das Einvernehmen zu erteilen. Die Flachdächer der baulichen Anlagen sind allerdings nach der Gartenflächengestaltungs- und Gebäudeflächenbegrünungssatzung zu begrünen.

In der folgenden Diskussion wurde ausdrücklich betont, dass diese Baumaßnahme sehr zu begrüßen sei und die damit verbundenen Einrichtungen für unsere Stadt Weißenhorn als Gewinn betrachtet werden könne. Das Gremium war aber mit dem Vorgehen, was die Tektur anbelange, nicht einverstanden. Man sah ein Verkehrsproblem bei nochmals reduzierter Anzahl der Stellplätze. Durch die Reduktion der Stellplätze sei abzusehen, dass in dem ganzen Gebiet große Parkprobleme entstehen werden.

Die CSU-Fraktion schlug eine Zurückstellung und Verschiebung in die nächste Sitzung vor und zwar in den nichtöffentlichen Teil. Man müsse auf jeden Fall mit der Firma sprechen, wie man weiter vorgehe.

Bürgermeister Dr. Fendt befürwortete den von Stadtrat Franz Josef Niebling vorgebrachten Antrag, das Vorhaben heute zurückzustellen und brachte ihn zur Abstimmung.

Beschluss:

„Der Tagesordnungspunkt wird zurückgestellt und in die nächste Sitzung verschoben.“

Abstimmungsergebnis: 12:1

Der Beschluss wurde mit 12 Stimmen angenommen.

***********************

2.6.

Antrag auf Baugenehmigung: Neubau von 4 Mehrfamilienhäusern mit Tiefgarage

Herzog-Ludwig-Straße, 89264 Weißenhorn

Sachverhalt:

Der Bauherr beantragt die Genehmigung für den Neubau von 4 Mehrfamilienhäusern mit Tiefgarage (Eingang am 30.11.2022).

Das Vorhaben liegt im Geltungsbereich des einfachen Bebauungsplans „Vergnügungsstätten im Innenstadtbereich“. Die bauplanungsrechtliche Zulässigkeit richtet sich entsprechend nach §§ 30 Abs. 3, 34 BauGB.

Es sollen insgesamt 4 Mehrfamilienhäuser mit Flachdach errichtet werden. Die zwei Gebäude zur Herzog-Ludwig-Straße sind 2-geschossig mit einem zurückspringendem Staffelgeschoss (Gebäudehöhe 9,14 m) geplant und die hinteren beiden Gebäude sollen 3-geschossig, ebenfalls mit einem zurückspringendem Staffelgeschoss (Gebäudehöhe 12,01 m) errichtet werden.

Die beiden westlichen Gebäude rücken im Erdgeschoss etwas zurück, damit mehr Einsicht für die Tiefgarage möglich ist. Im Erdgeschoss stehen außerdem Büroflächen zur Verfügung.

Gemäß der Stellplatzsatzung müssen 69 Stellplätze nachgewiesen werden. Insgesamt sind 70 Stellplätze auf dem Grundstück geplant. Von den erforderlichen Stellplätzen sind mind. 25 % auf der Geländeoberfläche herzustellen. Hierzu liegt ein Antrag auf Abweichung vor. Es werden nur 12,50 % (9 Stellplätze) an Stellplätzen oberirdisch hergestellt.

Der Antragsteller begründet diese Abweichung wie folgt:

Die bestehende versiegelte Fläche soll durch Grünanlagen und Spielplatz aufgewertet werden und den Zugang zum Park herstellen. Gewerbeeinheit und Bewohner sind im Großteil azyklisch (Gewerbe = tagsüber, Bewohner = abends). In der Umgebung sind ausreichend oberirdische Stellplätze vorhanden, die zusätzlich genutzt werden können (alter Busbahnhof, Bahnhof, Fuggerhalle).

Da entlang der Herzog-Ludwig-Straße eine Fahrradstraße geplant ist, wird es nicht möglich sein, dort zu parken. Die Alternativen zu den oberirdischen Parkplätzen (z. B. Fuggerhalle, Bahnhof) scheinen auf Grund der Entfernung nicht attraktiv genug zum Parken zu sein. Demnach sind die Anwohner gezwungen, die Tiefgarage zu benutzen, sodass der Abweichung zugestimmt werden kann.

GRZ und GFZ sind eingehalten.

Die Flachdächer der baulichen Anlagen sind gem. der Gartenflächengestaltungs- und Gebäudebegrünungssatzung zu begrünen.

Es werden insgesamt 62 Fahrradabstellplätze mit Hilfe eines „Doppelstockparkers“ hergestellt. Somit ist die Fahrradabstellsatzung eingehalten.

Die Verwaltung schlägt vor, das Einvernehmen zu erteilen.

Diskussion:

Nach Vorstellung des Tagesordnungspunktes schloss sich eine Diskussion im Gremium an. Die Bauausschussmitglieder sahen Probleme wegen der nur neun oberirdischen Stellplätze. Das werde Konflikte mit der Fahrradstraße geben. Positiv sei, dass die Tiefgarage groß genug sei, um alle Autos unterzubringen und man an der Oberfläche mehr Aufenthaltsfläche für Familien und einen Spielplatz für Kinder habe. Es sei wichtig, dass in eine Stellplatzsatzung aufgenommen werde, dass die Stellplätze, die man für die Wohnungen brauche, auch den Wohnungen zugeschrieben bzw. mitverkauft werden müssen. Es gebe durchaus Wohnanlagen in Weißenhorn mit ganz vielen Stellplätzen, die man aber nicht mit den Wohnungen mitverkauft habe, weil es die Käufer nicht wollten. Folge dessen sind die Stellplätze dann leer oder anderweitig vermietet. Das solle ausgeschlossen werden. Das Gremium halte die Planung für sehr gelungen und eine Aufwertung für das Areal an der angrenzenden Innenstadt.

Beschluss:

„Das Einvernehmen wird erteilt, insbesondere auch die Zustimmung der Abweichung von der Stellplatzsatzung.

Die Flachdächer der baulichen Anlagen sind gem. der Gartenflächengestaltungs- und Gebäudebegrünungssatzung zu begrünen.“

Abstimmungsergebnis: 13:0

Dem Beschluss wurde einstimmig zugestimmt.

***********************

3.

Bebauungsplanverfahren "E 12 - Feldtörle" zwischen Adolf-Wolf-Str. und Illerbergerstr. in Weißenhorn, Billigungs- und Auslegungsbeschluss

BA 79/2022

Sachverhalt:

Sachverhalt:

Der Stadtrat Weißenhorns hat in öffentlicher Sitzung am 28.01.2008 beschlossen, für den Bereich südlich der Bahnlinie Senden - Weißenhorn und nördlich der Illerberger Str. (NU 14) eine Bauleitplanung vorzunehmen.

Konkret wurde u. a. die Änderung des Flächennutzungsplans (rechtswirksam mit Bekanntmachung vom 26. Juli 2006) zu gewerblichen Bauflächen sowie die Aufstellung eines Bebauungsplanes für das Grundstuck Flnr. 1033 Gem. Weißenhorn beschlossen. Es wird Bezug genommen auf den TOP Nr. 3 des Stadtrates in der öffentl. Sitzung am 26.01.2015 und TOP Nr. 3 des Bau- und Werksausschusses in der öffentl. Sitzung am 03.08.2018 und am 03.12.2018.

Die Vorplanungen ergaben u. a. folgende Schwerpunkte:

-

Altlasten/ Kampfmittel

-

Verkehr/ Erschließung

-

Immissionsschutz

-

Regenwasser/ Abwasser

-

Naturschutzrecht (Verbotstatbestände)

-

Ausgleichsflächen

In der SV des Bau- und Werksauschuss vom 03.12.2018 wurde über naturschutzfachliche Zwischenergebnisse berichtet:

-

Besonders die Waldränder sind für den Artenschutz von Bedeutung

-

Fledermäuse: Höhlenbäume und Fledermäuse im Wald vorhanden, die Höhlenbäume befinden sich hauptsächlich am südlichen und westlichen Waldrand

-

Haselmaus: Haselmausvorkommen wurden bisher nicht gefunden

-

Reptilien: Im Norden der Bahnstrecke befindet sich eine Zauneidechsenpopulation

-

Amphibien: Im Plangebiet wurde nur der Grasfrosch angetroffen; Nahe des Regenrückhaltebeckens ist auf dem angrenzenden Firmengelände ein Laubfrosch im Löschwasserteich kartiert worden.“

Rechtliche Einordnung:

Hinsichtlich des verwaltungsrechtlichen Bauleitplanverfahrens sind bislang nur die o. g. Aufstellungsbeschlüsse gefasst worden.

Der durch das Planungsbüro „Steinbacher Consult“ gefertigte Vorentwurf des Bebauungsplans „Feldtörle“ in der Fassung vom 21.11.2018 wurde auf die nun aktuelle Fassung vom 12.05.2022 mit Planzeichnung (Teil A), Zeichenerklärung (Teil B), Verfahrensvermerk (Teil C), Allgemeine Vorschriften (Teil D) textlichen Festsetzungen (Teil E), textlichen Hinweisen (Teil F) und Begründung (Anlage zum Teil II) aktualisiert und angepasst.

Aus Sicht der Verwaltung kann nach Billigung durch den Bauausschuss die frühzeitige Beteiligung der Öffentlichkeit, der Behörden und der sonstigen Träger öffentlicher Belange gem. der §§ 3 Abs. 1 und 4 Abs. 1 BauGB vorgenommen werden.

Beurteilung:

Die Überlegung die Bauleitplanung zum Abschluss zu bringen, gründet auf dem aktuellen Kenntnisstand. Es wurden aufwändige Voruntersuchungen durchgeführt, die bereits einen Großteil der abwägungserheblichen öffentlichen und privaten Belange ermittelt haben. Diese zusammengetragenen bedeutenden Informationen und wichtigen Erkenntnisse über das Gelände und dessen Beschaffenheit können in einem Bebauungsplan gesammelt Eingang finden.

Diskussion:

Bürgermeister Dr. Fendt teilte mit, dass man im Vorfeld schon über viele problematische Punkte diskutiert habe. Man beginne mit einer frühzeitigen Bürger- und Trägerbeteiligung, um allen ohne Einschränkung noch einmal die Möglichkeit zur Stellungnahme zu geben. Der Flächennutzungsplan müsse in diesem Zusammenhang mitgeändert werden.

Im Verlauf der anschließenden Diskussion kam von der Mehrheit des Gremiums positiver Zuspruch, das Verfahren zum Abschluss zu bringen. Dieses Gebiet sei ungenutzte Fläche und müsse genau deshalb vorbereitet werden, um wertvolle Arbeitsplätze zu schaffen. Hier könne etwas entstehen, was Investoren anlocke. In den Bebauungsplan sollen zwei Punkte eingearbeitet werden. Zum einen die Versorgung mit Wärme über das Fernwärmenetz und zum anderen, dass die Photovoltaiknutzung auf Flachdächern vorgeschrieben werde. Diese beiden Punkte sollen auch beim nächsten Tagesordnungspunkt ebenfalls in die Planungen mit einbezogen werden. Es gab aber auch Kritik, weil es sich um ein schützenswertes Areal handle, dass für den Artenschutz von großer Bedeutung sei. Mittlerweile haben sich auf dem Gebiet viele teils streng geschützte Tiere angesiedelt. Durch eine Bebauung werden auch deren Fortpflanzungshabitat und die Ausbreitungsstrukturen eingeengt oder gehen verloren. Wald ist nicht nur wichtig für das Klima und ein wichtiger CO2-Speicher, er ist vor allem Lebensraum vieler Tiere. Es gebe bessere Bereiche die günstiger und mit weniger Aufwand und Kosten erschließbar seien. Auch das Ausgleichsflächenmanagement der Stadt wurde angesprochen. Aufgrund der klimapolitischen Entwicklung müsse man mit der Natur planen und nicht gegen die Natur.

Bürgermeister Dr. Fendt erklärte, dass der Punkt Fernwärme in den Kauverträgen sichergestellt werden könne und mit der Photovoltaikanlage bezog er sich auf die Satzung, die grundsätzlich eine Begrünung vorschreibe. Eine Abweichungsmöglichkeit sei aber auch zulässig.

Beschluss:

„Der Bau-, Umwelt- und Werkausschuss der Stadt Weißenhorn billigt den Entwurf des Bebauungsplanes „Feldtörle“ in der Fassung vom 12.05.2022 mit der Maßgabe, dass das Planungsbüro Steinbacher Consult die erforderlichen Änderungen/Ergänzungen in den Bebauungsplan und die Begründung umsetzt und einarbeitet.

Der Verwaltung wird beauftragt, die frühzeitige Öffentlichkeitsbeteiligung gem. der §§ 3 Abs. 1 und 4 Abs. 1 BauGB durchzuführen.“

Abstimmungsergebnis: 11:2

Der Beschluss wurde mit 11 Stimmen angenommen.

***********************

4.

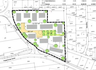
Bebauungsplan "C4 - Diepold-Schwarz-Straße" - Erläuterungen zum Städtebaulichen Konzept zur Entwicklung des Areals Diepold-Schwarz-Straße

BA 155/2022

Sachverhalt:

Nach zahlreichen Gesprächsrunden hat sich zwischenzeitlich eine Planungsvariante herauskristallisiert, die nicht nur modernen städtebaulichen Anforderungen genügt, sondern auch Wünsche der Anlieger, wie sie in der Vergangenheit geäußert wurden, in vielen Punkten berücksichtigt.

Dieser Planungsvariante liegen folgende Überlegungen zu Grunde.

1. Vorüberlegungen zum Bebauungsplan

Die Stadt Weißenhorn verzeichnet eine positive Bevölkerungs- und wohnbauliche Entwicklung und sieht sich zahlreichen Anfragen nach Wohnraum gegenüber. Zur starken Nachfrage trägt unter anderem die Nähe zur Stadt Ulm/Neu-Ulm bei. Trotz der regen Bautätigkeit ist der Bedarf an Wohnraum in Weißenhorn nicht gedeckt. Aufgrund der stark steigenden Wohnungspreise im Verdichtungsraum Ulm/Neu-Ulm orientiert sich die Bevölkerung immer mehr in die umliegenden Gemeinden. Weißenhorn bietet zudem einige Standortvorteile wie die Stiftungsklinik, Bildungseinrichtungen von der Kinderkrippe bis zum Gymnasium und eine gute Verkehrsanbindung an die A 7 sowie der Bahnlinien nach Ulm (25 Minuten) und Memmingen (50 Minuten). Diese Vorteile machen Weißenhorn auch überregional gesehen zu einem beliebten Wohnstandort. Im Rahmen einer vorausschauenden Stadtentwicklung sollte die Siedlungsentwicklung auf bestimmte Orte konzentriert werden. Das Plangebiet liegt südlich des städtischen Zentrums und stellt eine zurzeit teilweise brachliegende Fläche im Innenbereich dar. Die Bestandsgebäude und -flächen weisen in Teilen starke Funktionsdefizite und bauliche Mängel auf. Die Entwicklung des Areals Diepold-Schwarz- Straße stellt somit eine sinnvolle Maßnahme zur Bedarfsdeckung dar.

2. Entwicklung aus dem Flächennutzungsplan

Im rechtswirksamen Flächennutzungsplan Weißenhorn wird der Bereich des Plangebietes als gemischte Baufläche dargestellt. Der östliche Bereich entlang der Rosenstraße ist als Wohnbaufläche dargestellt. Der südöstliche Teil der Roggenburger Straße ist private Grünfläche. Die aktuelle Planung sieht eine Wohnnutzung vor. Eine Änderung des Flächennutzungsplanes ist nicht erforderlich. Der vorliegende Bebauungsplan ist aus dem Flächennutzungsplan entwickelt.

3. Lage

Das Plangebiet befindet sich im Süden des Stadtgebietes im Anschluss an das Zentrum von Weißenhorn, nördlich der Roggenburger Straße und westlich der Schulstraße. Im Norden wird das Plangebiet von der Diepold-Schwarz-Straße und im Osten von der Rosenstraße begrenzt. Die Fläche umfasst die Flurstücke Nr. 2249, 2250/13, 2250/14, 2250/15 und 2251 Gemarkung Weißenhorn mit einer Gesamtfläche von ca. 1,51 ha

4. Bestand

Die Flächen im Geltungsbereich werden im nördlichen und nordwestlichen Bereich gewerblich genutzt. Es befinden sich im östlichen Bereich an der Rosenstraße und im zentralen Bereich je ein Einfamilienhaus. Das im südöstlichen Bereich befindliche dreigeschossige Mehrfamilienhaus soll erhalten bleiben.

Innerhalb der öffentlichen Grünfläche bei der Einmündung Schulstraße in die Roggenburger Straße, sind zwei Ebereschen (Sorbus aucuparia) und in der südöstlichen Ecke des Geltungsbereiches eine Sommerlinde (Tilia platyphyllos) und ein Kirschbaum (Prunus spp.) zu erhalten. Daneben befinden sich im Geltungsbereich einzelne Kleinbäume und Sträucher von geringer Bedeutung.

Im nördlichen und östlichen Anschluss an den Geltungsbereich ist die Bebauung durch Ein- und Zweifamilienhäuser geprägt. Im östlichen Teil gilt der Bebauungsplan „C1 Blumenviertel“, zugelassen sind darin Flachdächer oder Satteldächer. Im Westen befinden sich gewerbliche Nutzungen. Im Süden befinden sich jenseits der Schulstraße und Roggenburger Straße, Sportanlagen mit Grünflächen. Der Bebauungsplan „Südtangente“ beinhaltet die Straßenverkehrsfläche der Roggenburger Straße den Fuß- und Radweg sowie Verkehrsgrünflächen. Die Gebäudehöhe der Bestandsgebäude an der Diepold-Schwarz-Straße beträgt i. M. 9,60 m, an der Rosenstraße i. M. 9,80 m.

5. Städtebauliches Konzept

Die Erschließung des Plangebiets erfolgt zentral von der Schulstraße her ohne Durchbindung hin zur Rosenstraße. Damit wird die Beschränkung des durch die neue Bebauung entstehenden Verkehrs auf die quartierseigenen Zu- und Abfahrten erreicht. Zudem wird damit eine zusätzliche Belastung der umgebenden Diepold-Schwarz-Straße und Rosenstraße vermieden. Die Planstraße ist als öffentliche Verkehrsfläche mit besonderer Zweckbestimmung als verkehrsberuhigter Bereich vorgesehen. Im östlichen Anschluss schafft die Einrichtung eines dem Fußverkehr vorbehaltenen begrünten Platzes mit Anschluss an die Rosenstraße die zentrale Gestaltung des Quartiers mit hoher Aufenthaltsqualität.

Neben wenigen oberflächlich anzuordnenden Besucherparkplätzen nehmen die jeweils nördlich und südlich an die innere Erschließung anbindenden Tiefgaragen die erforderlichen Parkplätze auf. Auch damit wird durch weitgehende Autofreiheit im Inneren des Quartiers eine hohe Aufenthaltsqualität sichergestellt.

Das städtebauliche Konzept sieht eine lockere Bebauung mit Mehrfamilienhäusern vor. Die westlich gelegenen Gebäude weisen ein nach Westen gerichtetes Staffelgeschoss mit mindestens drei und maximal vier Vollgeschossen (bis zu 14,0 m Höhe, bezogen auf die Höhe des natürlichen Geländes) als Höchstmaß auf. Die übrigen Gebäude sind maximal dreigeschossig mit einer maximalen Gebäudehöhe von 10,5 m. Durch diese Bauweise kann ein harmonischer Übergang von den angrenzenden zwei- bis dreigeschossigen Ein- und Mehrfamilienhäusern zur geplanten Bebauung erfolgen.

Es soll ein allgemeines Wohngebiet (WA) nach § 4 BauNVO entstehen. Die bauliche Dichte der neuen Überbauung orientiert sich zum einen ebenfalls am umgebenden Siedlungsbestand. Zum anderen soll die maßvolle und integrative Bauhöhenentwicklung eine der zentrumsnahmen Lage angemessene Dichte ermöglichen, wobei nach Südwesten orientierte höhere Baukörper mit schmalerem Fußabdruck mehr gestalterischen grünen Freiraum innerhalb des Plangebietes bieten. So wird die lockere Bebauungsstruktur im Quartier durch eine Durchgrünung mit standortheimischen Laubbäumen und Sträuchern unterstützt.

Für das Plangebiet ist somit eine offene Bauweise vorgesehen. Um eine lockere Bebauungsstruktur zu gewährleisten, sind nur Einzelhäuser in eng gefassten Baufeldern geplant. Die Gebäude sind dreigeschossig, teilw. viergeschossig auszuführen, Gebäude entlang der Schulstraße können mit vier Vollgeschossen mit Ausbildung des obersten Geschosses als Staffelgeschoss errichtet werden. Das Konzept sieht damit eine gestaffelte Bauweise vor, wobei nach außen die Firsthöhen der Bestandsgebäude der angrenzenden Wohnbebauung an der Diepold-Schwarz-Straße und an der Rosenstraße nicht überschreiten werden. Damit wird ein städtebaulicher Übergang mit angemessener Ausrichtung der Gebäudehöhen erreicht.

Aus städtebaulichen und ökologischen Gründen soll für flachgeneigte Dächer der Hauptgebäude eine extensive Begrünung auf 80 % der Fläche vorgesehen werden. Dadurch können zusätzliche Grünflächen geschaffen werden, welche nicht nur der Verbesserung des Ortsbildes sondern z. B. auch der Verzögerung des Abflusses und Rückhaltung von Niederschlagswasser dienen.

Auch wenn es in der Planskizze noch nicht dargestellt ist, soll entlang der Schulstraße Raum für einen Fahrradweg geschaffen werden. Entsprechende Vorgespräche mit den Eigentümern haben bereits stattgefunden, auch wenn dies noch nicht finalisiert wurden.

6. Verfahren

Der Bebauungsplan kann im Verfahren nach § 13a Abs. 1 BauGB als Bebauungsplan der Innenentwicklung im beschleunigten Verfahren aufgestellt werden. Die Größe der überbaubaren Grundfläche beträgt weniger als 20.000 m², im Sinne von § 19 Abs. 2 BauNVO. Der Bebauungsplan begründet nicht die Zulässigkeit von Vorhaben, die der Pflicht zur Durchführung einer Umweltverträglichkeitsprüfung nach dem UVPG oder Landesrecht unterliegen. Im Verfahren nach § 13a Abs. 1 Nr. 1 BauGB gelten die Eingriffe die auf Grund der Aufstellung des Bebauungsplans zu erwarten sind als im Sinne des § 1a Abs. 3 Satz 5 BauGB vor der planerischen Entscheidung erfolgt oder zulässig. Auf die Anwendung der Eingriffsregelungen kann folglich verzichtet werde. (§ 13a Abs. 2 Nr. 4 BauGB I.V.M. § 1a Abs. 3 BauGB).

Diskussion:

Bürgermeister Dr. Fendt stellte dem Gremium die Änderungen in der Planung vor. Auf dieser Basis solle man in die Anwohner- und Behördenbeteiligung einsteigen.

Stadtrat Herbert Richter sagte, man solle in das Verfahren einsteigen. Seine Anmerkungen beim vorherigen Tagesordnungspunkt gelten auch für diesen Bebauungsplan. Man könne hier ein sehr attraktives Wohngebiet für Mehrgeschosswohnungsbau schaffen.

Stadtrat Franz Josef Niebling meinte, die CSU-Fraktion und Stadtrat Ritter seien sehr erfreut, dass es jetzt soweit gediehen sei, zumal es ihr Antrag von vor zwei Jahren war, das zentrale Gebiet in der Innenstadt zu nutzen. Auf den geplanten Flachdächern könne er sich eine Begrünung und zusätzlich PV-Anlagen vorstellen. Man könne auch über Fassaden-Photovoltaikanlagen nachdenken. Hier könne man extrem viel Energie erzeugen und diese sinnvoll nutzen. Die Satzung, die nur die Begrünung der Flachdächer enthalte, solle überdacht werden, damit auch PV-Anlagen aufs Dach können, um beides zu kombinieren. Da in dem Bereich Wohnungen für ca. 150 Bewohner entstehen sollen, wäre es sinnvoll, in einem Baukörper einen Kindergarten oder Kinderkrippeneinrichtung mit einzubauen. Das könne kombiniert werden, im Erdgeschoss die Kindertagesstätte und im ersten Stock die Wohnungen. Man solle dies im Laufe des Verfahrens mit aufnehmen.

Bürgermeister Dr. Fendt antwortete, die Anregung aufzunehmen und diese im weiteren Verfahren zu prüfen.

Stadtrat Dr. Jürgen Bischof und seine Fraktion sehen es als tolle Entwicklung. Sie haben es aber so verstanden, dass nicht nur ein Gebäude, sondern ein Teil der Fläche als Gemeinbedarf vorgesehen werden solle, insbesondere ein Kindergarten, da dringender Bedarf bestehe, im Süden der Stadt Kindergärten anzulegen. Es solle in den Beschlussvorschlag mit aufgenommen werden, dass das noch geprüft werden solle. Ebenso solle geprüft werden, ob die im Nord-Osten liegende gewerbliche Fläche, die ausgenommen sei, mit einbezogen werden könne. Seine Fraktion sehe da die Gefahr, dass es zu Konflikten führe, wenn dort weiterhin ein Gewerbebetrieb mitten im Wohngebiet sei. Daher seine dringende Bitte, mit dem Grundstückseigentümer zu sprechen mit dem Ziel, den Betrieb ins Gewerbegebiet zu verlagern. Man müsse dem Grundstückseigentümer dort Flächen anbieten. Dass erneute Verhandlungen mit dem Gewerbetreibenden geführt werden, solle man auch in den Beschlussvorschlag aufnehmen.

Bürgermeister Dr. Fendt formulierte den Beschlussentwurf um und brachte ihn zur Abstimmung.

Beschluss:

Stadtrat Christian Simmnacher ist befangen und nahm an Abstimmung und Diskussion nicht teil.

„Der Bauausschuss stimmt dem Planentwurf zu, insbesondere soll jedoch im weiteren Verfahren geprüft werden, ob eine Kindertagesstätte geschaffen werden kann. Die Verwaltung wird beauftragt die vorgezogene Bürger- und Trägerbeteiligung durchzuführen.“

Abstimmungsergebnis: 12:0

Dem Beschluss wurde einstimmig zugestimmt.

***********************

5.

Genehmigung Mehrkosten für Unterhalt der Grünflächen

BA 163/2022

Sachverhalt:

Der Ansatz 2022 für den Unterhalt des Straßenbegleitgrüns (HHST 6300.5120) wurde im Zuge der Erstellung des Nachtragshaushalts von zunächst 180.000,-€ auf 240.000,-€ angehoben.

Der größte Ausgabeposten sind Jätarbeiten an städtischen Grünstreifen und Baumscheiben. Diese Arbeiten wurden früher durch eigenes Personal des Bauhofs durchgeführt. Seit einigen Jahren wurden diese Arbeiten mehr und mehr an die Fa. MRD vergeben. Bei Durchsicht der diesjährigen Rechnungen zeigt sich, dass diese Grünflächen bis zu sechsmal, heißt monatlich von Mai bis November, durch das Personal des MRD gepflegt wurden.

Nach Ansicht des Unterzeichners sollte eine dreimalige Pflege, pro Jahr ausreichen, um die Kostenentwicklung zu begrenzen. Das bedeutet, dass zwischen Bodendeckern und Blühstauden auch mal ein Unkraut überlebt.

Ein weiterer Ausgabeposten war die erstmalige Anschaffung eines Baumkatasters und die systematische Baumkontrolle. Als Ergebnis dieser Baumkontrolle wurden Pflegearbeiten an rund 300 Bäumen (Entfernen von Totholz u.s.w.) erforderlich. Diese Kosten belaufen sich auf 100,- bis 200,-€ pro Baum.

Die diesjährigen Ausgaben dieser Haushaltsstelle bis zum 5.12.22 belaufen sich bereits auf 280.531,-€. In der Summe werden weitere 10.000,-€ an Ausgaben für 2022 erwartet.

Ein Teil der anfallenden Kosten ist auch bei der HHST 58005100, Unterhalt Parkanlagen verbucht. Dort beträgt der HH-Ansatz 60.000,-€ wovon bisher 44.800,-€ verausgabt wurden.

Die den Betrag von 260T€ übersteigenden Rechnungen wurden bisher nicht angewiesen. Die Anweisung dieser Rechnungen soll durch den Bauausschuss genehmigt werden.

Diskussion:

Bürgermeister Dr. Fendt erläuterte den Sachverhalt. Danach schloss sich eine Diskussion an. Die CSU-Fraktion sei dagegen, die Pflegearbeiten zu reduzieren. Eine Kostensteigerung jedes Jahr müsse man akzeptieren. Stadtrat Dr. Jürgen Bischof brachte den Einwand, ob der Bauausschuss überhaupt Haushaltsüberschreitungen genehmigen dürfe oder ob dies dem Stadtrat vorbehalten sei, da man hiermit den Haushalt ändere, den der Stadtrat beschlossen habe. Er bat um Prüfung. Nachdem die Mehrkosten bereits angefallen seien, müsse man die Rechnungen auch bezahlen. Er bitte aber darum, künftig Haushaltsüberschreitungen frühzeitiger zu überwachen. Die WÜW-Fraktion schlage vor, nicht weniger zu pflegen, sondern die Anlagen anders anzulegen, dass sie weniger pflegeintensiv seien.

Bürgermeister Dr. Fendt sagte, man müsse zwischen überplanmäßigen und außerplanmäßigen Ausgaben unterscheiden. Er lasse die Zuständigkeit noch einmal prüfen und werde ggf. die Rechtsaufsicht beteiligen. Er schlug vor, den Punkt bis zur Klärung zurückzustellen, was natürlich zur Folge hätte, dass die Firmen kein Geld bekommen.

Daraufhin bat Stadtrat Franz Josef Niebling mit zu klären, ob das tatsächlich so sei, dass dann die Leute kein Geld bekommen, obwohl die Verwaltung die Sache zu spät in den Stadtrat gebracht habe. Er verwies in dem Zusammenhang auf außerordentliche und dringende Anweisungen des Bürgermeisters, um solche Fälle zu verhindern. Im Nachhinein könne man den Sachverhalt im Stadtrat vorbringen. Der Geschäftsvertrag nach außen müsse immer erfüllt werden.

Abschließend sagte Bürgermeister Dr. Fendt eine Klärung, unabhängig von diesem Fall, zu.

Beschluss:

„Die Mehrausgaben i.H. von ca. 50.000,-€ bei Haushaltsstelle, Unterhalt Straßenbegleitgrün, 6300.5120 werden genehmigt.“

Der Umfang der zu erbringenden Pflegearbeiten soll künftig auf drei Pflegegänge pro Jahr begrenzt werden.

Abstimmungsergebnis: 13:0

Dem Beschluss wurde einstimmig zugestimmt.

***********************

6.

Genehmigung Kostenansätze verschiedener Haushaltsstellen

BA 165/2022

Sachverhalt:

Unter TOP 5 wird über Mehrkosten bei der Haushaltsstelle Straßenbegleitgrün berichtet. Aufgrund der derzeitigen Situation sind auch bei anderen energie- und rohstoffbasierten Haushaltstellen Mehrkosten zu tragen.

Die Kosten für Chemische Fällmittel HHST 70005140 für die Kläranlage haben sich um über ca. 30 % gegenüber dem Vorjahr erhöht, HHAnsatz 50.000,-€, Ausgaben zum 15.12.22, 71.837,20 €. Energieintensive Arbeiten wie die Grünflächenpflege von Sportplätzen, an Kläranlage und Wasserwerk haben sich durch die Kostensteigerung von Diesel verteuert, HHST 70005130, HHAnsatz 35.000,- Ausgaben bis Mitte Dez. 46.086,27 €.

Die Transportkosten für Klärschlamm, Entsorgung von Kanal- und Straßenkehrichtrückständen haben sich aufgrund der Dieselkosten ebenfalls verteuert. Im Bereich des Fuhrparks haben sich die Kosten für Reparaturen HHST 77005500 vom Ansatz i.H. von 42.000,-€ auf 59.668,58 €, der Spritverbrauch HHST 77005510 vom Ansatz 50.000,- auf derzeit 62.344,34 € erhöht.

In vielen Fällen reichen die im Oktober 2021 gebildeten Haushaltsansätze für das Jahr 2022 nicht aus.

Um nicht für jede überzogene Haushaltstelle eine separate Beratungsunterlage zur Kostengenehmigung erstellen zu müssen, sollte eine praktikable Lösung gefunden werden, damit anfallende Rechnungen fristgerecht ausbezahlt werden.

Sinnvoll wäre eine z.B. eine pauschal geduldete Überziehung i.H. von 30 % des Ansatzes. Für die beschriebenen Haushaltsstellen, würde dieser Ansatz in den meisten Fällen jedoch nicht ausreichen, hier sollte eine Überziehung bis 30.000,-€ genehmigt werden.

Diskussion:

Bürgermeister Dr. Fendt ging auf die Sitzungsvorlage ein. Danach schloss sich eine Diskussion an.

Stadtrat Dr. Jürgen Bischof ging darauf ein, dass die in Sitzungsvorlage aufgeführten großen Kostensteigerungen für seine Fraktion nicht ganz nachvollziehbar seien, und zwar bei Posten, die nichts mit Energie- und Rohstoffpreisen zu tun haben. Insofern bestehe schon Einverständnis, diese Kostensteigerungen zu genehmigen, sie schlagen aber einen anderen Beschlussvorschlag vor, indem deutlich gemacht werde, dass die Steigerungen genehmigt werden, die durch die gestiegenen Energie- und Rohstoff-

kostensteigerungen verursacht wurden. In der nächsten Sitzung solle eine Aufstellung vorlegt werden, in der dargestellt werde, bei welchen Posten ganz konkret Energie- und Rohstoffsteigerungen aufgetreten seien. Der Beschlussvorschlag solle lauten: Der Bauausschuss genehmigt Überschreitungen von Haushaltsansätzen im Jahr 2022, die durch Energie- und Rohstoffsteigerungen gegenüber dem Jahr 2021 verursacht wurden. Diese sind dem Bauausschuss in einer Aufstellung im Januar darzustellen.

Stadtrat Michael Schrodi meinte, da die Mehrkosten nun einmal da seien, müsse man alles genehmigen, nicht nur das, was der Energiekrise zuzurechnen sei und im nächsten Jahr verlange man eine Aufstellung. Es handle sich auch um Reparaturkosten, die nicht vorkalkulierbar seien.

Stadtrat Marcus Biberacher stellte den Antrag, über den formulierten Beschlussvorschlag von der Verwaltung abzustimmen.

Beschluss:

„Eine Überschreitung der beschriebenen Haushaltsansätze aufgrund von Kostensteigerungen von Energie- und Rohstoffkosten wird zugestimmt (Die vom Bauausschuss geforderte Liste wird nachgeliefert.).“

Abstimmungsergebnis: 9:4

Der Beschluss wurde mit 9 Stimmen angenommen.