Titel Logo
Oberzent aktuell
Ausgabe 41/2024
Amtliche Bekanntmachungen
Zurück zur vorigen Seite
Zurück zur ersten Seite der aktuellen Ausgabe
-

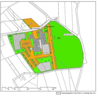
Bauleitplanung der Stadt Oberzent Bebauungsplan „Seniorenresidenz Hedwig Henneböhl“, Stadtteil Beerfelden, gem. § 13 BauGB

hier: Beteiligung der Öffentlichkeit gem. § 3 (2) BauGB

In seiner Sitzung am 30. September 2024 stellte der Magistrat der Stadt Oberzent den vorliegenden Planentwurf des Bebauungsplanes „Seniorenresidenz Hedwig Henneböhl“ fest und hat beschlossen, vor Einleitung des förmlichen Verfahrens die Anhörung der Öffentlichkeit und die Beteiligung der Träger öffentlicher Belange und Fachbehörden nach §§ 3 (2) und 4 (2) BauGB durchzuführen.

Anlass der Planung ist die Ausweisung eines Wohngebietes im Bereich westlich der B 45 und südlich des Krähberger Weges für stationäre und ambulante Pflegeeinrichtungen, seniorengerechtes Wohnen und Wohnraum für Mitarbeiterinnen und Mitarbeiter für die Weiterentwicklung der bereits bestehenden Seniorenresidenz.

Seit der Eröffnung der Stationären Pflegeeinrichtung in der Seniorenresidenz Hedwig Henneböhl im Oktober 2013 hat die Nachfrage nach Pflegeplätzen und seniorengerechten Wohnungen sowie Wohnraum für Mitarbeiter und Mitarbeiterinnen, gerade aus dem Bereich der Oberzent, erheblich zugenommen. Die Betreuungs- und Pflegeaufsicht beim Hessischen Amt für Versorgung und Soziales Darmstadt (Heimaufsicht) hat am 03. Juni 2019 ausdrücklich die angedachte Erweiterung positiv bewertet.

Von der Planung sind folgende Grundstücke betroffen:

Flur 2 Nr. 304/3 und 504/10 (Teilgeltungsbereich 1) sowie

Flur 2 Nr. 339/5 (Teilgeltungsbereich 2)

Hierdurch wird bekanntgemacht, dass der Planentwurf des B.-Planes „Seniorenresidenz Hedwig Henneböhl“ mit Begründung auf die Dauer eines Monats, und zwar

vom 21. Oktober 2024 bis 22. November 2024

im Rathaus der Stadt Oberzent, Verwaltungsstandort Rothenberg, Hauptstraße 23, 64760 Oberzent, Bauverwaltung, Hochbau und Stadtentwicklung, öffentlich ausgelegt wird.

Öffnungszeiten:

Montag und Dienstag von 8.00 Uhr bis 12.00 Uhr und 13.30 Uhr bis 15.30 Uhr

Donnerstag von 8.00 Uhr bis 12.00 Uhr und 13.30 Uhr bis 18.00 Uhr

Freitag von 8.00 Uhr bis 12.00 Uhr

Während der Auslegung kann sich die Öffentlichkeit gem. § 3 (2) BauGB über die allgemeinen Ziele und Zwecke sowie die wesentlichen Auswirkungen der Planung unterrichten. Der Öffentlichkeit wird Gelegenheit zur Äußerung und Erörterung gegeben. Die Äußerungen können schriftlich eingereicht oder bei der Stadtverwaltung mündlich zu Protokoll gegeben werden.

Oberzent, 11.10.2024
Magistrat der Stadt Oberzent
Kehrer, Bürgermeister